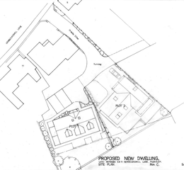
Plot 1, Newboundmill Lane, Pleasley, Mansfield
Description
EXCEPTIONAL DEVELOPMENT OPPORTUNITY…
We are pleased to present this outstanding building plot situated in the highly desirable village of Pleasley, offering an exciting opportunity for developers and investors seeking a larger-scale residential project.
The plot is conveniently located close to local amenities, shops, and excellent transport links, while also enjoying a semi-rural position that combines accessibility with a peaceful, countryside outlook.
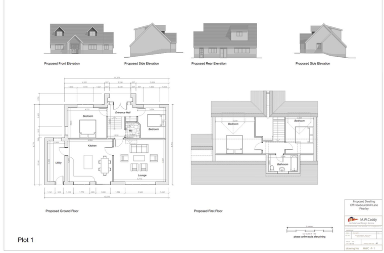
Plot 1 is offered with conditional planning permission for the erection of an impressive three-storey, five-bedroom detached dwelling with a detached double garage, providing substantial living accommodation and excellent end-value potential.
Our experienced valuer team has advised that, based on current market conditions, Plot 1 could achieve a strong gross development value of £525,000. This figure is indicative only and represent an opinion at this time. Final values will be subject to the finished specification and prevailing market conditions at the time of sale.
Full planning details are available via the Bolsover District Council Planning Applications website under reference 23/00253/FUL.
The plot enjoys open views, a natural surrounding landscape, and is within walking distance of the River Maun. The generous plot size and desirable location further enhance its appeal.
For those not seeking immediate development, the land may also be suitable for alternative uses such as the keeping of livestock or wildlife, as seen with neighbouring plots in the area (subject to any necessary consents).
For further details or to arrange a viewing, please contact our helpful team on .
Property details
- Tenure
- Freehold
- Council Tax Band
- Ask Agent
- Date Posted
- 2026-01-29
Utilities & Restrictions
Utilities
- Electricity
- Ask Agent
- Water
- Ask Agent
- Heating
- Ask Agent
- Broadband
- Ask Agent
- Sewerage
- Ask Agent
Rights & Restrictions
- Public Rights of Way
- Ask Agent
- Private Rights of Way
- Ask Agent
- Listed Property
- Ask Agent
- Restrictions
- Ask Agent
Property Features
- Accessibility
- Ask Agent
- Parking
- Parking Available
- Garden
- Ask Agent
Important notice: Information, maps and tags on this page are supplied by the advertising agent or generated automatically. LandSale has not verified them. Relying on these details is at your own risk, always carry out independent checks before committing to a purchase.
LandSale full disclaimer
Marketing information only - not formal particulars. The details on this website are provided for general guidance and do not constitute an offer or contract. Neither LandSale nor the advertising estate/land agent accepts responsibility for any inaccuracy.
1. Source of information
- Agent-supplied content: Core description, asking price, tenure, measurements, photographs and planning history are uploaded by the appointed agent, who remains solely responsible for their accuracy.
- Automated tags & categorisation: Property type, land-use class, acreage bands and similar labels may be applied by machine-learning models. They are intended as a helpful guide only and may not reflect the property's legal status or permitted use.
- Third-party & enriched data layers: Maps, boundary outlines, planning designations, soil reports, broadband coverage and other environmental or location-based insights are licensed from external suppliers. Such data are supplied “as is", may be incomplete or out of date and are subject to change without notice.
2. Verification required
Prospective purchasers must verify critical matters, including but not limited to planning permission, title boundaries, public rights of way, environmental constraints, acreage, services, access and VAT status, through their own inspections, specialist surveys, legal advisers and the selling agent before relying on the information or entering into any contract.
3. No warranty or liability
LandSale gives no warranty, express or implied, as to the accuracy, completeness or fitness for any particular purpose of the information displayed. LandSale shall not be liable for any loss, damage, cost or expense arising directly or indirectly from any use of or reliance on such information, save where liability may not be excluded by law.
4. Updates & feedback
If you believe any detail on this listing is inaccurate, please let us know. We will investigate and, where appropriate, update the listing or notify the agent.
© LandSale | Version 1.2 - January 2026
Listing agent
BuckleyBrown, Mansfield
55-57 Leeming Street, Mansfield, Notts, NG18 1ND
Enquire about this property
Contact BuckleyBrown, Mansfield
55-57 Leeming Street, Mansfield, Notts, NG18 1ND
View agent profile