Nags Head Yorkley Slade, Yorkley Slade, GL15 4RX
- Land size
- 2.9 acres
Key Features
- Beautiful Gloucestershire location
- Views of the River Severn and Vale of Berkeley
- 30 Mins from Cheltenham
- Extensive site of 2.9 acres
- Main bar, 2 x lounge areas (c 60)
- Abundance of external seating (100+)
- 3 bedroom private accommodation
- Needs refurbishment & decorating
- Available with vacant possession (closed)
- Sold as Seen
Description
The Nags Head is a pleasant white-washed rendered building that dates from 1788. It is a single storey building with roof loft.
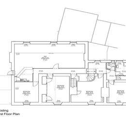
The pub is open plan in layout but solidly traditional, with an L-Shape main bar area (c 30), 2 reception/lounge areas (c 30) and a Ladies and Gents WC. There is also an upstairs area previously used as a skittle alley/bar/function room. There is a trade kitchen with prep area, ancillary storage space and a ground floor cellar.
The 1st floor also includes private accommodation, consisting of 3 bedrooms, lounge and bathroom. The access is internal only.
All the areas are tired and in need of refurbishment and restoration.
There is an extensive grassed field area to the rear and a beer garden close to the pub (c 100). To the front of the Nags Head is a pleasant enclosed grassed area laid out with bench tables (c 30). There are extensive views to be enjoyed from an adjoining paddock, with a panoramic vista down towards the River Severn and onto the Vale of Berkeley and the hills beyond.
Property details
- Tenure
- Freehold
- Council Tax Band
- Ask Agent
- Date Posted
- 2026-01-29
Utilities & Restrictions
Utilities
- Electricity
- Ask Agent
- Water
- Ask Agent
- Heating
- Ask Agent
- Broadband
- Ask Agent
- Sewerage
- Ask Agent
Rights & Restrictions
- Public Rights of Way
- Ask Agent
- Private Rights of Way
- Ask Agent
- Listed Property
- Ask Agent
- Restrictions
- Ask Agent
Property Features
- Accessibility
- Ask Agent
- Parking
- Ask Agent
- Garden
- Garden
Important notice: Information, maps and tags on this page are supplied by the advertising agent or generated automatically. LandSale has not verified them. Relying on these details is at your own risk, always carry out independent checks before committing to a purchase.
LandSale full disclaimer
Marketing information only - not formal particulars. The details on this website are provided for general guidance and do not constitute an offer or contract. Neither LandSale nor the advertising estate/land agent accepts responsibility for any inaccuracy.
1. Source of information
- Agent-supplied content: Core description, asking price, tenure, measurements, photographs and planning history are uploaded by the appointed agent, who remains solely responsible for their accuracy.
- Automated tags & categorisation: Property type, land-use class, acreage bands and similar labels may be applied by machine-learning models. They are intended as a helpful guide only and may not reflect the property's legal status or permitted use.
- Third-party & enriched data layers: Maps, boundary outlines, planning designations, soil reports, broadband coverage and other environmental or location-based insights are licensed from external suppliers. Such data are supplied “as is", may be incomplete or out of date and are subject to change without notice.
2. Verification required
Prospective purchasers must verify critical matters, including but not limited to planning permission, title boundaries, public rights of way, environmental constraints, acreage, services, access and VAT status, through their own inspections, specialist surveys, legal advisers and the selling agent before relying on the information or entering into any contract.
3. No warranty or liability
LandSale gives no warranty, express or implied, as to the accuracy, completeness or fitness for any particular purpose of the information displayed. LandSale shall not be liable for any loss, damage, cost or expense arising directly or indirectly from any use of or reliance on such information, save where liability may not be excluded by law.
4. Updates & feedback
If you believe any detail on this listing is inaccurate, please let us know. We will investigate and, where appropriate, update the listing or notify the agent.
© LandSale | Version 1.2 - January 2026
Listing agent
Everard Cole Ltd, Cambridge
The Quad Cambridge No. 9 Journey Campus Castle Park Cambridge CB3 0AX
Enquire about this property
Contact Everard Cole Ltd, Cambridge
The Quad Cambridge No. 9 Journey Campus Castle Park Cambridge CB3 0AX
View agent profile