Albion Road, Newtown, Newmill
Key Features
- Full Planning permission granted
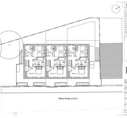
- Approved for 3 three-storey townhouses
- Generous plot size: approx. 395 sqm / 4,252 sq ft
- Fantastic ROI
Description
Prime development opportunity – Planning approved for 3 contemporary townhouses.
An excellent opportunity to acquire a parcel of land with full planning permission for the construction of three architect-designed, three-bedroom townhouses, set across three storeys in a well-established location with strong demand for modern housing.
Located in a desirable residential area, the approved development includes the demolition of part of the existing boundary wall fronting Albion Road, allowing direct access to each new dwelling whilst retaining privacy.
The proposed homes will offer modern layouts with spacious living areas, multiple bathrooms, and private garden spaces—ideal for family living or simply high-quality rental accommodation.
Accommodation (Units 1,2 & 3)
Lower Ground Floor GIA (approx.) = 38.0 m2 / 409 ft2
Upper Ground Floor GIA (approx.) = 38.0 m2 / 409 ft2
First Floor GIA (approx.) = 38.0 m2 / 409 ft2
Total GIA per unit (approx.) = 114.0 m2 / 1,227 ft2
Overall combined GIA for the three units (approx.) = 342.0 m2 / 3,681 ft2
Tenure:
Freehold
Planning Ref: HPK/2024/0194
All planning documents and drawings are available upon request.
We anticipate a large amount of interest in the site so viewings will be done over a number of set appointments.
Visit/contact the offices for more information & to arrange access.
Whilst Acobas will try and supply as much information as we can about the planning status of the land / property, it is important that prospective purchasers ensure they have inspected the land / property and rely upon their own enquiries, assessments and due diligence with regards to the planning status and current or potential uses. All information is supplied in good faith and Acobas cannot be held liable.
Property details
- Tenure
- Freehold
- Council Tax Band
- TBC
- Date Posted
- 2026-01-29
Utilities & Restrictions
Utilities
- Electricity
- Ask Agent
- Water
- Ask Agent
- Heating
- Ask Agent
- Broadband
- Ask Agent
- Sewerage
- Ask Agent
Rights & Restrictions
- Public Rights of Way
- Ask Agent
- Private Rights of Way
- Ask Agent
- Listed Property
- Ask Agent
- Restrictions
- Ask Agent
Property Features
- Accessibility
- Ask Agent
- Parking
- Ask Agent
- Garden
- Garden
Important notice: Information, maps and tags on this page are supplied by the advertising agent or generated automatically. LandSale has not verified them. Relying on these details is at your own risk, always carry out independent checks before committing to a purchase.
LandSale full disclaimer
Marketing information only - not formal particulars. The details on this website are provided for general guidance and do not constitute an offer or contract. Neither LandSale nor the advertising estate/land agent accepts responsibility for any inaccuracy.
1. Source of information
- Agent-supplied content: Core description, asking price, tenure, measurements, photographs and planning history are uploaded by the appointed agent, who remains solely responsible for their accuracy.
- Automated tags & categorisation: Property type, land-use class, acreage bands and similar labels may be applied by machine-learning models. They are intended as a helpful guide only and may not reflect the property's legal status or permitted use.
- Third-party & enriched data layers: Maps, boundary outlines, planning designations, soil reports, broadband coverage and other environmental or location-based insights are licensed from external suppliers. Such data are supplied “as is", may be incomplete or out of date and are subject to change without notice.
2. Verification required
Prospective purchasers must verify critical matters, including but not limited to planning permission, title boundaries, public rights of way, environmental constraints, acreage, services, access and VAT status, through their own inspections, specialist surveys, legal advisers and the selling agent before relying on the information or entering into any contract.
3. No warranty or liability
LandSale gives no warranty, express or implied, as to the accuracy, completeness or fitness for any particular purpose of the information displayed. LandSale shall not be liable for any loss, damage, cost or expense arising directly or indirectly from any use of or reliance on such information, save where liability may not be excluded by law.
4. Updates & feedback
If you believe any detail on this listing is inaccurate, please let us know. We will investigate and, where appropriate, update the listing or notify the agent.
© LandSale | Version 1.2 - January 2026
Listing agent
Acobas, Knutsford
25 Princess Street, Knutsford, WA16 6BW
Enquire about this property
Contact Acobas, Knutsford
25 Princess Street, Knutsford, WA16 6BW
View agent profile