Main Road, Shutlanger, NN12
Description
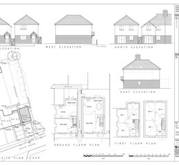
A rarely available single building plot, granted Full Planning Permission by West Northamptonshire Council, under reference 2025/0737/FULL, for a three bedroom house, complete with a long, established garden and driveway parking, situated on the edge of the sought-after village of Shutlanger.
Shutlanger - The desirable village of Shutlanger is situated about nine miles south of Northampton with easy access to the A5 to Towcester and Milton Keynes and the A508 Northampton to Stony Stratford road, next to Stoke Bruerne. Road communications are good with junction 15 of the M1 some five miles to the north. There is a rail service from Northampton and Milton Keynes to London (Euston).
In the village there is a public house, with a primary school in the neighbouring village of Stoke Bruerne through which the Grand Union Canal runs and where there is the Waterways Museum and Canal Side public houses and restaurants. Educational facilities are well served in the area with secondary education available in the village of Roade which has a school bus.
Sporting activities in the area include rugby, hockey, tennis, netball and cricket at the nearby Towcestrians Sports Club, golf at Silverstone and Whittlebury Hall, sailing at Draycote Water, Pitsford and Hollowell Reservoirs, and of course the world famous motor racing at Silverstone.
Features - Granted Full Planning Permission on the 4th of September 2025, under reference 2025/0737/FULL, for a two storey, three bedroom house, complete with a long, established garden and driveway parking. We understand this development is liable for Community Infrastructure Levy, (CIL), the charging rate set out by West Northamptonshire Council is £288.56 per sq mt, however it may be possible to gain a self-build exemption, with the proviso that the owner lives in the completed property for a minimum of three years. Any prospective purchaser should check this information with the Council and their own legal advisors before commitment to purchase.
Local Authority - West Northamptonshire Council
The Forum, Moat Lane
Towcester, NN12 6AD
Council Tax Band - Band - To be determined on completion of build
Viewing Arrangements - Strictly by prior appointment via the selling agents, Howkins and Harrison. Tel:01327-353575.
Services - The following services are available adjacent to the plot; gas, electricity, water and drainage. None of the above services have been tested and purchasers should note that it is their specific responsibility to make their own enquiries of the appropriate authorities as to the location, adequacy and availability of mains services.
Fixtures And Fittings - Only those items in the nature of fixtures and fittings mentioned in these particulars are included in the sale. Other items are specifically excluded. None of the appliances have been tested by the agents and they are not certified or warrantied in any way.
Floorplan & Land App - Howkins and Harrison provide these plans for reference only - they are not to scale.
Important Notice - Every care has been taken with the preparation of these Sales Particulars, but complete accuracy cannot be guaranteed. In all cases, buyers should verify matters for themselves. Where property alterations have been undertaken buyers should check that relevant permissions have been obtained. If there is any point, which is of particular importance let us know and we will verify it for you. These Particulars do not constitute a contract or part of a contract. All measurements are approximate. The Fixtures, Fittings, Services & Appliances have not been tested and therefore no guarantee can be given that they are in working order. Photographs are provided for general information and it cannot be inferred that any item shown is included in the sale. Plans are provided for general guidance and are not to scale.
Property details
- Tenure
- Freehold
- Council Tax Band
- TBC
- Date Posted
- 2026-01-29
Utilities & Restrictions
Utilities
- Electricity
- Ask Agent
- Water
- Ask Agent
- Heating
- Ask Agent
- Broadband
- Ask Agent
- Sewerage
- Ask Agent
Rights & Restrictions
- Public Rights of Way
- Ask Agent
- Private Rights of Way
- Ask Agent
- Listed Property
- Ask Agent
- Restrictions
- Ask Agent
Property Features
- Accessibility
- Ask Agent
- Parking
- On-Street Parking
- Garden
- Garden
Important notice: Information, maps and tags on this page are supplied by the advertising agent or generated automatically. LandSale has not verified them. Relying on these details is at your own risk, always carry out independent checks before committing to a purchase.
LandSale full disclaimer
Marketing information only - not formal particulars. The details on this website are provided for general guidance and do not constitute an offer or contract. Neither LandSale nor the advertising estate/land agent accepts responsibility for any inaccuracy.
1. Source of information
- Agent-supplied content: Core description, asking price, tenure, measurements, photographs and planning history are uploaded by the appointed agent, who remains solely responsible for their accuracy.
- Automated tags & categorisation: Property type, land-use class, acreage bands and similar labels may be applied by machine-learning models. They are intended as a helpful guide only and may not reflect the property's legal status or permitted use.
- Third-party & enriched data layers: Maps, boundary outlines, planning designations, soil reports, broadband coverage and other environmental or location-based insights are licensed from external suppliers. Such data are supplied “as is", may be incomplete or out of date and are subject to change without notice.
2. Verification required
Prospective purchasers must verify critical matters, including but not limited to planning permission, title boundaries, public rights of way, environmental constraints, acreage, services, access and VAT status, through their own inspections, specialist surveys, legal advisers and the selling agent before relying on the information or entering into any contract.
3. No warranty or liability
LandSale gives no warranty, express or implied, as to the accuracy, completeness or fitness for any particular purpose of the information displayed. LandSale shall not be liable for any loss, damage, cost or expense arising directly or indirectly from any use of or reliance on such information, save where liability may not be excluded by law.
4. Updates & feedback
If you believe any detail on this listing is inaccurate, please let us know. We will investigate and, where appropriate, update the listing or notify the agent.
© LandSale | Version 1.2 - January 2026
Listing agent
Howkins & Harrison LLP, Towcester
98A Watling Street East, Towcester, NN12 6BT
Enquire about this property
Contact Howkins & Harrison LLP, Towcester
98A Watling Street East, Towcester, NN12 6BT
View agent profile