Cawthorne Crescent, Filey
- Land size
- 0.17 acres
- Bedrooms
- 2
- Bathrooms
- 1
Key Features
- BUILDING PLOT
- APPROXIMATELY 730 sqm / 0.17 acres
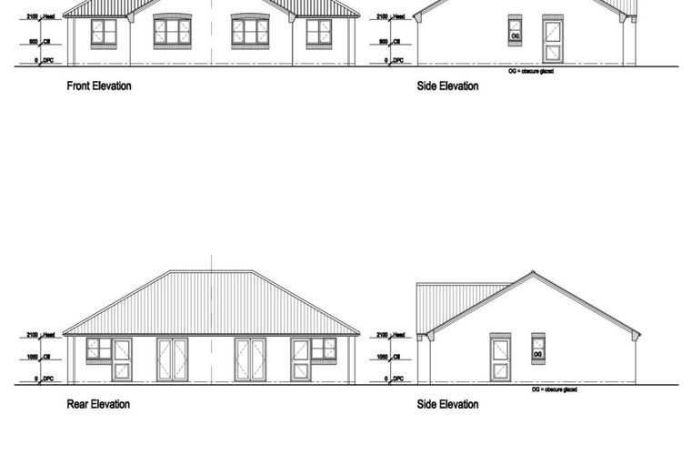
- PLANNING PERMISSION PASSED HISTORICALLY FOR TWO, TWO BEDROOM SEMI DETACHED BUNGALOWS
Description
Colin Ellis Property Services are delighted to bring to the market this BUILDING PLOT in Filey. Positioned on Cawthorne Crescent the site had planning permission passed historically for the construction of two, TWO BEDROOM SEMI DETACHED BUNGALOWS. Rarely found on the market the site would suit a SELF BUILD or DEVELOPER and could easily be adapted for a SINGLE DETACHED BUNGALOW.
Location - The plot is situated on a greenfield site that is approximately 730 sqm / 0.17 acres and set within an already established residential housing area of properties of similar character and style. It is approximately 0.5 miles west of Filey town centre and 0.9 miles from Filey Beach.
Tenure - The site is being sold with the Freehold title.
Bungalow Dimensions -
Lounge - 3.2 x 5.2 (10'5" x 17'0") -
Kitchen - 2.7 x 3 (8'10" x 9'10") -
Bathroom / Wc - 1.7 x 2.15 (5'6" x 7'0") -
Bedroom One - 3.2 x 4 (10'5" x 13'1") -
Bedroom Two - 2.7 x 2.3 (8'10" x 7'6" ) -
Property details
- Tenure
- Freehold
- Council Tax Band
- TBC
- Date Posted
- 2026-01-29
Utilities & Restrictions
Utilities
- Electricity
- Ask Agent
- Water
- Ask Agent
- Heating
- Ask Agent
- Broadband
- Ask Agent
- Sewerage
- Ask Agent
Rights & Restrictions
- Public Rights of Way
- Ask Agent
- Private Rights of Way
- Ask Agent
- Listed Property
- Ask Agent
- Restrictions
- Ask Agent
Property Features
- Accessibility
- Ask Agent
- Parking
- Ask Agent
- Garden
- Ask Agent
Important notice: Information, maps and tags on this page are supplied by the advertising agent or generated automatically. LandSale has not verified them. Relying on these details is at your own risk, always carry out independent checks before committing to a purchase.
LandSale full disclaimer
Marketing information only - not formal particulars. The details on this website are provided for general guidance and do not constitute an offer or contract. Neither LandSale nor the advertising estate/land agent accepts responsibility for any inaccuracy.
1. Source of information
- Agent-supplied content: Core description, asking price, tenure, measurements, photographs and planning history are uploaded by the appointed agent, who remains solely responsible for their accuracy.
- Automated tags & categorisation: Property type, land-use class, acreage bands and similar labels may be applied by machine-learning models. They are intended as a helpful guide only and may not reflect the property's legal status or permitted use.
- Third-party & enriched data layers: Maps, boundary outlines, planning designations, soil reports, broadband coverage and other environmental or location-based insights are licensed from external suppliers. Such data are supplied “as is", may be incomplete or out of date and are subject to change without notice.
2. Verification required
Prospective purchasers must verify critical matters, including but not limited to planning permission, title boundaries, public rights of way, environmental constraints, acreage, services, access and VAT status, through their own inspections, specialist surveys, legal advisers and the selling agent before relying on the information or entering into any contract.
3. No warranty or liability
LandSale gives no warranty, express or implied, as to the accuracy, completeness or fitness for any particular purpose of the information displayed. LandSale shall not be liable for any loss, damage, cost or expense arising directly or indirectly from any use of or reliance on such information, save where liability may not be excluded by law.
4. Updates & feedback
If you believe any detail on this listing is inaccurate, please let us know. We will investigate and, where appropriate, update the listing or notify the agent.
© LandSale | Version 1.2 - January 2026
Listing agent
Colin Ellis Estate Agents, Scarborough
49 Aberdeen Walk, Scarborough, YO11 1BD
Enquire about this property
Contact Colin Ellis Estate Agents, Scarborough
49 Aberdeen Walk, Scarborough, YO11 1BD
View agent profile