Marshalls Elm, Street, BA16
- Land size
- 0.3 acres
Key Features
- Residential development opportunity
- Set in a generous 0.3 acre plot on the edge of Street
- Lot 2
- Planning reference 2024/1123/FUL
- Rare advantage of having mains electric, water and a private sewage system already in place
- Chance to build a totally unique and impressive detached home in a tucked away position
Description
- An exciting opportunity to acquire one of two building plots with consent for erection of two individually impressive detached four bedroom homes on the outskirts of Street within proximity to Millfield School campus.
Initial works on site have started and the plots have been defined and fenced, as well as construction of a bat shed on Plot 2 in accordance with the planning requirements.
Shared access will be taken via right of way leading off Slugg Hill with an obligation upon all users for shared maintenance.
Lot 2 – Plot 2
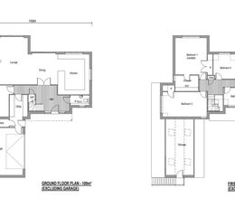
A well designed detached four bedroom home with integral garage. The garage benefits a first floor storage space indicated on the plans, providing further 18sqm. The planning submission proposed a mix of natural local stone and timber cladding set under double roman clay tiles.
Consent was granted March 2025, subject to conditions, under application number 2024/1123/FUL for Erection of 2no. 4 bed detached dwellings with integral garages. To note, the Vendor is retaining Plot 1 as indicated on this submission.
A restrictive covenant will prevent the ridge height being higher and prevent the footprint moving further south and/or east from existing plans. There will be no restrictions on other directions or design.
Plot size of approximately 0.30 acres.
Planning Information - Situated within Somerset Council (former Mendip area) and planning information can be obtained via the planning portal. Or additional information is available from the selling agents. Interested parties must satisfy themselves with regard to any planning investigations, consent and conditions.
Method of Sale - For sale by Private Treaty. Offers are invited on a conditional or unconditional basis off the following guide prices:
Lot 2 £300,000 (Plot 2)
Parties must satisfy themselves with regard to potential end values (GDV) but our local residential office at Street is contactable for general enquiries.
Local Council - Somerset Council (former Mendip area)
Services - We understand that Lot 1 is already connected to mains water and electricity. Our vendor has arranged connection dates this summer (2026) for mains electricity and water to Lot 2. A shared sewage treatment plant is also due to be installed shortly, and this will serve all three plots with shared maintenance liability. This will simply need to be connected to each Lot by the Purchasers. Purchasers to satisfy themselves about location and capacity of services.
Tenure - Freehold, vacant possession upon completion.
EPC - Existing dwelling is exempt due to intended replacement.
Viewings - Strictly by prior appointment only.
Community Infrastructure Levy - Somerset Council does not operate CIL the in the former Mendip Area.
Location - Set in an excellent position off Slugg Hill, which leads off Somerton Road on the outskirts of Street, Somerset. Within close proximity to Millfield School campus and bordered by farm land and tree planting.
What3Words location ///bolsters.lentil.returns
Development-Property
Property details
- Tenure
- Freehold
- Council Tax Band
- Ask Agent
- Date Posted
- 2026-01-29
Utilities & Restrictions
Utilities
- Electricity
- Mains
- Water
- Mains
- Heating
- Ask Agent
- Broadband
- Ask Agent
- Sewerage
- Septic Tank / Private
Rights & Restrictions
- Public Rights of Way
- Ask Agent
- Private Rights of Way
- Ask Agent
- Listed Property
- Ask Agent
- Restrictions
- Ask Agent
Property Features
- Accessibility
- Ask Agent
- Parking
- Parking Available
- Garden
- Ask Agent
Map Location
Important notice: Information, maps and tags on this page are supplied by the advertising agent or generated automatically. LandSale has not verified them. Relying on these details is at your own risk, always carry out independent checks before committing to a purchase.
LandSale full disclaimer
Marketing information only - not formal particulars. The details on this website are provided for general guidance and do not constitute an offer or contract. Neither LandSale nor the advertising estate/land agent accepts responsibility for any inaccuracy.
1. Source of information
- Agent-supplied content: Core description, asking price, tenure, measurements, photographs and planning history are uploaded by the appointed agent, who remains solely responsible for their accuracy.
- Automated tags & categorisation: Property type, land-use class, acreage bands and similar labels may be applied by machine-learning models. They are intended as a helpful guide only and may not reflect the property's legal status or permitted use.
- Third-party & enriched data layers: Maps, boundary outlines, planning designations, soil reports, broadband coverage and other environmental or location-based insights are licensed from external suppliers. Such data are supplied “as is", may be incomplete or out of date and are subject to change without notice.
2. Verification required
Prospective purchasers must verify critical matters, including but not limited to planning permission, title boundaries, public rights of way, environmental constraints, acreage, services, access and VAT status, through their own inspections, specialist surveys, legal advisers and the selling agent before relying on the information or entering into any contract.
3. No warranty or liability
LandSale gives no warranty, express or implied, as to the accuracy, completeness or fitness for any particular purpose of the information displayed. LandSale shall not be liable for any loss, damage, cost or expense arising directly or indirectly from any use of or reliance on such information, save where liability may not be excluded by law.
4. Updates & feedback
If you believe any detail on this listing is inaccurate, please let us know. We will investigate and, where appropriate, update the listing or notify the agent.
© LandSale | Version 1.2 - January 2026
Listing agent
Cooper & Tanner, Frome
6 The Bridge, Frome, BA11 1AR