North End Way, London, NW3
- Land size
- 0.02 acres
Key Features
- Planning consent for 2 x 4-bedroom houses
- Adjacent to Hampstead Heath
- Cleared site
- Prime location
Description
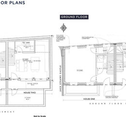
Cleared site with planning consent for 2x 4-bedroom houses in a prime location adjacent to Hampstead Heath.
Cleared site of approximately 0.008 ha (0.02 acre) with planning consents (Ref: APP/X5210/W/20/3261840 and APP/X5210/Y/20/3261841) for a residential development of two 4-bedroom houses of approximately 139.82 sq. m (1505 sq. ft) and 129.97 sq. m (1399 sq. ft).
The site is situated within the London Borough of Camden as part of the Hampstead Conservation Area, adjacent to the Grade II listed Jack Straws Castle Public House and Hampstead Heath.
Hampstead Underground station (Northern line) is around 0.4 miles away and Hampstead Heath Overground station about 0.9 miles away providing easy access to central London.
Offers in the region of £1,600,000 for the long leasehold interest with vacant possession subject to contract should be submitted to owners' agents Jeremy Leaf & Co from whom further planning details, plans, viewing arrangements etc are available upon request.
Property details
- Tenure
- Leasehold
- Council Tax Band
- Ask Agent
- Date Posted
- 2026-01-29
Leasehold Information
- Length of Lease
- 999 years remaining
Utilities & Restrictions
Utilities
- Electricity
- Ask Agent
- Water
- Ask Agent
- Heating
- Ask Agent
- Broadband
- Ask Agent
- Sewerage
- Ask Agent
Rights & Restrictions
- Public Rights of Way
- Ask Agent
- Private Rights of Way
- Ask Agent
- Listed Property
- Ask Agent
- Restrictions
- Ask Agent
Property Features
- Accessibility
- Ask Agent
- Parking
- Ask Agent
- Garden
- Ask Agent
Important notice: Information, maps and tags on this page are supplied by the advertising agent or generated automatically. LandSale has not verified them. Relying on these details is at your own risk, always carry out independent checks before committing to a purchase.
LandSale full disclaimer
Marketing information only - not formal particulars. The details on this website are provided for general guidance and do not constitute an offer or contract. Neither LandSale nor the advertising estate/land agent accepts responsibility for any inaccuracy.
1. Source of information
- Agent-supplied content: Core description, asking price, tenure, measurements, photographs and planning history are uploaded by the appointed agent, who remains solely responsible for their accuracy.
- Automated tags & categorisation: Property type, land-use class, acreage bands and similar labels may be applied by machine-learning models. They are intended as a helpful guide only and may not reflect the property's legal status or permitted use.
- Third-party & enriched data layers: Maps, boundary outlines, planning designations, soil reports, broadband coverage and other environmental or location-based insights are licensed from external suppliers. Such data are supplied “as is", may be incomplete or out of date and are subject to change without notice.
2. Verification required
Prospective purchasers must verify critical matters, including but not limited to planning permission, title boundaries, public rights of way, environmental constraints, acreage, services, access and VAT status, through their own inspections, specialist surveys, legal advisers and the selling agent before relying on the information or entering into any contract.
3. No warranty or liability
LandSale gives no warranty, express or implied, as to the accuracy, completeness or fitness for any particular purpose of the information displayed. LandSale shall not be liable for any loss, damage, cost or expense arising directly or indirectly from any use of or reliance on such information, save where liability may not be excluded by law.
4. Updates & feedback
If you believe any detail on this listing is inaccurate, please let us know. We will investigate and, where appropriate, update the listing or notify the agent.
© LandSale | Version 1.2 - January 2026
Listing agent
Jeremy Leaf & Co, Residential Development
863 High Road London N12 8PT
Enquire about this property
Contact Jeremy Leaf & Co, Residential Development
863 High Road London N12 8PT
View agent profile