Sand Pit Lane, Alkborough, North Lincolnshire, DN15
- Bedrooms
- 4
- Bathrooms
- 3
Key Features
- A SUPERB RESIDENTIAL BUILDING PLOT
- EXCELLENT OPPORTUNITY TO BUILD YOUR DREAM HOME
- HIGHLY DESIRABLE PRIVATE VILLAGE SETTING
- PA/2023/144
- PLANNING PERMISSION FOR A STYLISH DETACHED HOUSE
- RIVER HUMBER VIEWS
- VIEWING IS ESSENTIAL
Description
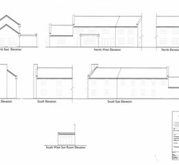
** PA/2023/144 ** FANTASTIC RESIDENTIAL BUILDING PLOT ** A rare opportunity to purchase a substantial private residential building plot situated within the highly desirable semi-rural village of Alkborough enjoying excellent River Humber views. Benefitting from planning permission to erect a new detached dwelling, including demolition of the existing barn, on land to the rear of Pale Close, Sandpit Lane. The contemporary house design is ideal for a modern family or professional couple with accommodation to comprise, a large central open plan living/dining kitchen leading to a sun room and fine main living room, spacious utility room and cloakroom. The first floor provides 4 double bedrooms with a feature master bedroom suite benefitting from a large dressing room and en-suite bathroom, a 'jack & jill' ensuite to bedrooms 2 and 3 and a main family bathroom. The property sits within surrounding private gardens with a substantial driveway allowing excellent parking with direct access to an integral double garage. Viewing of the site comes with the agents highest of recommendations. View via our Brigg office.
** PA/2023/144 ** FANTASTIC RESIDENTIAL BUILDING PLOT ** A rare opportunity to purchase a substantial private residential building plot situated within the highly desirable semi-rural village of Alkborough enjoying excellent River Humber views. Benefitting from planning permission to erect a new detached dwelling, including demolition of the existing barn, on land to the rear of Pale Close, Sandpit Lane. The contemporary house design is ideal for a modern family or professional couple with accommodation to comprise, a large central open plan living/dining kitchen leading to a sun room and fine main living room, spacious utility room and cloakroom. The first floor provides 4 double bedrooms with a feature master bedroom suite benefitting from a large dressing room and en-suite bathroom, a 'jack & jill' ensuite to bedrooms 2 and 3 and a main family bathroom. The property sits within surrounding private gardens with a substantial driveway allowing excellent parking with direct access to an integral double garage. Viewing of the site comes with the agents highest of recommendations. View via our Brigg office.
Property details
- Tenure
- Freehold
- Council Tax Band
- TBC
- Date Posted
- 2026-01-29
Utilities & Restrictions
Utilities
- Electricity
- Ask Agent
- Water
- Ask Agent
- Heating
- Ask Agent
- Broadband
- Ask Agent
- Sewerage
- Ask Agent
Rights & Restrictions
- Public Rights of Way
- Ask Agent
- Private Rights of Way
- Ask Agent
- Listed Property
- Ask Agent
- Restrictions
- Ask Agent
Property Features
- Accessibility
- Ask Agent
- Parking
- Parking Available
- Garden
- Garden
Important notice: Information, maps and tags on this page are supplied by the advertising agent or generated automatically. LandSale has not verified them. Relying on these details is at your own risk, always carry out independent checks before committing to a purchase.
LandSale full disclaimer
Marketing information only - not formal particulars. The details on this website are provided for general guidance and do not constitute an offer or contract. Neither LandSale nor the advertising estate/land agent accepts responsibility for any inaccuracy.
1. Source of information
- Agent-supplied content: Core description, asking price, tenure, measurements, photographs and planning history are uploaded by the appointed agent, who remains solely responsible for their accuracy.
- Automated tags & categorisation: Property type, land-use class, acreage bands and similar labels may be applied by machine-learning models. They are intended as a helpful guide only and may not reflect the property's legal status or permitted use.
- Third-party & enriched data layers: Maps, boundary outlines, planning designations, soil reports, broadband coverage and other environmental or location-based insights are licensed from external suppliers. Such data are supplied “as is", may be incomplete or out of date and are subject to change without notice.
2. Verification required
Prospective purchasers must verify critical matters, including but not limited to planning permission, title boundaries, public rights of way, environmental constraints, acreage, services, access and VAT status, through their own inspections, specialist surveys, legal advisers and the selling agent before relying on the information or entering into any contract.
3. No warranty or liability
LandSale gives no warranty, express or implied, as to the accuracy, completeness or fitness for any particular purpose of the information displayed. LandSale shall not be liable for any loss, damage, cost or expense arising directly or indirectly from any use of or reliance on such information, save where liability may not be excluded by law.
4. Updates & feedback
If you believe any detail on this listing is inaccurate, please let us know. We will investigate and, where appropriate, update the listing or notify the agent.
© LandSale | Version 1.2 - January 2026
Listing agent
Paul Fox, Brigg
10 Market Place, Brigg, DN20 8ES
Enquire about this property
Contact Paul Fox, Brigg
10 Market Place, Brigg, DN20 8ES
View agent profile