Land Bound By, Earl St, Bethel St & Taylor St, Heywood, Lancashire OL10 1HT
Key Features
- Auction: 17.12.2025 09:00
- Development Site
- Planning for Twenty Three Apartments
- Modern Four Storey Building
- Town Centre Location
- Excellent Transport Links
- EPC Rating: Exempt
Description
This property remains available and open to offers following the auction on 17 December 2025.
Please contact the auctioneers on for further details.
On behalf of Aubrey Lee & Co
A development site with full planning permission for twenty three apartments.
The site is situated to the rear of Market Street in Heywood and bound by Earl Street, Bethel Street and Taylor Street. There is an abundance of local amenities on the door step including, shops, bars, restaurants and excellent transport links to Bury, Rochdale, Middleton and Manchester.
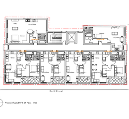
Full planning has been granted for twenty three apartments in a modern, four storey building. Planning Ref - Rochdale Council 23/00727/FUL.
Eight x Two Bedroom Apartments.
Eight x One Bedroom Apartments.
Seven x Studio Apartments.
A great development opportunity in popular and convenient location or as a potential build to rent.
Gross Internal Accommodation of 1162 sqm.
Draft Sales Details These sales details are awaiting vendor approval.
Leasehold Information Any ground rent and service charge review periods will be confirmed in the lease documents within the legal pack.
Note to Buyers We have not been provided with the freeholders title documents, we have been advised by the sellers solicitor's there is no freehold registered. Prospective buyers are advised to make all necessary independent enquiries prior to placing their bid as this will be binding.
Note Please be advised that the auctioneers have not personally inspected the property. Prospective buyers are advised to make a viewing enquiry and any other necessary independent enquiries before placing their bid, as this will be binding.
Tenure: Leasehold
EPC Rating: Exempt
Terms:
Auction Details:
The sale of this property will take place on the stated date by way of Auction Event and is being sold under an Unconditional sale type.
Binding contracts of sale will be exchanged at the point of sale.
All sales are subject to SDL Property Auctions Buyers Terms. Properties located in Scotland will be subject to applicable Scottish law.
Auction Deposit and Fees:
The following deposits and non- refundable auctioneers fees apply:
• 5% deposit (subject to a minimum of £5,000)
• Buyers Fee of 4.8% of the purchase price (subject to a minimum of £6,000 inc. VAT).
The Buyers Fee does not contribute to the purchase price, however it will be taken into account when calculating the Stamp Duty Land Tax for the property (known as Land and Buildings Transaction Tax for properties located in Scotland), because it forms part of the chargeable consideration for the property.
There may be additional fees listed in the Special Conditions of Sale, which will be available to view within the Legal Pack. You must read the Legal Pack carefully before bidding.
Additional Information:
For full details about all auction methods and sale types please refer to the Auction Conduct Guide which can be viewed on the SDL Property Auctions home page.
This guide includes details on the auction registration process, your payment obligations and how to view the Legal Pack (and any applicable Home Report for residential Scottish properties).
Guide Price & Reserve Price:
Each property sold is subject to a Reserve Price. The Reserve Price will be within + or - 10% of the Guide Price. The Guide Price is issued solely as a guide so that a buyer can consider whether or not to pursue their interest. A full definition can be found within the Buyers Terms.
Property details
- Tenure
- Leasehold
- Council Tax Band
- Ask Agent
- Date Posted
- 2026-01-29
Utilities & Restrictions
Utilities
- Electricity
- Ask Agent
- Water
- Ask Agent
- Heating
- Ask Agent
- Broadband
- Ask Agent
- Sewerage
- Ask Agent
Rights & Restrictions
- Public Rights of Way
- Ask Agent
- Private Rights of Way
- Ask Agent
- Listed Property
- Ask Agent
- Restrictions
- Ask Agent
Property Features
- Accessibility
- Ask Agent
- Parking
- Ask Agent
- Garden
- Ask Agent
Important notice: Information, maps and tags on this page are supplied by the advertising agent or generated automatically. LandSale has not verified them. Relying on these details is at your own risk, always carry out independent checks before committing to a purchase.
LandSale full disclaimer
Marketing information only - not formal particulars. The details on this website are provided for general guidance and do not constitute an offer or contract. Neither LandSale nor the advertising estate/land agent accepts responsibility for any inaccuracy.
1. Source of information
- Agent-supplied content: Core description, asking price, tenure, measurements, photographs and planning history are uploaded by the appointed agent, who remains solely responsible for their accuracy.
- Automated tags & categorisation: Property type, land-use class, acreage bands and similar labels may be applied by machine-learning models. They are intended as a helpful guide only and may not reflect the property's legal status or permitted use.
- Third-party & enriched data layers: Maps, boundary outlines, planning designations, soil reports, broadband coverage and other environmental or location-based insights are licensed from external suppliers. Such data are supplied “as is", may be incomplete or out of date and are subject to change without notice.
2. Verification required
Prospective purchasers must verify critical matters, including but not limited to planning permission, title boundaries, public rights of way, environmental constraints, acreage, services, access and VAT status, through their own inspections, specialist surveys, legal advisers and the selling agent before relying on the information or entering into any contract.
3. No warranty or liability
LandSale gives no warranty, express or implied, as to the accuracy, completeness or fitness for any particular purpose of the information displayed. LandSale shall not be liable for any loss, damage, cost or expense arising directly or indirectly from any use of or reliance on such information, save where liability may not be excluded by law.
4. Updates & feedback
If you believe any detail on this listing is inaccurate, please let us know. We will investigate and, where appropriate, update the listing or notify the agent.
© LandSale | Version 1.2 - January 2026
Listing agent
BTG Eddisons Property Auctions, Nationwide
17 Regan Way Toton Nottingham NG9 6RZ
Enquire about this property
Contact BTG Eddisons Property Auctions, Nationwide
17 Regan Way Toton Nottingham NG9 6RZ
View agent profile