Fasque Estate, Aberdeenshire, AB30
- Land size
- 3.3 acres
- Bedrooms
- 4
- Bathrooms
- 5
Key Features
- Planning Permission
- Building Warrant
- Contemporary Design
- Ground Source Heat Pump
- Solar Panels
- Underfloor Heatings
- Home Automation System
- Spiral Wine Cellar
- Wood Burning Stove
- Utility Room
Description
Fantastic opportunity to purchase this substantial building plot which extends to 3.3 acres situated on the magnificent Fasque House Estate in the heart of the Aberdeenshire countryside offering peace and tranquillity in a fine rural setting, yet only a few minutes drive from the A90 which links Dundee to Aberdeen.
Application Reference: APP/2024/1208
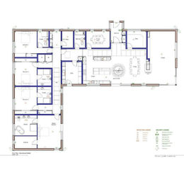
The plot is offered for sale with full services electricity, mains water and BT Telecoms fibre broadband infrastructure. Full planning permission and Building warrant( BW 2021/0163) are approved for a substantial contemporary designed luxury executive dwelling house, extending to 380m2, c/w large double garage and a separate building for use as a stable/store. The current plans include for a high specification build and the plot is ready for the purchaser to commence works immediately or to make changes to own preferences. We enclose examples of both Kitchen and bathroom designs which would compliment the property even further.
Specification:
* Drainage plan and installed bio-septic tank and soakaway
* Ground source heat pump (GSHP)
* Main ventilation heat recovery system ( MVHR)
*Underfloor heating (UFH)
*10kw Solar PV
* Home automation - lights ,music ,security and blinds
* Spiral wine cellar
*3 Sided Spatherm wood burning stove
In addition to the above the top specification includes; Triple glazing, timber frame construction, stone/timber cladding and standing seam anthracite zinc/metal roof.
The plot provides substantial additional amenity space, ideal for equestrian use with sufficient land for grazing paddocks or alternatively the landscaping of extensive private gardens.
A complete set of detailed plans and kitchen, bathroom designs are available to the purchasers.
Property details
- Tenure
- Ask Agent
- Council Tax Band
- Ask Agent
- Date Posted
- 2026-01-29
Utilities & Restrictions
Utilities
- Electricity
- Ask Agent
- Water
- Ask Agent
- Heating
- Gas Central Heating
- Broadband
- Ask Agent
- Sewerage
- Ask Agent
Rights & Restrictions
- Public Rights of Way
- Ask Agent
- Private Rights of Way
- Ask Agent
- Listed Property
- Ask Agent
- Restrictions
- Ask Agent
Property Features
- Accessibility
- Ask Agent
- Parking
- Garage
- Garden
- Garden
Market Value Analysis
Based on properties with houses in Scotland (1+ acres).
Important notice: Information, maps and tags on this page are supplied by the advertising agent or generated automatically. LandSale has not verified them. Relying on these details is at your own risk, always carry out independent checks before committing to a purchase.
LandSale full disclaimer
Marketing information only - not formal particulars. The details on this website are provided for general guidance and do not constitute an offer or contract. Neither LandSale nor the advertising estate/land agent accepts responsibility for any inaccuracy.
1. Source of information
- Agent-supplied content: Core description, asking price, tenure, measurements, photographs and planning history are uploaded by the appointed agent, who remains solely responsible for their accuracy.
- Automated tags & categorisation: Property type, land-use class, acreage bands and similar labels may be applied by machine-learning models. They are intended as a helpful guide only and may not reflect the property's legal status or permitted use.
- Third-party & enriched data layers: Maps, boundary outlines, planning designations, soil reports, broadband coverage and other environmental or location-based insights are licensed from external suppliers. Such data are supplied “as is", may be incomplete or out of date and are subject to change without notice.
2. Verification required
Prospective purchasers must verify critical matters, including but not limited to planning permission, title boundaries, public rights of way, environmental constraints, acreage, services, access and VAT status, through their own inspections, specialist surveys, legal advisers and the selling agent before relying on the information or entering into any contract.
3. No warranty or liability
LandSale gives no warranty, express or implied, as to the accuracy, completeness or fitness for any particular purpose of the information displayed. LandSale shall not be liable for any loss, damage, cost or expense arising directly or indirectly from any use of or reliance on such information, save where liability may not be excluded by law.
4. Updates & feedback
If you believe any detail on this listing is inaccurate, please let us know. We will investigate and, where appropriate, update the listing or notify the agent.
© LandSale | Version 1.2 - January 2026
Listing agent
Wardhaugh Property, Arbroath
155 High Street, Arbroath, DD11 1DR
Enquire about this property
Contact Wardhaugh Property, Arbroath
155 High Street, Arbroath, DD11 1DR
View agent profile