St Catherines Drive, Faversham, Kent
- Bedrooms
- 3
- Bathrooms
- 2
Key Features
- AGENT ID: 2292
- Plot 1:- 1240 Sq feet
- Plots 2&3:- 1440 Sq feet
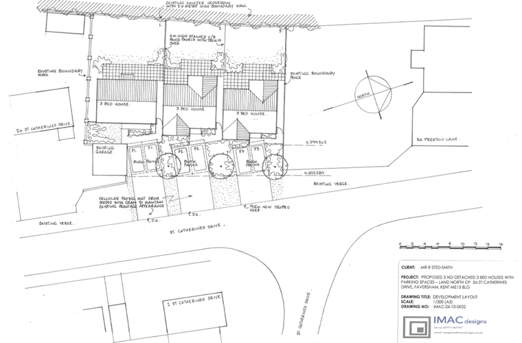
- Full planning permission for 3 x three-bedroom Detached houses
- Situated in a quiet residential setting in Faversham, Kent
- Each dwelling designed with allocated parking
- Level and accessible plot with established boundaries
- Close to local schools, amenities and transport links
- Planning application reference: 25/500593/FULL
Description
Exceptional development opportunity with full planning permission granted for three spacious 3-bedroom homes with private parking on St Catherines Drive, Faversham (ME13 8LG). Planning Ref: 25/500593/FULL.
Full planning permission for 3 x three-bedroom Detached houses
Situated in a quiet residential setting in Faversham, Kent
Each dwelling designed with allocated parking
Level and accessible plot with established boundaries
Close to local schools, amenities and transport links
Planning application reference: 25/500593/FULL
Plot 1:- 1240 Sq feet
Plots 2&3:- 1440 Sq feet
This well-positioned parcel of land on St Catherines Drive presents an excellent opportunity for developers and investors alike. With full planning permission approved for three modern 3-bedroom homes, the site offers a ready-to-build project in a desirable residential area. The proposed dwellings have been thoughtfully designed to blend with the surrounding streetscape while offering generous internal layouts and private parking. The plot benefits from easy access, established boundaries, and a favourable position within a quiet cul-de-sac, making it an appealing prospect for future homeowners.
Faversham is one of Kent’s most historic and sought-after market towns, known for its vibrant community, independent shops, popular eateries and excellent transport connections. St Catherines Drive is conveniently located for local primary and secondary schools, supermarkets, leisure facilities and beautiful countryside walks. High-speed services from Faversham Station provide quick routes to London and the coast, while the A2 and M2 offer easy road connectivity. The combination of heritage charm and modern convenience makes this an ideal location for residential development.
Agent quote:
“A superb opportunity to bring forward a ready-approved residential scheme in one of Faversham’s most desirable neighborhoods—ideal for developers seeking a high-demand location with strong resale potential.”
Please note on land transactions buyers may be required to pay a finder’s fee. All fees will be disclosed prior to any agreement being made.
Property details
- Tenure
- Freehold
- Council Tax Band
- Ask Agent
- Date Posted
- 2026-01-29
Utilities & Restrictions
Utilities
- Electricity
- Ask Agent
- Water
- Ask Agent
- Heating
- Ask Agent
- Broadband
- Ask Agent
- Sewerage
- Ask Agent
Rights & Restrictions
- Public Rights of Way
- Ask Agent
- Private Rights of Way
- Ask Agent
- Listed Property
- Ask Agent
- Restrictions
- Ask Agent
Property Features
- Accessibility
- Ask Agent
- Parking
- Parking Available
- Garden
- Ask Agent
Important notice: Information, maps and tags on this page are supplied by the advertising agent or generated automatically. LandSale has not verified them. Relying on these details is at your own risk, always carry out independent checks before committing to a purchase.
LandSale full disclaimer
Marketing information only - not formal particulars. The details on this website are provided for general guidance and do not constitute an offer or contract. Neither LandSale nor the advertising estate/land agent accepts responsibility for any inaccuracy.
1. Source of information
- Agent-supplied content: Core description, asking price, tenure, measurements, photographs and planning history are uploaded by the appointed agent, who remains solely responsible for their accuracy.
- Automated tags & categorisation: Property type, land-use class, acreage bands and similar labels may be applied by machine-learning models. They are intended as a helpful guide only and may not reflect the property's legal status or permitted use.
- Third-party & enriched data layers: Maps, boundary outlines, planning designations, soil reports, broadband coverage and other environmental or location-based insights are licensed from external suppliers. Such data are supplied “as is", may be incomplete or out of date and are subject to change without notice.
2. Verification required
Prospective purchasers must verify critical matters, including but not limited to planning permission, title boundaries, public rights of way, environmental constraints, acreage, services, access and VAT status, through their own inspections, specialist surveys, legal advisers and the selling agent before relying on the information or entering into any contract.
3. No warranty or liability
LandSale gives no warranty, express or implied, as to the accuracy, completeness or fitness for any particular purpose of the information displayed. LandSale shall not be liable for any loss, damage, cost or expense arising directly or indirectly from any use of or reliance on such information, save where liability may not be excluded by law.
4. Updates & feedback
If you believe any detail on this listing is inaccurate, please let us know. We will investigate and, where appropriate, update the listing or notify the agent.
© LandSale | Version 1.2 - January 2026
Listing agent
VC ESTATES, South East
Unit 1, The Old Bakery, Gardner Street, Herstmonceux, BN27 4LE
Enquire about this property
Contact VC ESTATES, South East
Unit 1, The Old Bakery, Gardner Street, Herstmonceux, BN27 4LE
View agent profile