Mosshouse Road, Blackpool
- Bedrooms
- 5
- Bathrooms
- 1
Key Features
- Substantial Plot Of Land For Sale
- Planning Permission for For A Four/Five Bed Detached House
- Very Popular Location, Close To Motorway Links
- Fantastic Potential
- Call Today To Avoid Any Disappointment
Description
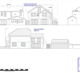
Situated in a much sought after residential location a generous building plot with detailed planning consent granted on 24/11/2021 to build an outstanding generous sized four/five bedroom detached house, a superb opportunity for those looking to build their own dream home.
Please see artist impression and plans for the layout. For full plans and information please visit Blackpool Council Planning Department. Application number 20/0250.
Council Tax Information: Band To be confirmed
Agent Note
In order to purchase a property in the UK, all estate agents are legally required to conduct identity checks on everyone involved in the transaction, in line with anti-money laundering regulations. Farrell Heyworth outsource this process to a trusted third party, and a non-refundable charge will apply. Please contact your local branch for further details.
Property details
- Tenure
- Freehold
- Council Tax Band
- Ask Agent
- Date Posted
- 2026-01-28
Utilities & Restrictions
Utilities
- Electricity
- Ask Agent
- Water
- Ask Agent
- Heating
- Double Glazing, Gas Central Heating
- Broadband
- Ask Agent
- Sewerage
- Ask Agent
Rights & Restrictions
- Public Rights of Way
- Ask Agent
- Private Rights of Way
- Ask Agent
- Listed Property
- Ask Agent
- Restrictions
- Ask Agent
Property Features
- Accessibility
- Ask Agent
- Parking
- Ask Agent
- Garden
- Front Garden, Rear Garden
Important notice: Information, maps and tags on this page are supplied by the advertising agent or generated automatically. LandSale has not verified them. Relying on these details is at your own risk, always carry out independent checks before committing to a purchase.
LandSale full disclaimer
Marketing information only - not formal particulars. The details on this website are provided for general guidance and do not constitute an offer or contract. Neither LandSale nor the advertising estate/land agent accepts responsibility for any inaccuracy.
1. Source of information
- Agent-supplied content: Core description, asking price, tenure, measurements, photographs and planning history are uploaded by the appointed agent, who remains solely responsible for their accuracy.
- Automated tags & categorisation: Property type, land-use class, acreage bands and similar labels may be applied by machine-learning models. They are intended as a helpful guide only and may not reflect the property's legal status or permitted use.
- Third-party & enriched data layers: Maps, boundary outlines, planning designations, soil reports, broadband coverage and other environmental or location-based insights are licensed from external suppliers. Such data are supplied “as is", may be incomplete or out of date and are subject to change without notice.
2. Verification required
Prospective purchasers must verify critical matters, including but not limited to planning permission, title boundaries, public rights of way, environmental constraints, acreage, services, access and VAT status, through their own inspections, specialist surveys, legal advisers and the selling agent before relying on the information or entering into any contract.
3. No warranty or liability
LandSale gives no warranty, express or implied, as to the accuracy, completeness or fitness for any particular purpose of the information displayed. LandSale shall not be liable for any loss, damage, cost or expense arising directly or indirectly from any use of or reliance on such information, save where liability may not be excluded by law.
4. Updates & feedback
If you believe any detail on this listing is inaccurate, please let us know. We will investigate and, where appropriate, update the listing or notify the agent.
© LandSale | Version 1.2 - January 2026
Listing agent
Farrell Heyworth, Fylde Coast
5a, Cleveleys Avenue, Thornton-Cleveleys, FY5 2UH
Enquire about this property
Contact Farrell Heyworth, Fylde Coast
5a, Cleveleys Avenue, Thornton-Cleveleys, FY5 2UH
View agent profile