Radley/Kennington Border
Key Features
- Good Access to Oxford and Abingdon
- Non-Estate Location
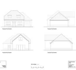
- Consent For Detached Chalet House
- planning application P21/V3119/FUL with Vale White Horse DC
- Gardens , Garage and Parking
- On a Good Bus Route
- Good Facilities in neighbouring Kennington
Description
AGENT NOTES Planning consent passed on planning application P21/V3119/FUL with Vale White Horse DC
Mains water, drainage, gas and electric to site.
CIL payment has been paid by current owner and foundations laid.
LOCATION The land is situated mid-way between the villages of Radley and Kennington and served by an excellent Bus service operating between the City of Oxford and riverside market town of Abingdon. In the nearby village of Radley there is a village shop, primary school, pub and rail station serving both Oxford and Didcot. Kennington also has a primary school, pub and a range of shops.
Abingdon is situated 6 miles south of Oxford on the west bank of the river Thames and 2 miles from the property. The A.34 links Abingdon with Oxford to the North and Didcot to the south both providing railway links to London Paddington (approximate journey time 45 minutes from Didcot). There is also a local station at nearby Radley (c.1 mile), serving both Didcot and Oxford.
The town has a comprehensive range of both independent and state schools and has a range of shops and restaurants while sports and recreation is well catered for in the town, with the purpose-built White Horse Leisure and Tennis Centre, Tilsley Park and the Southern Town Park providing adequate facilities.
Property details
- Tenure
- Freehold
- Council Tax Band
- Ask Agent
- Date Posted
- 2026-01-29
Utilities & Restrictions
Utilities
- Electricity
- Mains
- Water
- Mains
- Heating
- Gas Central Heating
- Broadband
- Ask Agent
- Sewerage
- Mains
Rights & Restrictions
- Public Rights of Way
- Ask Agent
- Private Rights of Way
- Ask Agent
- Listed Property
- Ask Agent
- Restrictions
- Ask Agent
Property Features
- Accessibility
- Ask Agent
- Parking
- Parking Available
- Garden
- Garden
Important notice: Information, maps and tags on this page are supplied by the advertising agent or generated automatically. LandSale has not verified them. Relying on these details is at your own risk, always carry out independent checks before committing to a purchase.
LandSale full disclaimer
Marketing information only - not formal particulars. The details on this website are provided for general guidance and do not constitute an offer or contract. Neither LandSale nor the advertising estate/land agent accepts responsibility for any inaccuracy.
1. Source of information
- Agent-supplied content: Core description, asking price, tenure, measurements, photographs and planning history are uploaded by the appointed agent, who remains solely responsible for their accuracy.
- Automated tags & categorisation: Property type, land-use class, acreage bands and similar labels may be applied by machine-learning models. They are intended as a helpful guide only and may not reflect the property's legal status or permitted use.
- Third-party & enriched data layers: Maps, boundary outlines, planning designations, soil reports, broadband coverage and other environmental or location-based insights are licensed from external suppliers. Such data are supplied “as is", may be incomplete or out of date and are subject to change without notice.
2. Verification required
Prospective purchasers must verify critical matters, including but not limited to planning permission, title boundaries, public rights of way, environmental constraints, acreage, services, access and VAT status, through their own inspections, specialist surveys, legal advisers and the selling agent before relying on the information or entering into any contract.
3. No warranty or liability
LandSale gives no warranty, express or implied, as to the accuracy, completeness or fitness for any particular purpose of the information displayed. LandSale shall not be liable for any loss, damage, cost or expense arising directly or indirectly from any use of or reliance on such information, save where liability may not be excluded by law.
4. Updates & feedback
If you believe any detail on this listing is inaccurate, please let us know. We will investigate and, where appropriate, update the listing or notify the agent.
© LandSale | Version 1.2 - January 2026
Listing agent
Oliver James, Abingdon
The Lambourn, Wyndyke Furlong, Abingdon. OX14 1UJ
Enquire about this property
Contact Oliver James, Abingdon
The Lambourn, Wyndyke Furlong, Abingdon. OX14 1UJ
View agent profile