Anchor Field, Ringmer
- Bedrooms
- 2
- Bathrooms
- 1
Key Features
- BUILDING PLOT WITH FULL PLANNING PERMISSION FOR A 2 BEDROOM HOUSE
- SOUTH FACING REAR GARDEN
- CENTRAL VILLAGE LOCATION
Description
Charles Wycherley Independent Estate Agents are delighted to offer this building plot, which benefits from full planning permission for a new dwelling adjoining the existing no.18 Anchor Field to the west of the house.
The proposed new house would be an end-of-terrace property comprising two double bedrooms, with a front aspect from the second bedroom overlooking Anchor Field and a southern aspect from the main bedroom, which is positioned adjacent to the new bathroom. On the ground floor, the accommodation would include an entrance hall with a downstairs cloakroom, a front kitchen and a full-width 19`7" rear sitting room opening onto the south-facing rear garden, together with a front garden facing Anchor Field.
Anchor Field is in an ideal central village location, just a short walk from the doctors surgery, pharmacy and an excellent shopping parade. The village green is just beyond the shops, with the parish church, village hall and one of the village`s three pubs, The Anchor Inn, surrounding. The property is also very close to the primary and secondary schools and within easy reach of a bus stop with regular services to Lewes and Eastbourne. Lewes is just 3 miles distant, with it`s excellent range of shopping facilities including 3 superstores, many independent shops, cafes, pubs and restaurants, along with the mainline Railway Station (London Victoria 65 mins, London Bridge 70 mins & Brighton 20 mins), adjacent to the Depot Cinema.
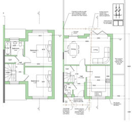
PROPOSED ACCOMMODATION
FIRST FLOOR
LANDING with stairs to ground floor.
BEDROOM 1 (DOUBLE) 13`4 x 11`3.
Fitted double wardrobe cupboard. Double glazed widow to Anchor Field. Radiator.
BEDROOM 2 (DOUBLE) 11`6 x 11`3.
Fitted double wardrobe cupboard. Double glazed widow to rear garden and the south. Radiator.
BATHROOM 7`9 x 5`6.
Panelled bath, pedestal wash basin and low level W.C.
GROUND FLOOR
ENTRANCE HALL from the front garden of Anchor Field. Fitted understairs cupboard.
CLOAKROOM
Low level w.c. and wash basin.
SITTING ROOM/FAMILY/DINING AREA 19`7 x 11`3 overall.
Sitting room area: 13` x 11`3
Double glazed window to Anchor Field, radiator and double door to:-
Family/dining room area: 11`3 x 9`8
Bifold doors to rear garden. Radiator.
FITTED KITCHEN 13` x 9`8
Sink unit, electric hob & oven, dishwasher, fitted extractor fan. Worktops with cupboards and drawers.
OUTSIDE
GARDENS
There is a front area of garden with side walkway to a good sized south facing rear garden.
what3words /// scorecard.presuming.resolves
Notice
Please note we have not tested any apparatus, fixtures, fittings, or services. Interested parties must undertake their own investigation into the working order of these items. All measurements are approximate and photographs provided for guidance only.
Property details
- Tenure
- Freehold
- Council Tax Band
- Ask Agent
- Date Posted
- 2026-01-29
Utilities & Restrictions
Utilities
- Electricity
- Ask Agent
- Water
- Ask Agent
- Heating
- Gas Central Heating
- Broadband
- Ask Agent
- Sewerage
- Ask Agent
Rights & Restrictions
- Public Rights of Way
- Ask Agent
- Private Rights of Way
- Ask Agent
- Listed Property
- Ask Agent
- Restrictions
- Ask Agent
Property Features
- Accessibility
- Ask Agent
- Parking
- Ask Agent
- Garden
- Private Garden
Important notice: Information, maps and tags on this page are supplied by the advertising agent or generated automatically. LandSale has not verified them. Relying on these details is at your own risk, always carry out independent checks before committing to a purchase.
LandSale full disclaimer
Marketing information only - not formal particulars. The details on this website are provided for general guidance and do not constitute an offer or contract. Neither LandSale nor the advertising estate/land agent accepts responsibility for any inaccuracy.
1. Source of information
- Agent-supplied content: Core description, asking price, tenure, measurements, photographs and planning history are uploaded by the appointed agent, who remains solely responsible for their accuracy.
- Automated tags & categorisation: Property type, land-use class, acreage bands and similar labels may be applied by machine-learning models. They are intended as a helpful guide only and may not reflect the property's legal status or permitted use.
- Third-party & enriched data layers: Maps, boundary outlines, planning designations, soil reports, broadband coverage and other environmental or location-based insights are licensed from external suppliers. Such data are supplied “as is", may be incomplete or out of date and are subject to change without notice.
2. Verification required
Prospective purchasers must verify critical matters, including but not limited to planning permission, title boundaries, public rights of way, environmental constraints, acreage, services, access and VAT status, through their own inspections, specialist surveys, legal advisers and the selling agent before relying on the information or entering into any contract.
3. No warranty or liability
LandSale gives no warranty, express or implied, as to the accuracy, completeness or fitness for any particular purpose of the information displayed. LandSale shall not be liable for any loss, damage, cost or expense arising directly or indirectly from any use of or reliance on such information, save where liability may not be excluded by law.
4. Updates & feedback
If you believe any detail on this listing is inaccurate, please let us know. We will investigate and, where appropriate, update the listing or notify the agent.
© LandSale | Version 1.2 - January 2026
Listing agent
Charles Wycherley Independent Estate Agents, Lewes
56 High Street, Lewes, East Sussex, BN7 1XE
Enquire about this property
Contact Charles Wycherley Independent Estate Agents, Lewes
56 High Street, Lewes, East Sussex, BN7 1XE
View agent profile