High Grange Farm, Hett
Key Features
- Exciting Development Opportunity
- Situated Within The Attractive Village of Hett
- Planning For A Detached Three Bedroom Bungalow With Garden & Parking
Description
Addisons Chartered Surveyors are delighted to bring to the market this exciting development opportunity in the attractive village of Hett.
The development site is situated within the village of Hett, nestled in an existing residential street. Hett is a picturesque village surrounded by open countryside located approximately 5 miles south of Durham.
The development is sited to the south of the village pond frequently visited by Ducks and Geese. Hett also benefits from a communal green, football pitch and village hall and is well placed for community purposes, being within a short drive of the A167 highway and the A1 motorway providing good road links to other regional areas.
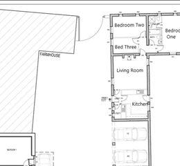
PLANNING
The development offers the
opportunity to a prospective buyer to create a detached three-bedroom bungalow
with a small garden area and off-street parking.
The development benefits from full
planning permission the planning portal reference is 4/11/00463/FPA. The listed
building consent can be viewed at 4/11/00464/LB. Planning has commenced and is
known as Plot 3.
ACCESS
Access to the site is off the
adopted highway onto a shared yard area.
BOUNDARIES
The boundaries of each plot will be
marked on site for identification purposes; however, the purchaser must satisfy
themselves as to the exact extent of the plot.
SERVICES
It is understood that mains
electricity, gas and water are available close by for connection of supply,
however, the purchaser must satisfy themselves as to the cost and availability
of this supply prior to purchase.
VIEWING
Strictly via appointment through the selling agents on .
BROCHURE
CN/CT- 11.01.24
Property details
- Tenure
- Freehold
- Council Tax Band
- TBC
- Date Posted
- 2026-01-29
Utilities & Restrictions
Utilities
- Electricity
- Ask Agent
- Water
- Ask Agent
- Heating
- Ask Agent
- Broadband
- Ask Agent
- Sewerage
- Ask Agent
Rights & Restrictions
- Public Rights of Way
- Ask Agent
- Private Rights of Way
- Ask Agent
- Listed Property
- Ask Agent
- Restrictions
- Ask Agent
Property Features
- Accessibility
- Ask Agent
- Parking
- Parking Available
- Garden
- Garden
Important notice: Information, maps and tags on this page are supplied by the advertising agent or generated automatically. LandSale has not verified them. Relying on these details is at your own risk, always carry out independent checks before committing to a purchase.
LandSale full disclaimer
Marketing information only - not formal particulars. The details on this website are provided for general guidance and do not constitute an offer or contract. Neither LandSale nor the advertising estate/land agent accepts responsibility for any inaccuracy.
1. Source of information
- Agent-supplied content: Core description, asking price, tenure, measurements, photographs and planning history are uploaded by the appointed agent, who remains solely responsible for their accuracy.
- Automated tags & categorisation: Property type, land-use class, acreage bands and similar labels may be applied by machine-learning models. They are intended as a helpful guide only and may not reflect the property's legal status or permitted use.
- Third-party & enriched data layers: Maps, boundary outlines, planning designations, soil reports, broadband coverage and other environmental or location-based insights are licensed from external suppliers. Such data are supplied “as is", may be incomplete or out of date and are subject to change without notice.
2. Verification required
Prospective purchasers must verify critical matters, including but not limited to planning permission, title boundaries, public rights of way, environmental constraints, acreage, services, access and VAT status, through their own inspections, specialist surveys, legal advisers and the selling agent before relying on the information or entering into any contract.
3. No warranty or liability
LandSale gives no warranty, express or implied, as to the accuracy, completeness or fitness for any particular purpose of the information displayed. LandSale shall not be liable for any loss, damage, cost or expense arising directly or indirectly from any use of or reliance on such information, save where liability may not be excluded by law.
4. Updates & feedback
If you believe any detail on this listing is inaccurate, please let us know. We will investigate and, where appropriate, update the listing or notify the agent.
© LandSale | Version 1.2 - January 2026
Listing agent
Addisons Chartered Surveyors, Barnard Castle
13 Galgate, Barnard Castle, DL12 8EQ
Enquire about this property
Contact Addisons Chartered Surveyors, Barnard Castle
13 Galgate, Barnard Castle, DL12 8EQ
View agent profile