Rookery Road/ Bayliss Avenue, Lanesfield
- Land size
- 1.31 acres
Key Features
- POTENTIAL DEVELOPMENT LAND
- APPROX 1.31 ACRES (0.53 HECTARES)
- INCLUDES THREE BEDROOM DETACHED FAMILY HOME WITH GARAGE, DRIVEWAY, FRONT & REAR GARDENS
- PREVIOUSLY APPROVED PLANNING FOR 22 DWELLINGS (NOW LAPSED)
- MODERN METHOD OF AUCTION
Description
Prime Residential Development Opportunity – Rookery Road, Wolverhampton
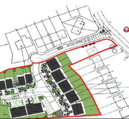
An exceptional opportunity to acquire a freehold development site extending to approximately 1.31 acres (0.53 hectares), located in a popular and well-connected area of Wolverhampton.
The site had planning permission (NO LAPSED) for the construction of 22 dwellings, in addition to an existing THREE BEDROOM DETACHED house (Rookery Road).
Location
Situated off Rookery Road and Bayliss Avenue.
Excellent access to Birmingham New Road (A4123).
Approx. 2.5 miles from Wolverhampton City Centre and 1.5 miles from Bilston Town Centre.
Well-served by public transport:Mainline stations: Coseley & Wolverhampton.
Metro stops: Bilston Central, Loxdale, Bradley Lane (within 2 miles).
Motorway access via M6 J10 and M5 J2 (approx. 4 miles).
Description
Comprises existing dwelling and curtilage plus extensive paddocks to the rear.
Broadly rectangular site offering a well-balanced layout for residential development.
Previously Approved Planning Permission (NOW LAPSED)
Previous permissions granted by Wolverhampton City Council:Ref: 17/01495/FUL & 19/00106/FUL.
Approved scheme included:10 semi-detached houses
4 detached houses
8 apartments
Includes access improvements and landscaping works.
Full documentation available on request.
Tenure
Freehold with vacant possession upon completion.
SEDGLEY BRANCH
Auctioneer Comments This property is for sale by the Modern Method of Auction. Should you view, offer or bid on the property, your information will be shared with the Auctioneer, iamsold Limited This method of auction requires both parties to complete the transaction within 56 days of the draft contract for sale being received by the buyers solicitor (for standard Grade 1 properties). This additional time allows buyers to proceed with mortgage finance (subject to lending criteria, affordability and survey). The buyer is required to sign a reservation agreement and make payment of a non-refundable Reservation Fee. This being 4.8% of the purchase price including VAT, subject to a minimum of £6,000.00 including VAT. The Reservation Fee is paid in addition to purchase price and will be considered as part of the chargeable consideration for the property in the calculation for stamp duty liability. Buyers will be required to go through an identification verification process with iamsold and provide proof of how the purchase would be funded. This property has a Buyer Information Pack which is a collection of documents in relation to the property. The documents may not tell you everything you need to know about the property, so you are required to complete your own due diligence before bidding. A sample copy of the Reservation Agreement and terms and conditions are also contained within this pack. The buyer will also make payment of £300 including VAT towards the preparation cost of the pack, where it has been provided by iamsold. The property is subject to an undisclosed Reserve Price with both the Reserve Price and Starting Bid being subject to change. Referral Arrangements The Partner Agent and Auctioneer may recommend the services of third parties to you. Whilst these services are recommended as it is believed they will be of benefit; you are under no obligation to use any of these services and you should always consider your options before services are accepted. Where services are accepted the Auctioneer or Partner Agent may receive payment for the recommendation and you will be informed of any referral arrangement and payment prior to any services being taken by you.
Property details
- Tenure
- Freehold
- Council Tax Band
- Ask Agent
- Date Posted
- 2026-01-29
Energy Performance Certificate
Energy Efficiency Rating
Based on UK Energy Performance Certificate standards (EU Directive 2002/91/EC)
Utilities & Restrictions
Utilities
- Electricity
- Ask Agent
- Water
- Ask Agent
- Heating
- Ask Agent
- Broadband
- Ask Agent
- Sewerage
- Ask Agent
Rights & Restrictions
- Public Rights of Way
- Ask Agent
- Private Rights of Way
- Ask Agent
- Listed Property
- Ask Agent
- Restrictions
- Ask Agent
Property Features
- Accessibility
- Ask Agent
- Parking
- Parking Available
- Garden
- Garden
Market Value Analysis
Based on properties with houses in West Midlands (1+ acres).
Important notice: Information, maps and tags on this page are supplied by the advertising agent or generated automatically. LandSale has not verified them. Relying on these details is at your own risk, always carry out independent checks before committing to a purchase.
LandSale full disclaimer
Marketing information only - not formal particulars. The details on this website are provided for general guidance and do not constitute an offer or contract. Neither LandSale nor the advertising estate/land agent accepts responsibility for any inaccuracy.
1. Source of information
- Agent-supplied content: Core description, asking price, tenure, measurements, photographs and planning history are uploaded by the appointed agent, who remains solely responsible for their accuracy.
- Automated tags & categorisation: Property type, land-use class, acreage bands and similar labels may be applied by machine-learning models. They are intended as a helpful guide only and may not reflect the property's legal status or permitted use.
- Third-party & enriched data layers: Maps, boundary outlines, planning designations, soil reports, broadband coverage and other environmental or location-based insights are licensed from external suppliers. Such data are supplied “as is", may be incomplete or out of date and are subject to change without notice.
2. Verification required
Prospective purchasers must verify critical matters, including but not limited to planning permission, title boundaries, public rights of way, environmental constraints, acreage, services, access and VAT status, through their own inspections, specialist surveys, legal advisers and the selling agent before relying on the information or entering into any contract.
3. No warranty or liability
LandSale gives no warranty, express or implied, as to the accuracy, completeness or fitness for any particular purpose of the information displayed. LandSale shall not be liable for any loss, damage, cost or expense arising directly or indirectly from any use of or reliance on such information, save where liability may not be excluded by law.
4. Updates & feedback
If you believe any detail on this listing is inaccurate, please let us know. We will investigate and, where appropriate, update the listing or notify the agent.
© LandSale | Version 1.2 - January 2026
Listing agent
Taylors Estate Agents, Sedgley
2a Dudley Street, Sedgley, Dudley, DY3 1SB
Enquire about this property
Contact Taylors Estate Agents, Sedgley
2a Dudley Street, Sedgley, Dudley, DY3 1SB
View agent profile