Grundy Fold, Horwich, Bolton
- Land size
- 0.8 acres
Key Features
- Large Plot with Planning
- Executive Detached property with c4780 sqft of Accommodation
- Planned For 5 Bedrooms and 5 Bathrooms
- 4 Reception Rooms
- Approx Build Cost will be Around £900,000 - 1m
- Appointment to View Essential
- Approx 5 Acres off Further Land May be Available by Separate Negotiation.
Description
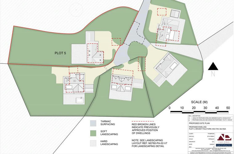
If you have been searching in vain for your ultimate forever home that offers spectacular views luxury accommodation, extensive parking, significant plot with beautiful private landscaped grounds, all finished to the most exacting of standards throughout? then this may be the one for you. This is a fantastic opportunity for a purchaser to have a stunning and bespoke luxury home built for them in one of Bolton's most prestigious developments. Standing within its own private grounds within a spectacular development of only four other homes, this individually designed new build detached home is available to buy as a plot and potentially for the developer to build your home for you to your own specifications. This beautiful property is planned for a 5 bedroom 5 bathroom home that will be built to the highest of standards But the plans are fluid and can be redesigned internally to accommodate up to 7 bedrooms. The property will be built using ultra-modern construction techniques this will be a highly energy efficient home with a low carbon footprint. The fabulous, well-proportioned accommodation provides around 4780 square feet of living space that is ideally suited to modern lifestyles, situated within a large private plot of approximately 0.8 acres The location is ideally positioned on the edge of open countryside yet is within easy access to a host of amenities and well placed for major transport links offering easy access into Manchester and across the North West. This is a unique opportunity to purchase a new build home that you will be involved in the build process from the start to finish and is unlikely to be on the market for very long. As such, an early enquiry is strongly advised to avoid disappointment.
Property details
- Tenure
- Freehold
- Council Tax Band
- TBC
- Date Posted
- 2026-01-29
Utilities & Restrictions
Utilities
- Electricity
- Ask Agent
- Water
- Ask Agent
- Heating
- Ask Agent
- Broadband
- Ask Agent
- Sewerage
- Ask Agent
Rights & Restrictions
- Public Rights of Way
- Ask Agent
- Private Rights of Way
- Ask Agent
- Listed Property
- Ask Agent
- Restrictions
- Ask Agent
Property Features
- Accessibility
- Ask Agent
- Parking
- Parking Available
- Garden
- Ask Agent
Important notice: Information, maps and tags on this page are supplied by the advertising agent or generated automatically. LandSale has not verified them. Relying on these details is at your own risk, always carry out independent checks before committing to a purchase.
LandSale full disclaimer
Marketing information only - not formal particulars. The details on this website are provided for general guidance and do not constitute an offer or contract. Neither LandSale nor the advertising estate/land agent accepts responsibility for any inaccuracy.
1. Source of information
- Agent-supplied content: Core description, asking price, tenure, measurements, photographs and planning history are uploaded by the appointed agent, who remains solely responsible for their accuracy.
- Automated tags & categorisation: Property type, land-use class, acreage bands and similar labels may be applied by machine-learning models. They are intended as a helpful guide only and may not reflect the property's legal status or permitted use.
- Third-party & enriched data layers: Maps, boundary outlines, planning designations, soil reports, broadband coverage and other environmental or location-based insights are licensed from external suppliers. Such data are supplied “as is", may be incomplete or out of date and are subject to change without notice.
2. Verification required
Prospective purchasers must verify critical matters, including but not limited to planning permission, title boundaries, public rights of way, environmental constraints, acreage, services, access and VAT status, through their own inspections, specialist surveys, legal advisers and the selling agent before relying on the information or entering into any contract.
3. No warranty or liability
LandSale gives no warranty, express or implied, as to the accuracy, completeness or fitness for any particular purpose of the information displayed. LandSale shall not be liable for any loss, damage, cost or expense arising directly or indirectly from any use of or reliance on such information, save where liability may not be excluded by law.
4. Updates & feedback
If you believe any detail on this listing is inaccurate, please let us know. We will investigate and, where appropriate, update the listing or notify the agent.
© LandSale | Version 1.2 - January 2026
Listing agent
Redman Casey, Horwich
69 Winter Hey Lane, Horwich, Bolton, BL6 7NT
Enquire about this property
Contact Redman Casey, Horwich
69 Winter Hey Lane, Horwich, Bolton, BL6 7NT
View agent profile