Land Rear Of John Street South, Meadowfield, DH7
- Land size
- 0.79 acres
Description
WHOLE SITE FOR SALE OR INDUVIDUAL PLOTS
Bradley Hall are delighted to offer an opportunity to purchase f 6 exclusive development plots that all benefit from being fully serviced.
LOCATION & DESCRIPTION
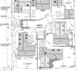
The subject site is located to the south east of John Street South, Meadowfield, Durham. The surrounding land uses comprise a mixture of residential properties and a church to the north. To the north east, east and south east lies commercial uses including offices.
The site equates to an area of approximately 0.32 hectares (0.79 acres) and is generally level with no significant slopes or retaining structures.
Any purchaser would be required to apply to the planning authority for a variation to the existing planning consent in order to obtain the relevant permission for their dream home. Our in house planning team would be more than happy to assist with this process.
PLOT SIZES
The below shows the approximate sizes of each plot and Gross Internal Area of the houses:
Plot Plot Size Gross Internal Area
1 415 m2 (4,467 sq ft) (2,594 sq ft)
2 392 m2 (4,219 sq ft) (2,067 sq ft)
3 523 m2 (5,630 sq ft) (2,885 sq ft)
4 400 m2 (4,306 sq ft) (2,454 sq ft)
5 520 m2 (5,597 sq ft) (3,014 sq ft)
6 455 m2 (4,898 sq ft) (2,691 sq ft)
PLANNING & DEVELOPMENT OPPORTUNITIES
The site benefits from planning permission for the erection of 6 residential dwellings with associated appearance and landscaping.
Full planning information can be found using the reference: DM/17/02778/RM via Durham County Council planning portal. Further information is available on request.
TENURE
The site is sold freehold with vacant possession.
TERMS
We are seeking the following for each plot if sold induvidually:
Plot 1 - £100,000
Plot 2 - £145,000
Plot 3 - £150,000
Plot 4 - £145,000
Plot 5 - £145,000
Plot 6 - £100,000
All offers are to be made to Bradley Hall exclusive of VAT and, where silent, offers will be deemed net of VAT. Each party is to bear their own legal costs involved in the transaction.
VIEWING & FURTHER INFORMATION
For all enquiries and viewing arrangements please contact our Durham Office
Property details
- Tenure
- Ask Agent
- Council Tax Band
- TBC
- Date Posted
- 2026-01-29
Utilities & Restrictions
Utilities
- Electricity
- Ask Agent
- Water
- Ask Agent
- Heating
- Ask Agent
- Broadband
- Ask Agent
- Sewerage
- Ask Agent
Rights & Restrictions
- Public Rights of Way
- Ask Agent
- Private Rights of Way
- Ask Agent
- Listed Property
- Ask Agent
- Restrictions
- Ask Agent
Property Features
- Accessibility
- Ask Agent
- Parking
- Ask Agent
- Garden
- Ask Agent
Important notice: Information, maps and tags on this page are supplied by the advertising agent or generated automatically. LandSale has not verified them. Relying on these details is at your own risk, always carry out independent checks before committing to a purchase.
LandSale full disclaimer
Marketing information only - not formal particulars. The details on this website are provided for general guidance and do not constitute an offer or contract. Neither LandSale nor the advertising estate/land agent accepts responsibility for any inaccuracy.
1. Source of information
- Agent-supplied content: Core description, asking price, tenure, measurements, photographs and planning history are uploaded by the appointed agent, who remains solely responsible for their accuracy.
- Automated tags & categorisation: Property type, land-use class, acreage bands and similar labels may be applied by machine-learning models. They are intended as a helpful guide only and may not reflect the property's legal status or permitted use.
- Third-party & enriched data layers: Maps, boundary outlines, planning designations, soil reports, broadband coverage and other environmental or location-based insights are licensed from external suppliers. Such data are supplied “as is", may be incomplete or out of date and are subject to change without notice.
2. Verification required
Prospective purchasers must verify critical matters, including but not limited to planning permission, title boundaries, public rights of way, environmental constraints, acreage, services, access and VAT status, through their own inspections, specialist surveys, legal advisers and the selling agent before relying on the information or entering into any contract.
3. No warranty or liability
LandSale gives no warranty, express or implied, as to the accuracy, completeness or fitness for any particular purpose of the information displayed. LandSale shall not be liable for any loss, damage, cost or expense arising directly or indirectly from any use of or reliance on such information, save where liability may not be excluded by law.
4. Updates & feedback
If you believe any detail on this listing is inaccurate, please let us know. We will investigate and, where appropriate, update the listing or notify the agent.
© LandSale | Version 1.2 - January 2026
Listing agent
Bradley Hall, Durham
26-27 New Elvet, Durham, DH1 3AL
Enquire about this property
Contact Bradley Hall, Durham
26-27 New Elvet, Durham, DH1 3AL
View agent profile