Tattershall Road, Boston, Lincolnshire, PE21 9LF
- Land size
- 0.2 acres
Key Features
- Residential Development Land For Sale with Full Planning Permission
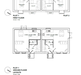
- Planning Permission Granted for a Pair of Semi-Detached Dwellings with Garage and Parking
- Planning Also Granted for Detached Four Bedroomed House
- Extending to 0.2 acres with 5m Road Frontage
Description
Location...
The fast growing South Lincolnshire market town of Boston is located approximately 115 miles to the north of London, 35 miles to the south-east of Lincoln, 50 miles to the east of Nottingham and 40 miles to the west of King's Lynn.
The town is served by the main road networks of the A16, A17 and A52 trunk roads. It has a mainline connection to the East Coast Mainline, a large port, hospital, retail offering, good sporting facilities and a number of well-regarded schools.
Tattershall Road is located approximately 1 mile to the north of the town centre and is a largely residential area.
Site and location plans are included with these particulars.
Description...
The site comprises road frontage land located to the east of Tattershall Road opposite residential housing.
The land has dual planning permission B/24/0072 for a pair of two bedroomed semi-detached houses and garage.
The site also has planning permission B/22/0050 for a detached two storey dwelling with garage.
Full copies of the planning permission and plans are available on request.
Viewing...
Interested parties are welcome to view the land from the roadside at their convenience. Should they wish to access the land, this must be done via appointment with the agent.
All visitors are required to wear appropriate personal protective equipment (PPE). Poyntons Consultancy accepts no liability for any injury, damage, or loss sustained while accessing or viewing the site.
Property details
- Tenure
- Ask Agent
- Council Tax Band
- Ask Agent
- Date Posted
- 2026-01-29
Utilities & Restrictions
Utilities
- Electricity
- Ask Agent
- Water
- Ask Agent
- Heating
- Ask Agent
- Broadband
- Ask Agent
- Sewerage
- Ask Agent
Rights & Restrictions
- Public Rights of Way
- Ask Agent
- Private Rights of Way
- Ask Agent
- Listed Property
- Ask Agent
- Restrictions
- Ask Agent
Property Features
- Accessibility
- Ask Agent
- Parking
- Parking Available
- Garden
- Ask Agent
Important notice: Information, maps and tags on this page are supplied by the advertising agent or generated automatically. LandSale has not verified them. Relying on these details is at your own risk, always carry out independent checks before committing to a purchase.
LandSale full disclaimer
Marketing information only - not formal particulars. The details on this website are provided for general guidance and do not constitute an offer or contract. Neither LandSale nor the advertising estate/land agent accepts responsibility for any inaccuracy.
1. Source of information
- Agent-supplied content: Core description, asking price, tenure, measurements, photographs and planning history are uploaded by the appointed agent, who remains solely responsible for their accuracy.
- Automated tags & categorisation: Property type, land-use class, acreage bands and similar labels may be applied by machine-learning models. They are intended as a helpful guide only and may not reflect the property's legal status or permitted use.
- Third-party & enriched data layers: Maps, boundary outlines, planning designations, soil reports, broadband coverage and other environmental or location-based insights are licensed from external suppliers. Such data are supplied “as is", may be incomplete or out of date and are subject to change without notice.
2. Verification required
Prospective purchasers must verify critical matters, including but not limited to planning permission, title boundaries, public rights of way, environmental constraints, acreage, services, access and VAT status, through their own inspections, specialist surveys, legal advisers and the selling agent before relying on the information or entering into any contract.
3. No warranty or liability
LandSale gives no warranty, express or implied, as to the accuracy, completeness or fitness for any particular purpose of the information displayed. LandSale shall not be liable for any loss, damage, cost or expense arising directly or indirectly from any use of or reliance on such information, save where liability may not be excluded by law.
4. Updates & feedback
If you believe any detail on this listing is inaccurate, please let us know. We will investigate and, where appropriate, update the listing or notify the agent.
© LandSale | Version 1.2 - January 2026
Listing agent
Poyntons Consultancy Commercial, Lincolnshire Office
Poyntons Consultancy Ltd - Commercial, 24,26 and 28, South Street, Boston, Lincolnshire, PE21 6HT
Enquire about this property
Contact Poyntons Consultancy Commercial, Lincolnshire Office
Poyntons Consultancy Ltd - Commercial, 24,26 and 28, South Street, Boston, Lincolnshire, PE21 6HT
View agent profile