Plot 2, Land To North East Of 3, Old Aberdeen Road, Fordoun, AB30
- Land size
- 0.35 acres
- Bedrooms
- 4
- Bathrooms
- 2
Description
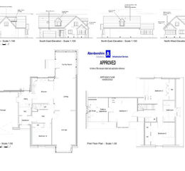
Plot 1 North East of 3 Old Aberdeen Road presents an exciting opportunity to acquire a development site, offered for sale with Full Planning Permission for a 4 BED DETACHED TWO STOREY DWELLING. The total development site extends to approximately 1353sqm/0.35acres and is perfectly positioned on the outskirts of Fordoun village, with excellent transport links to Aberdeen in the North and Dundee and beyond to the South. The finished property will offer an exceptionally spacious and versatile home, showcasing the best of open-plan family living, with the benefit of a ground floor bedroom and WC, together with 3 double bedrooms, ensuite and family bathroom to the first floor. An integral double garage will create ample space for secure parking and storage, with additional parking on the driveway and a generous plot for the discerning buyer to landscape their preferred garden. Full details and all relevant planning documentation can be found on the Aberdeenshire Council website by using planning reference – APP/2021/1436.
Property details
- Tenure
- Ask Agent
- Council Tax Band
- TBC
- Date Posted
- 2026-01-29
Utilities & Restrictions
Utilities
- Electricity
- Ask Agent
- Water
- Ask Agent
- Heating
- Ask Agent
- Broadband
- Ask Agent
- Sewerage
- Ask Agent
Rights & Restrictions
- Public Rights of Way
- Ask Agent
- Private Rights of Way
- Ask Agent
- Listed Property
- Ask Agent
- Restrictions
- Ask Agent
Property Features
- Accessibility
- Ask Agent
- Parking
- Parking Available
- Garden
- Garden
Important notice: Information, maps and tags on this page are supplied by the advertising agent or generated automatically. LandSale has not verified them. Relying on these details is at your own risk, always carry out independent checks before committing to a purchase.
LandSale full disclaimer
Marketing information only - not formal particulars. The details on this website are provided for general guidance and do not constitute an offer or contract. Neither LandSale nor the advertising estate/land agent accepts responsibility for any inaccuracy.
1. Source of information
- Agent-supplied content: Core description, asking price, tenure, measurements, photographs and planning history are uploaded by the appointed agent, who remains solely responsible for their accuracy.
- Automated tags & categorisation: Property type, land-use class, acreage bands and similar labels may be applied by machine-learning models. They are intended as a helpful guide only and may not reflect the property's legal status or permitted use.
- Third-party & enriched data layers: Maps, boundary outlines, planning designations, soil reports, broadband coverage and other environmental or location-based insights are licensed from external suppliers. Such data are supplied “as is", may be incomplete or out of date and are subject to change without notice.
2. Verification required
Prospective purchasers must verify critical matters, including but not limited to planning permission, title boundaries, public rights of way, environmental constraints, acreage, services, access and VAT status, through their own inspections, specialist surveys, legal advisers and the selling agent before relying on the information or entering into any contract.
3. No warranty or liability
LandSale gives no warranty, express or implied, as to the accuracy, completeness or fitness for any particular purpose of the information displayed. LandSale shall not be liable for any loss, damage, cost or expense arising directly or indirectly from any use of or reliance on such information, save where liability may not be excluded by law.
4. Updates & feedback
If you believe any detail on this listing is inaccurate, please let us know. We will investigate and, where appropriate, update the listing or notify the agent.
© LandSale | Version 1.2 - January 2026
Listing agent
Aberdein Considine, Stonehaven
40 Allardice Street, Stonehaven, AB39 2BU
Enquire about this property
Contact Aberdein Considine, Stonehaven
40 Allardice Street, Stonehaven, AB39 2BU
View agent profile