Leaburn Drive, Hawick
- Land size
- 1.6 acres
Key Features
- LARGE BUILDING PLOT OF APPROX 1.6 ACRES
- ELEVATED LOCATION WITH STUNNING VIEWS OVER THE TOWN AND BEYOND
- FULL PLANNING PERMISSION FOR 4 BEDROOM DETACHED PROPERTY
- DESIGNATED GROUNDS IDEAL FOR PADDOCK OR EQUESTRIAN USE
- ALL MAINS SERVICES LOCATED NEARBY
- COUNTRYSIDE WALKS AND TRAILS CLOSE BY
- SHORT WALK TO THE TOWN CENTRE
Description
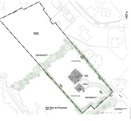
We are delighted to bring to market this large building plot of approximately 1.6 Acres, located in an elevated position at the top of Leaburn Drive in Hawick. The site benefits from stunning views over the town and surrounding countryside and is available for sale with full planning permission to construct a detached family home, comprising of 4 bedrooms, sitting room, open plan family kitchen/dining and sitting room with generous garden grounds and large paddock, ideal for a variety of uses including equestrian.
Location & Directions - Heading out from Hawick town centre along Weensland Road (A698), take the second right on to Leaburn Drive. Carry on all the way up the hill until the road ends. The plot sits straight ahead looking back over the town and Scottish Border hills.
Planning Information - Full planning information can be found on the SBC website ( Using Planning Reference Number
22/00943/FUL
Planning was approved February 2023.
Services - Mains water, drainage, gas and electricity is located nearby.
Property details
- Tenure
- Freehold
- Council Tax Band
- Ask Agent
- Date Posted
- 2026-01-29
Utilities & Restrictions
Utilities
- Electricity
- Ask Agent
- Water
- Ask Agent
- Heating
- Ask Agent
- Broadband
- Ask Agent
- Sewerage
- Ask Agent
Rights & Restrictions
- Public Rights of Way
- Ask Agent
- Private Rights of Way
- Ask Agent
- Listed Property
- Ask Agent
- Restrictions
- Ask Agent
Property Features
- Accessibility
- Ask Agent
- Parking
- Parking Available
- Garden
- Garden
Market Value Analysis
Based on properties with houses in Scotland (1+ acres).
Important notice: Information, maps and tags on this page are supplied by the advertising agent or generated automatically. LandSale has not verified them. Relying on these details is at your own risk, always carry out independent checks before committing to a purchase.
LandSale full disclaimer
Marketing information only - not formal particulars. The details on this website are provided for general guidance and do not constitute an offer or contract. Neither LandSale nor the advertising estate/land agent accepts responsibility for any inaccuracy.
1. Source of information
- Agent-supplied content: Core description, asking price, tenure, measurements, photographs and planning history are uploaded by the appointed agent, who remains solely responsible for their accuracy.
- Automated tags & categorisation: Property type, land-use class, acreage bands and similar labels may be applied by machine-learning models. They are intended as a helpful guide only and may not reflect the property's legal status or permitted use.
- Third-party & enriched data layers: Maps, boundary outlines, planning designations, soil reports, broadband coverage and other environmental or location-based insights are licensed from external suppliers. Such data are supplied “as is", may be incomplete or out of date and are subject to change without notice.
2. Verification required
Prospective purchasers must verify critical matters, including but not limited to planning permission, title boundaries, public rights of way, environmental constraints, acreage, services, access and VAT status, through their own inspections, specialist surveys, legal advisers and the selling agent before relying on the information or entering into any contract.
3. No warranty or liability
LandSale gives no warranty, express or implied, as to the accuracy, completeness or fitness for any particular purpose of the information displayed. LandSale shall not be liable for any loss, damage, cost or expense arising directly or indirectly from any use of or reliance on such information, save where liability may not be excluded by law.
4. Updates & feedback
If you believe any detail on this listing is inaccurate, please let us know. We will investigate and, where appropriate, update the listing or notify the agent.
© LandSale | Version 1.2 - January 2026
Listing agent
Bannerman Burke Properties, Hawick
28 High Street, Hawick, TD9 9EH
Enquire about this property
Contact Bannerman Burke Properties, Hawick
28 High Street, Hawick, TD9 9EH
View agent profile