Grove Avenue, Leysdown-On-Sea, Sheerness
- Bedrooms
- 2
- Bathrooms
- 1
Key Features
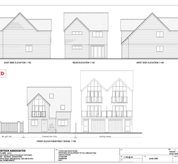
- Full Planning Permission Granted
- New Build 2 Bed x 2 Apartments
- Uninterrupted Views Of Sea And Beach
- Open Plan Lounge/Diner/Kitchen
- Close To All Local Amenities
- Great Development Opportunity
- Good Public Transport
- Calling All Investors and Developers
- One Not To Be Missed
Description
£110,000 Guide Price
Full Planning Permission Granted on Grove Avenue in the charming coastal village of Leysdown-On-Sea, Sheerness, this exceptional building plot presents a remarkable opportunity for those looking to invest in a new development. With full planning permission granted the site is primed for the construction of two modern apartments, each featuring two well-appointed bedrooms and a contemporary bathroom. Drainage has already been put in.
The design of the apartments embraces an open-plan layout, seamlessly integrating the lounge, diner, and kitchen areas. This thoughtful arrangement not only maximises space but also creates a welcoming environment perfect for both relaxation and entertaining.
One of the standout features of this property is the uninterrupted views of the sea and beach, offering a picturesque backdrop that enhances the appeal of coastal living. Imagine waking up to the soothing sounds of the waves and enjoying stunning sunsets from the comfort of your own home.
This plot represents a fantastic development opportunity for builders and investors alike, allowing for the creation of desirable living spaces in a sought-after location. With the potential for lucrative returns, this is an ideal project for those looking to make their mark in the property market.
In summary, this new build site on Grove Avenue is not just a piece of land; it is a canvas for your vision, set against the beautiful backdrop of Leysdown-On-Sea. Don’t miss the chance to turn this opportunity into a reality.
Property details
- Tenure
- Freehold
- Council Tax Band
- TBC
- Date Posted
- 2026-01-29
Utilities & Restrictions
Utilities
- Electricity
- Ask Agent
- Water
- Ask Agent
- Heating
- Ask Agent
- Broadband
- Ask Agent
- Sewerage
- Ask Agent
Rights & Restrictions
- Public Rights of Way
- Ask Agent
- Private Rights of Way
- Ask Agent
- Listed Property
- Ask Agent
- Restrictions
- Ask Agent
Property Features
- Accessibility
- Ask Agent
- Parking
- Ask Agent
- Garden
- Ask Agent
Important notice: Information, maps and tags on this page are supplied by the advertising agent or generated automatically. LandSale has not verified them. Relying on these details is at your own risk, always carry out independent checks before committing to a purchase.
LandSale full disclaimer
Marketing information only - not formal particulars. The details on this website are provided for general guidance and do not constitute an offer or contract. Neither LandSale nor the advertising estate/land agent accepts responsibility for any inaccuracy.
1. Source of information
- Agent-supplied content: Core description, asking price, tenure, measurements, photographs and planning history are uploaded by the appointed agent, who remains solely responsible for their accuracy.
- Automated tags & categorisation: Property type, land-use class, acreage bands and similar labels may be applied by machine-learning models. They are intended as a helpful guide only and may not reflect the property's legal status or permitted use.
- Third-party & enriched data layers: Maps, boundary outlines, planning designations, soil reports, broadband coverage and other environmental or location-based insights are licensed from external suppliers. Such data are supplied “as is", may be incomplete or out of date and are subject to change without notice.
2. Verification required
Prospective purchasers must verify critical matters, including but not limited to planning permission, title boundaries, public rights of way, environmental constraints, acreage, services, access and VAT status, through their own inspections, specialist surveys, legal advisers and the selling agent before relying on the information or entering into any contract.
3. No warranty or liability
LandSale gives no warranty, express or implied, as to the accuracy, completeness or fitness for any particular purpose of the information displayed. LandSale shall not be liable for any loss, damage, cost or expense arising directly or indirectly from any use of or reliance on such information, save where liability may not be excluded by law.
4. Updates & feedback
If you believe any detail on this listing is inaccurate, please let us know. We will investigate and, where appropriate, update the listing or notify the agent.
© LandSale | Version 1.2 - January 2026
Listing agent
James Perry Estate Agents, Isle of Sheppey
3 Broadway, Sheerness, ME12 1AB
Enquire about this property
Contact James Perry Estate Agents, Isle of Sheppey
3 Broadway, Sheerness, ME12 1AB
View agent profile