Old Nazeing Road, Broxbourne, EN10
Key Features
- Residential Development Opportunity
- PLANNING PERMISSION GRANTED
- PP for 2 x luxury 4-Bedroom Houses
- Generous Plot
- Prestigious neighbourhood
- Walking distance to Broxbourne station providing fast and frequent services into London
- Close to highly-regarded state, grammar and independent schools
- Easy access to A10 / M25
- Viewings strictly by appointment only
Description
Woodhouse are pleased to offer this substantial plot set in a coveted neighbourhood of Broxbourne.
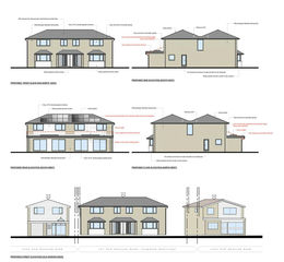
Planning Permission has been granted for the demolition of the existing bungalow, to be replaced by 2 x 4-Bedroom luxury family homes. More details can be found on the Epping Forest Planning Portal using reference EPF/0752/25 - and contact us for further information and to arrange a site visit.
Broxbourne is ideally located for commuting professionals & families that prefer living in the Home Counties yet so close to the city. You are walking distance to Broxbourne Station with its fast and frequent service into Liverpool St / Tottenham Hale / Stratford. For road links the A10 and M25 are a very short drive away. There is the benefit of being in close proximity to a selection of highly-regarded state, grammar and private schools.
Contact Woodhouse today to discuss further the potential and opportunity this site offers.
SALES DISCLAIMER
Services, fixtures and fittings haven’t been tested.
All measurements are approximate.
Your solicitor will confirm tenure and any other legal information.
As required by Money Laundering Regulations, should your offer be accepted, we will require proof of identity & funds.
Property details
- Tenure
- Freehold
- Council Tax Band
- E
- Date Posted
- 2026-01-29
Utilities & Restrictions
Utilities
- Electricity
- Mains
- Water
- Mains
- Heating
- Gas Heating, Central Heating
- Broadband
- Full Fibre (FTTP)
- Sewerage
- Mains
Rights & Restrictions
- Public Rights of Way
- Ask Agent
- Private Rights of Way
- Ask Agent
- Listed Property
- Ask Agent
- Restrictions
- Ask Agent
Property Features
- Accessibility
- Ask Agent
- Parking
- Ask Agent
- Garden
- Ask Agent
Important notice: Information, maps and tags on this page are supplied by the advertising agent or generated automatically. LandSale has not verified them. Relying on these details is at your own risk, always carry out independent checks before committing to a purchase.
LandSale full disclaimer
Marketing information only - not formal particulars. The details on this website are provided for general guidance and do not constitute an offer or contract. Neither LandSale nor the advertising estate/land agent accepts responsibility for any inaccuracy.
1. Source of information
- Agent-supplied content: Core description, asking price, tenure, measurements, photographs and planning history are uploaded by the appointed agent, who remains solely responsible for their accuracy.
- Automated tags & categorisation: Property type, land-use class, acreage bands and similar labels may be applied by machine-learning models. They are intended as a helpful guide only and may not reflect the property's legal status or permitted use.
- Third-party & enriched data layers: Maps, boundary outlines, planning designations, soil reports, broadband coverage and other environmental or location-based insights are licensed from external suppliers. Such data are supplied “as is", may be incomplete or out of date and are subject to change without notice.
2. Verification required
Prospective purchasers must verify critical matters, including but not limited to planning permission, title boundaries, public rights of way, environmental constraints, acreage, services, access and VAT status, through their own inspections, specialist surveys, legal advisers and the selling agent before relying on the information or entering into any contract.
3. No warranty or liability
LandSale gives no warranty, express or implied, as to the accuracy, completeness or fitness for any particular purpose of the information displayed. LandSale shall not be liable for any loss, damage, cost or expense arising directly or indirectly from any use of or reliance on such information, save where liability may not be excluded by law.
4. Updates & feedback
If you believe any detail on this listing is inaccurate, please let us know. We will investigate and, where appropriate, update the listing or notify the agent.
© LandSale | Version 1.2 - January 2026
Listing agent
Woodhouse, Cheshunt
7 Clayton Parade, Turners Hill, Cheshunt, EN8 8NQ
Enquire about this property
Contact Woodhouse, Cheshunt
7 Clayton Parade, Turners Hill, Cheshunt, EN8 8NQ
View agent profile