Windmill Hill, Hailsham, BN27
Description
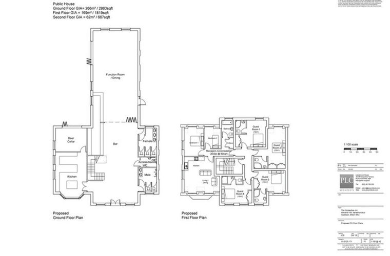
Comprehensive Planning Permission: The site comes with approved plans for a new-build public house, including manager's accommodation and letting rooms spread across three floors.
Nestled in the heart of Windmill Hill, a charming village in Wealden, East Sussex, the Horseshoe Inn presents an unparalleled opportunity for investors and entrepreneurs alike. This leisure/retail property, spanning an impressive 5,349 sq ft, is primed for transformation into a bustling public house, complete with manager's accommodation and additional letting rooms.
Key Features:
Strategic Location: Situated just 9 miles south of Eastbourne and 48 miles north of London, the property offers easy access to major cities while retaining its village charm.
Comprehensive Planning Permission: The site comes with approved plans for a new-build public house, including manager's accommodation and letting rooms spread across three floors.
Versatile Space: The ground floor is designed for the public house (2,863 sq ft), the first floor for manager's accommodation and letting rooms (1,819 sq ft), and the second floor exclusively for additional letting rooms (667 sq ft).
Ample Parking: With 24 dedicated parking spaces, the property ensures convenience for both staff and patrons.
Property details
- Tenure
- Freehold
- Council Tax Band
- Ask Agent
- Date Posted
- 2026-01-29
Utilities & Restrictions
Utilities
- Electricity
- Ask Agent
- Water
- Ask Agent
- Heating
- Ask Agent
- Broadband
- Ask Agent
- Sewerage
- Ask Agent
Rights & Restrictions
- Public Rights of Way
- Ask Agent
- Private Rights of Way
- Ask Agent
- Listed Property
- Ask Agent
- Restrictions
- Ask Agent
Property Features
- Accessibility
- Ask Agent
- Parking
- Parking Available
- Garden
- Ask Agent
Important notice: Information, maps and tags on this page are supplied by the advertising agent or generated automatically. LandSale has not verified them. Relying on these details is at your own risk, always carry out independent checks before committing to a purchase.
LandSale full disclaimer
Marketing information only - not formal particulars. The details on this website are provided for general guidance and do not constitute an offer or contract. Neither LandSale nor the advertising estate/land agent accepts responsibility for any inaccuracy.
1. Source of information
- Agent-supplied content: Core description, asking price, tenure, measurements, photographs and planning history are uploaded by the appointed agent, who remains solely responsible for their accuracy.
- Automated tags & categorisation: Property type, land-use class, acreage bands and similar labels may be applied by machine-learning models. They are intended as a helpful guide only and may not reflect the property's legal status or permitted use.
- Third-party & enriched data layers: Maps, boundary outlines, planning designations, soil reports, broadband coverage and other environmental or location-based insights are licensed from external suppliers. Such data are supplied “as is", may be incomplete or out of date and are subject to change without notice.
2. Verification required
Prospective purchasers must verify critical matters, including but not limited to planning permission, title boundaries, public rights of way, environmental constraints, acreage, services, access and VAT status, through their own inspections, specialist surveys, legal advisers and the selling agent before relying on the information or entering into any contract.
3. No warranty or liability
LandSale gives no warranty, express or implied, as to the accuracy, completeness or fitness for any particular purpose of the information displayed. LandSale shall not be liable for any loss, damage, cost or expense arising directly or indirectly from any use of or reliance on such information, save where liability may not be excluded by law.
4. Updates & feedback
If you believe any detail on this listing is inaccurate, please let us know. We will investigate and, where appropriate, update the listing or notify the agent.
© LandSale | Version 1.2 - January 2026
Listing agent
Ashton Stripp, Battle
33 High Street, Battle, TN33 0EA
Enquire about this property
Contact Ashton Stripp, Battle
33 High Street, Battle, TN33 0EA
View agent profile