Lower Road, Westerfield, Ipswich, Suffolk, IP6
- Bedrooms
- 2
- Bathrooms
- 2
Key Features
- Rarely avaiable
- Backing onto a country park
- Located on a private track
- Planning ref DC/24/1060/FUL
- Parking for two cars
- Open plan kitchen/dining/living space
- En-suite to the main bedroom
- Separate shower room & cloakroom
- Popular village location
Description
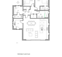
A unique opportunity to acquire a building plot with full planning consent which allows for the demolition of the existing structure and the creation of a new barn-style detached bungalow.
The proposed plans will consist of two double bedrooms, a contemporary open-plan kitchen/dining/sitting space, bathroom, en-suite and a utility room.
Westerfield is located to the north of Ipswich with good access to Ipswich and Westerfield railway stations. The property is set in a secluded position backing onto a country park and enjoying views over neighbouring equestrian facilities.
There is a provision for two parking spaces with a generous size plot on a private track in the sought-after village of Westerfield.
Details of the planning consent can be found on East Suffolk County website under planning application number DC/24/1060/FUL.
Directions
Using a Sat Nav with the postcode IP6 9AR and upon turning into Lower Road, from Westerfield Road, the plot can be found on the left hand side, sharing the entrance with Boradacres.
Property details
- Tenure
- Freehold
- Council Tax Band
- Ask Agent
- Date Posted
- 2026-01-29
Utilities & Restrictions
Utilities
- Electricity
- Ask Agent
- Water
- Ask Agent
- Heating
- Ask Agent
- Broadband
- Ask Agent
- Sewerage
- Ask Agent
Rights & Restrictions
- Public Rights of Way
- Ask Agent
- Private Rights of Way
- Ask Agent
- Listed Property
- Ask Agent
- Restrictions
- Ask Agent
Property Features
- Accessibility
- Ask Agent
- Parking
- Parking Available
- Garden
- Ask Agent
Important notice: Information, maps and tags on this page are supplied by the advertising agent or generated automatically. LandSale has not verified them. Relying on these details is at your own risk, always carry out independent checks before committing to a purchase.
LandSale full disclaimer
Marketing information only - not formal particulars. The details on this website are provided for general guidance and do not constitute an offer or contract. Neither LandSale nor the advertising estate/land agent accepts responsibility for any inaccuracy.
1. Source of information
- Agent-supplied content: Core description, asking price, tenure, measurements, photographs and planning history are uploaded by the appointed agent, who remains solely responsible for their accuracy.
- Automated tags & categorisation: Property type, land-use class, acreage bands and similar labels may be applied by machine-learning models. They are intended as a helpful guide only and may not reflect the property's legal status or permitted use.
- Third-party & enriched data layers: Maps, boundary outlines, planning designations, soil reports, broadband coverage and other environmental or location-based insights are licensed from external suppliers. Such data are supplied “as is", may be incomplete or out of date and are subject to change without notice.
2. Verification required
Prospective purchasers must verify critical matters, including but not limited to planning permission, title boundaries, public rights of way, environmental constraints, acreage, services, access and VAT status, through their own inspections, specialist surveys, legal advisers and the selling agent before relying on the information or entering into any contract.
3. No warranty or liability
LandSale gives no warranty, express or implied, as to the accuracy, completeness or fitness for any particular purpose of the information displayed. LandSale shall not be liable for any loss, damage, cost or expense arising directly or indirectly from any use of or reliance on such information, save where liability may not be excluded by law.
4. Updates & feedback
If you believe any detail on this listing is inaccurate, please let us know. We will investigate and, where appropriate, update the listing or notify the agent.
© LandSale | Version 1.2 - January 2026
Listing agent
Fenn Wright, Ipswich
1 Buttermarket, Ipswich, IP1 1BA
Enquire about this property
Contact Fenn Wright, Ipswich
1 Buttermarket, Ipswich, IP1 1BA
View agent profile