Fairview Chase, Stanford-le-Hope
Key Features
- A fantastic opportunity to acquire this plot of land with two separate planning applications granted
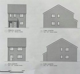
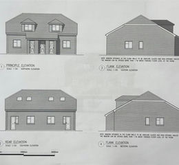
- Planning permission granted for block of three one-bedroom apartments and block of two one-bedroom apartments
- Total of five one-bedroom apartments
- Close proximity to Stanford-le-Hope train station and town centre
- Allocated parking facilities
- Includes a potential ransom strip for future developments
- The design of two individual blocks allows work to be completed on one block to raise and free up capital for the development of the other
Description
*GUIDE PRICE £375,000 - £425,000*
Investor alert! Fairview Chase plot with planning for five one-bed apartments, parking, and potential ransom strip. Prime location near Stanford-le-Hope station—build, profit, repeat. Your development canvas awaits!
Nestled in the desirable area of Fairview Chase, Stanford-le-Hope, this exceptional plot of land presents a remarkable opportunity for both investors and developers. With planning permission already granted for two sets of apartments, this site is primed for development, allowing you to bring your vision to life.
The approved plans include a block of three one-bedroom apartments and a separate block of two one-bedroom apartments, culminating in a total of five one-bedroom apartments. This thoughtful design caters to the growing demand for quality housing in the area, making it an attractive prospect for potential tenants or buyers and is also located within close proximity of Stanford-le-Hope train station.
In addition to the residential potential, the plot benefits from allocated parking facilities, ensuring convenience for future residents. Furthermore, the inclusion of a potential ransom strip for future development enhances the value of this investment.
The design of two individual blocks allows work to be completed on one block to raise and free up capital for the development of the other.
This land is not just a plot; it is a canvas for your aspirations in a thriving community. With its strategic location and planning permission already granted for development, this opportunity is not to be missed. Whether you are looking to expand your property portfolio or embark on a new project, this land in Fairview Chase is a promising choice.
THE SMALL PRINT:
We’ve done our homework, but we aren’t fortune tellers. We haven’t poked the boiler, flicked the switches, or tested every light bulb. Nothing here counts as a contract or statement of fact—get your solicitor to check all the serious stuff, like tenure, parking, planning permission, building regs, and all that jazz!
Measurements? Guides only. Floorplans? Handy, but not perfectly to scale. Travelling far? Call first—clarification is free, petrol is not.
We may receive a referral fee if you choose to use third-party services we recommend, such as conveyancers, mortgage advisers, or EPC providers, but you are under no obligation to do so.
AML Checks - Law says we must run one. £80 + VAT per buyer. Tiny toll, big compliance.
Buyer Reservation Fee - Offer accepted? Pay a reservation fee (min £1,000) to lock it in. VIP pass to the property, protects against gazumping. Complete the sale? Fee refunded. Things go sideways? Sometimes non-refundable. Head to our website for full details – or skip the scrolling and just call.
Property details
- Tenure
- Freehold
- Council Tax Band
- Ask Agent
- Date Posted
- 2026-01-29
Utilities & Restrictions
Utilities
- Electricity
- Ask Agent
- Water
- Ask Agent
- Heating
- Ask Agent
- Broadband
- Ask Agent
- Sewerage
- Ask Agent
Rights & Restrictions
- Public Rights of Way
- Ask Agent
- Private Rights of Way
- Ask Agent
- Listed Property
- Ask Agent
- Restrictions
- Ask Agent
Property Features
- Accessibility
- Ask Agent
- Parking
- Parking Available
- Garden
- Ask Agent
Important notice: Information, maps and tags on this page are supplied by the advertising agent or generated automatically. LandSale has not verified them. Relying on these details is at your own risk, always carry out independent checks before committing to a purchase.
LandSale full disclaimer
Marketing information only - not formal particulars. The details on this website are provided for general guidance and do not constitute an offer or contract. Neither LandSale nor the advertising estate/land agent accepts responsibility for any inaccuracy.
1. Source of information
- Agent-supplied content: Core description, asking price, tenure, measurements, photographs and planning history are uploaded by the appointed agent, who remains solely responsible for their accuracy.
- Automated tags & categorisation: Property type, land-use class, acreage bands and similar labels may be applied by machine-learning models. They are intended as a helpful guide only and may not reflect the property's legal status or permitted use.
- Third-party & enriched data layers: Maps, boundary outlines, planning designations, soil reports, broadband coverage and other environmental or location-based insights are licensed from external suppliers. Such data are supplied “as is", may be incomplete or out of date and are subject to change without notice.
2. Verification required
Prospective purchasers must verify critical matters, including but not limited to planning permission, title boundaries, public rights of way, environmental constraints, acreage, services, access and VAT status, through their own inspections, specialist surveys, legal advisers and the selling agent before relying on the information or entering into any contract.
3. No warranty or liability
LandSale gives no warranty, express or implied, as to the accuracy, completeness or fitness for any particular purpose of the information displayed. LandSale shall not be liable for any loss, damage, cost or expense arising directly or indirectly from any use of or reliance on such information, save where liability may not be excluded by law.
4. Updates & feedback
If you believe any detail on this listing is inaccurate, please let us know. We will investigate and, where appropriate, update the listing or notify the agent.
© LandSale | Version 1.2 - January 2026
Listing agent
Colubrid, Thurrock & Basildon
17 Kings Parade, King Street, Essex, SS17 0HR
Enquire about this property
Contact Colubrid, Thurrock & Basildon
17 Kings Parade, King Street, Essex, SS17 0HR
View agent profile