Hawkbrand House, Knowle Road, TN12
- Land size
- 0.17 acres
- Bedrooms
- 3
- Bathrooms
- 2
Key Features
- Approval for the redevelopment into a 3 bedroom detached dwelling (1,600ft²) with landscaped gardens to the south
- Planning Application reference: - 18/03778/FULL - Tunbridge Wells Borough Council
- In all extending to 0.17 acres
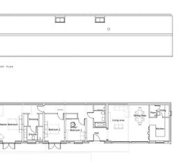
- Single storey conversion including Master Bedroom with Dressing Room and Ensuite
Description
A former farm office building and has
planning consent for redevelopment into a
3-bedroom dwelling close to the popular
village of Brenchley.
Approval for the redevelopment into a 3
bedroom detached dwelling (1,600ft²) with
landscaped gardens to the south.
Planning Application reference: -
18/03778/FULL - Tunbridge Wells Borough
Council
In all extending to 0.17 acres
Single storey conversion including Master
Bedroom with Dressing Room and Ensuite.
FOR SALE BY PRIVATE TREATY
GUIDE PRICE: £325,000
Property details
- Tenure
- Ask Agent
- Council Tax Band
- Ask Agent
- Date Posted
- 2026-01-29
Utilities & Restrictions
Utilities
- Electricity
- Ask Agent
- Water
- Ask Agent
- Heating
- Ask Agent
- Broadband
- Ask Agent
- Sewerage
- Ask Agent
Rights & Restrictions
- Public Rights of Way
- Ask Agent
- Private Rights of Way
- Ask Agent
- Listed Property
- Ask Agent
- Restrictions
- Ask Agent
Property Features
- Accessibility
- Ask Agent
- Parking
- Ask Agent
- Garden
- Garden
Important notice: Information, maps and tags on this page are supplied by the advertising agent or generated automatically. LandSale has not verified them. Relying on these details is at your own risk, always carry out independent checks before committing to a purchase.
LandSale full disclaimer
Marketing information only - not formal particulars. The details on this website are provided for general guidance and do not constitute an offer or contract. Neither LandSale nor the advertising estate/land agent accepts responsibility for any inaccuracy.
1. Source of information
- Agent-supplied content: Core description, asking price, tenure, measurements, photographs and planning history are uploaded by the appointed agent, who remains solely responsible for their accuracy.
- Automated tags & categorisation: Property type, land-use class, acreage bands and similar labels may be applied by machine-learning models. They are intended as a helpful guide only and may not reflect the property's legal status or permitted use.
- Third-party & enriched data layers: Maps, boundary outlines, planning designations, soil reports, broadband coverage and other environmental or location-based insights are licensed from external suppliers. Such data are supplied “as is", may be incomplete or out of date and are subject to change without notice.
2. Verification required
Prospective purchasers must verify critical matters, including but not limited to planning permission, title boundaries, public rights of way, environmental constraints, acreage, services, access and VAT status, through their own inspections, specialist surveys, legal advisers and the selling agent before relying on the information or entering into any contract.
3. No warranty or liability
LandSale gives no warranty, express or implied, as to the accuracy, completeness or fitness for any particular purpose of the information displayed. LandSale shall not be liable for any loss, damage, cost or expense arising directly or indirectly from any use of or reliance on such information, save where liability may not be excluded by law.
4. Updates & feedback
If you believe any detail on this listing is inaccurate, please let us know. We will investigate and, where appropriate, update the listing or notify the agent.
© LandSale | Version 1.2 - January 2026
Listing agent
BTF Partnership, Heathfield
Euston House 82a High Street, Heathfield, TN21 8JD
Enquire about this property
Contact BTF Partnership, Heathfield
Euston House 82a High Street, Heathfield, TN21 8JD
View agent profile