Box End Road, Kempston Rural, Bedford, Bedfordshire, MK43
- Land size
- 0.17 acres
Key Features
- Rare Self Build Opportunity Within Box End
- For Sale By Informal Tender - All offers To Be Received In Writing By 30/05
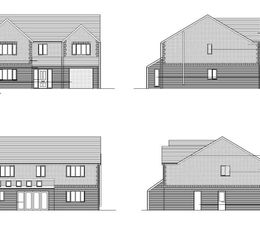
- Planning Permission Granted To Create A Stunning Executive Home of Approximately 2659sq.ft
- Plot Of Approximately 0.17Acres
- Sought After Location
- No Chain
Description
*** RARE BUILDING OPPORTUNITY IN BOX END ***
This property is for sale by Informal Tender with viewing dates scheduled for 02/05, 09/05, 16/05 and 23/05. Call now to book your appointment. All offers to be submitted in writing by 12noon on 30/05.
Homelea is a detached bungalow being sold with planning permission to create a stunning executive home of approximately 2659sq.ft within the sought-after location of Box End. The property sits on a plot of around 0.17 Acres and is available with no onward chain. This offers an exciting opportunity for a self-build project, or for developers looking for their next build.
We have been advised by the seller that there is a CIL liability of £39,359.37. For those looking to create a home to live in for themselves, buyers should submit a Commencement Notice (Form 6) for self-build exemption when they start work on site. We are also advised that a Unilateral Undertaking is in place agreed with the council, which allows the exemption from CIL liability.
Image 1 for the advert is a an AI created image to show how the property could look from the plans which have been approved.
LOCATION
Located on Box End Road, the property is close to and backs on to Box End Park, a popular water sports activities centre which includes a café/restaurant. The location allows for very good access to Bedford & Kempston’s facilities and by road easy access is available for the A1, A6 & M1 via the A421. Bedford’s mainline railway station offers fast and frequent services to the capital and beyond.
These particulars are set out as a general outline in accordance with the Property Misdescriptions Act (1991) only for the guidance of intending purchasers or lessees, and do not constitute any part of an offer or contract. Details are given without any responsibility, and any intending purchasers, lessees or third parties should not rely on them as statements or representations of fact but must satisfy themselves by inspection or otherwise as to the correctness of each of them. We have not carried out a structural survey and the services, appliances and specific fittings have not been tested. All photographs, measurements, floor plans and distances referred to are given as a guide only and should not be relied upon for the purchase of carpets or any other fixtures or fittings. Gardens, roof terraces and balconies as well as tenure and lease details cannot have their accuracy guaranteed for intending purchasers. Lease details, service ground rent (where applicable) are given as a guide only and should be checked and confirmed by your solicitor prior to exchange of contracts. No person in the employment of Urban & Rural has any authority to make any representation or warranty whatever in relation to this property. Purchase prices, rents or other prices quoted are correct at the date of publication and, unless otherwise stated, are exclusive of VAT. Intending purchasers and lessees must satisfy themselves independently as to the incidence of VAT in respect of any transaction relating to this property. We retain the copyright in all advertising material used to market this Property.
Map Location
Property details
- Tenure
- Freehold
- Council Tax Band
- E
- Date Posted
- 2026-04-24
Energy Performance Certificate
Energy Efficiency Rating
Based on UK Energy Performance Certificate standards (EU Directive 2002/91/EC)
Utilities & Restrictions
Utilities
- Electricity
- Mains
- Water
- Mains
- Heating
- Electric Heating, Solar Heating
- Broadband
- Ask Agent
- Sewerage
- Mains
Rights & Restrictions
- Public Rights of Way
- Ask Agent
- Private Rights of Way
- Ask Agent
- Listed Property
- Ask Agent
- Restrictions
- Ask Agent
Property Features
- Accessibility
- Ask Agent
- Parking
- Garage, Driveway
- Garden
- Garden
Important notice: Information, maps and tags on this page are supplied by the advertising agent or generated automatically. LandSale has not verified them. Relying on these details is at your own risk, always carry out independent checks before committing to a purchase.
LandSale full disclaimer
Marketing information only - not formal particulars. The details on this website are provided for general guidance and do not constitute an offer or contract. Neither LandSale nor the advertising estate/land agent accepts responsibility for any inaccuracy.
1. Source of information
- Agent-supplied content: Core description, asking price, tenure, measurements, photographs and planning history are uploaded by the appointed agent, who remains solely responsible for their accuracy.
- Automated tags & categorisation: Property type, land-use class, acreage bands and similar labels may be applied by machine-learning models. They are intended as a helpful guide only and may not reflect the property's legal status or permitted use.
- Third-party & enriched data layers: Maps, boundary outlines, planning designations, soil reports, broadband coverage and other environmental or location-based insights are licensed from external suppliers. Such data are supplied “as is", may be incomplete or out of date and are subject to change without notice.
2. Verification required
Prospective purchasers must verify critical matters, including but not limited to planning permission, title boundaries, public rights of way, environmental constraints, acreage, services, access and VAT status, through their own inspections, specialist surveys, legal advisers and the selling agent before relying on the information or entering into any contract.
3. No warranty or liability
LandSale gives no warranty, express or implied, as to the accuracy, completeness or fitness for any particular purpose of the information displayed. LandSale shall not be liable for any loss, damage, cost or expense arising directly or indirectly from any use of or reliance on such information, save where liability may not be excluded by law.
4. Updates & feedback
If you believe any detail on this listing is inaccurate, please let us know. We will investigate and, where appropriate, update the listing or notify the agent.
© LandSale | Version 1.2 - January 2026
Listing agent
Urban & Rural, Bedford
72 Bromham Road, Bedford, MK40 2QH