Building Plot, Joyford Hill, Coleford
Key Features
- Building plot with planning permission granted
- Approved for a contemporary split-level dwelling
- Elevated position with attractive outlook
- Modern design with balcony with elevated outlook
- Sought-after Forest of Dean location
- Integrated garage with EV charging provision
Description
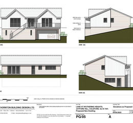
A rare opportunity to acquire a well-positioned building plot with panning permission for an architecturally striking, split-level contemporary home, set within an elevated and highly desirable location at Joyford Hill. The approved scheme has been intelligently designed to follow the natural contours of the plot, resulting in a home that offers both visual impact and practical, modern living.
The design is arranged over two levels, creating a natural separation between living and functional spaces:
The lower level is centred around practicality and flexibility, featuring a generous integrated garage with space for multiple vehicles, complete with provision for EV charging. In addition, there is a large separate store room, ideal for a workshop, hobby space, or further storage, alongside a utility area and internal access into the main home. This level makes the design particularly appealing for buyers needing storage, workspace, or lifestyle flexibility.
The upper level forms the heart of the home, designed with modern living in mind. A central hallway leads through to a light-filled open-plan kitchen and dining space, complemented by a separate living room, creating versatile spaces for both everyday living and entertaining. The layout also includes three well-proportioned bedrooms, en-suite to the principal along with a family bathroom and additional storage, making it ideal for families, downsizers wanting single-level living, or those seeking a stylish, low-maintenance home. A raised balcony area extends from the main living space, providing an elevated outdoor seating area, perfect for enjoying the outlook and surrounding setting.
The approved dwelling combines contemporary design with materials that sit comfortably within the area, including:
- Brick and vertical cladding elevations
- Slate-style roof finish
- Clean architectural lines with strong kerb appeal
- Carefully positioned glazing to maximise light while maintaining privacy
Joyford Hill is a sought-after location within the Forest of Dean, known for its elevated positioning, semi-rural feel, and access to beautiful surrounding woodland. The plot offers a balance of privacy, outlook, and convenience, with nearby amenities and transport links easily accessible.
Property details
- Tenure
- Freehold
- Council Tax Band
- Ask Agent
- Date Posted
- 2026-04-19
Utilities & Restrictions
Utilities
- Electricity
- Ask Agent
- Water
- Ask Agent
- Heating
- Ask Agent
- Broadband
- Ask Agent
- Sewerage
- Ask Agent
Rights & Restrictions
- Public Rights of Way
- Ask Agent
- Private Rights of Way
- Ask Agent
- Listed Property
- Ask Agent
- Restrictions
- Ask Agent
Property Features
- Accessibility
- Ask Agent
- Parking
- Parking Available
- Garden
- Ask Agent
Map Location
Thinking of selling?
Sell your property the smart way with free valuations, auction sales, and expert agent matching.
Important notice: Information, maps and tags on this page are supplied by the advertising agent or generated automatically. LandSale has not verified them. Relying on these details is at your own risk, always carry out independent checks before committing to a purchase.
LandSale full disclaimer
Marketing information only - not formal particulars. The details on this website are provided for general guidance and do not constitute an offer or contract. Neither LandSale nor the advertising estate/land agent accepts responsibility for any inaccuracy.
1. Source of information
- Agent-supplied content: Core description, asking price, tenure, measurements, photographs and planning history are uploaded by the appointed agent, who remains solely responsible for their accuracy.
- Automated tags & categorisation: Property type, land-use class, acreage bands and similar labels may be applied by machine-learning models. They are intended as a helpful guide only and may not reflect the property's legal status or permitted use.
- Third-party & enriched data layers: Maps, boundary outlines, planning designations, soil reports, broadband coverage and other environmental or location-based insights are licensed from external suppliers. Such data are supplied “as is", may be incomplete or out of date and are subject to change without notice.
2. Verification required
Prospective purchasers must verify critical matters, including but not limited to planning permission, title boundaries, public rights of way, environmental constraints, acreage, services, access and VAT status, through their own inspections, specialist surveys, legal advisers and the selling agent before relying on the information or entering into any contract.
3. No warranty or liability
LandSale gives no warranty, express or implied, as to the accuracy, completeness or fitness for any particular purpose of the information displayed. LandSale shall not be liable for any loss, damage, cost or expense arising directly or indirectly from any use of or reliance on such information, save where liability may not be excluded by law.
4. Updates & feedback
If you believe any detail on this listing is inaccurate, please let us know. We will investigate and, where appropriate, update the listing or notify the agent.
© LandSale | Version 1.2 - January 2026
Listing agent
Hattons Estate Agents, Forest of Dean
4 Lords Hill, Coleford, GL16 8BD