Land to the Rear of 82 to 84 Church Lane
Key Features
- Land with planning - Planning reference: V/2025/0513
Description
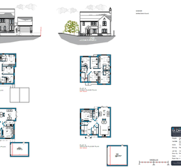
Presenting a remarkable opportunity to acquire a prime parcel of residential land with planning permission already secured (Planning Reference: V/2025/0513). This well-positioned plot offers an excellent foundation for those seeking to create their dream home or for developers looking to embark on a bespoke project. The granted planning consent provides a clear pathway to development, allowing you to move forward with confidence and clarity. The site’s generous proportions offer flexibility in design, making it suitable for a variety of potential layouts to suit individual requirements or investment strategies. Located within a sought-after area, the land benefits from convenient access to local amenities, transport links, and reputable schools, ensuring an appealing lifestyle for future residents. Whether you envision a contemporary family residence or a unique architectural statement, this plot delivers the perfect canvas for your aspirations. Rarely does such a well-located and ready-to-develop site become available, making this an unmissable prospect for discerning buyers and seasoned developers alike. For further details or to arrange a viewing of the site, please contact our office today and take the first step towards bringing your vision to life.
EPC Rating: D
Disclaimer
These particulars do not constitute part or all of a contract. While we endeavour to make our particulars fair, accurate and reliable, they are only a general guide to the property the photos are for reference purpose only, the appliances/white goods advertised may not be in situ and have not been tested. If there are any points which are of particular importance to you or any particular appliances or white goods required please check with the office and we will be pleased to check the position on these.
Property details
- Tenure
- Freehold
- Council Tax Band
- Ask Agent
- Date Posted
- 2026-04-18
Utilities & Restrictions
Utilities
- Electricity
- Ask Agent
- Water
- Ask Agent
- Heating
- Ask Agent
- Broadband
- Ask Agent
- Sewerage
- Ask Agent
Rights & Restrictions
- Public Rights of Way
- Ask Agent
- Private Rights of Way
- Ask Agent
- Listed Property
- Ask Agent
- Restrictions
- Ask Agent
Property Features
- Accessibility
- Ask Agent
- Parking
- Ask Agent
- Garden
- Ask Agent
Map Location
Important notice: Information, maps and tags on this page are supplied by the advertising agent or generated automatically. LandSale has not verified them. Relying on these details is at your own risk, always carry out independent checks before committing to a purchase.
LandSale full disclaimer
Marketing information only - not formal particulars. The details on this website are provided for general guidance and do not constitute an offer or contract. Neither LandSale nor the advertising estate/land agent accepts responsibility for any inaccuracy.
1. Source of information
- Agent-supplied content: Core description, asking price, tenure, measurements, photographs and planning history are uploaded by the appointed agent, who remains solely responsible for their accuracy.
- Automated tags & categorisation: Property type, land-use class, acreage bands and similar labels may be applied by machine-learning models. They are intended as a helpful guide only and may not reflect the property's legal status or permitted use.
- Third-party & enriched data layers: Maps, boundary outlines, planning designations, soil reports, broadband coverage and other environmental or location-based insights are licensed from external suppliers. Such data are supplied “as is", may be incomplete or out of date and are subject to change without notice.
2. Verification required
Prospective purchasers must verify critical matters, including but not limited to planning permission, title boundaries, public rights of way, environmental constraints, acreage, services, access and VAT status, through their own inspections, specialist surveys, legal advisers and the selling agent before relying on the information or entering into any contract.
3. No warranty or liability
LandSale gives no warranty, express or implied, as to the accuracy, completeness or fitness for any particular purpose of the information displayed. LandSale shall not be liable for any loss, damage, cost or expense arising directly or indirectly from any use of or reliance on such information, save where liability may not be excluded by law.
4. Updates & feedback
If you believe any detail on this listing is inaccurate, please let us know. We will investigate and, where appropriate, update the listing or notify the agent.
© LandSale | Version 1.2 - January 2026
Listing agent
Pinewood Properties, Clowne
26 Mill Street Clowne S43 4JN