Whinwhistle Road, East Wellow, Romsey, Hampshire, SO51
Key Features
- New Build Opportunity
- Approximately 1750sq/ft
- Four Bedrooms
- Large Kitchen/Living Room
- Sitting Room
- Bathroom & Ensuite
- Planning Granted - (23/00155/FULLS)
Description
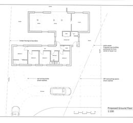
A rare and exciting opportunity to purchase a plot with full planning consent.
An excellent opportunity to acquire a building plot with full planning permission for the construction of a bespoke four-bedroom detached single storey residence.
The architect designed property is thoughtfully positioned at the centre of the plot, maximising space and privacy, and incorporates large windows to take full advantage of its desirable edge-of-village setting.
Further details and approved plans are available via the Test Valley Planning Portal under reference 23/00155/FULLS.
SITUATION
Wellow is located about 5.5 miles from the centre of Romsey, which provides an extremely good range of amenities including leisure facilities, schools for all ages, both state and private, theatre and a good range of shops for everyday needs to include two supermarkets. The village itself offers 2 public houses, primary school, village hall, various shops and a Post Office. The larger centres of Southampton and Salisbury are accessed via A36 and M27 and the cathedral city of Winchester in also within easy driving distance.
DIRECTIONS
Post Code - SO51 6BH
What3words///acre.tricycle.station
Anti Money Laundering
Estate Agents are legally required to conduct Anti-Money Laundering (AML) checks on all parties involved in the sale or purchase of a property. W&W use a specialist service called "Guild 365" to perform these checks. This is a service offered to Estate Agents who are members of the Guild of Property Professionals. These checks must be completed before a property is listed for sale and as soon as an offer is accepted (before we send out the Memorandum of Sale). There is a non-refundable fee of £25 (plus VAT) per person. Note: W&W receive a portion of this fee to cover our administration costs in processing these legal checks.
Property details
- Tenure
- Freehold
- Council Tax Band
- E
- Date Posted
- 2026-04-17
Utilities & Restrictions
Utilities
- Electricity
- Ask Agent
- Water
- Ask Agent
- Heating
- Ask Agent
- Broadband
- Ask Agent
- Sewerage
- Ask Agent
Rights & Restrictions
- Public Rights of Way
- Ask Agent
- Private Rights of Way
- Ask Agent
- Listed Property
- Ask Agent
- Restrictions
- Ask Agent
Property Features
- Accessibility
- Ask Agent
- Parking
- Ask Agent
- Garden
- Ask Agent
Map Location
Important notice: Information, maps and tags on this page are supplied by the advertising agent or generated automatically. LandSale has not verified them. Relying on these details is at your own risk, always carry out independent checks before committing to a purchase.
LandSale full disclaimer
Marketing information only - not formal particulars. The details on this website are provided for general guidance and do not constitute an offer or contract. Neither LandSale nor the advertising estate/land agent accepts responsibility for any inaccuracy.
1. Source of information
- Agent-supplied content: Core description, asking price, tenure, measurements, photographs and planning history are uploaded by the appointed agent, who remains solely responsible for their accuracy.
- Automated tags & categorisation: Property type, land-use class, acreage bands and similar labels may be applied by machine-learning models. They are intended as a helpful guide only and may not reflect the property's legal status or permitted use.
- Third-party & enriched data layers: Maps, boundary outlines, planning designations, soil reports, broadband coverage and other environmental or location-based insights are licensed from external suppliers. Such data are supplied “as is", may be incomplete or out of date and are subject to change without notice.
2. Verification required
Prospective purchasers must verify critical matters, including but not limited to planning permission, title boundaries, public rights of way, environmental constraints, acreage, services, access and VAT status, through their own inspections, specialist surveys, legal advisers and the selling agent before relying on the information or entering into any contract.
3. No warranty or liability
LandSale gives no warranty, express or implied, as to the accuracy, completeness or fitness for any particular purpose of the information displayed. LandSale shall not be liable for any loss, damage, cost or expense arising directly or indirectly from any use of or reliance on such information, save where liability may not be excluded by law.
4. Updates & feedback
If you believe any detail on this listing is inaccurate, please let us know. We will investigate and, where appropriate, update the listing or notify the agent.
© LandSale | Version 1.2 - January 2026
Listing agent
Woolley & Wallis, Romsey
4-6 Bell Street, Romsey, SO51 8ZN