Patrington
Description
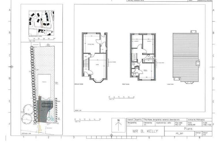
Frank Hill & Son are pleased to offer a unique excellent opportunity to purchase a residential development site with full planning permission for one custom-built dwelling situated in the centre of the village of Patrington. Please note the planning allows for demolition of existing brick building. Convenient to local schools and amenities. Residential Development Site 15A High Street, Patrington, Guide Price £59,000.
Planning Permission - Detailed planning permission 24/02319/OUT was granted on the 4th of November 2024 by the EYRC. For the erection of a custom-built dwelling (subject to conditions). Full details are available from the agents. Any further enquiries should be made to the planning officer at the East Riding Of Yorkshire Council.
Land Registry Title No Yea51245 - The property is registered with covenants.
Services - Previously but not presently connected. Mains water, electricity, sewage and gas are available on High Street. Any intending purchaser to satisfy themselves as to mains connection requirements.
Tenure - Freehold with vacant possession.
Solicitiors - Solicitors David Macnamara Sandersons, 187 Queen Street, Withernsea, HU19 2JR,
Exchange Of Contracts - The exchange of contracts is to take place 28 days after receipt by the purchaser's solicitor of a draft contract.
Viewings - Viewings are strictly by appointment with Frank Hill and Son.
Agent Notes - On the 26th of June 2017, the Fourth Money Laundering Directive came into effect. As a consequence of this new legislation, the vendor's agents will need to undertake due diligence checks of potential purchasers prior to an offer being accepted. Please contact the agents for further information that the Money Laundering 2003 and Immigration Act 2014 intending purchasers will be asked to produce identification documentation.
Plan And Particulars - The plans have been prepared and the areas in the particulars are stated for the convenience of the purchases and are based on the ordnance survey map with the sanction of the controller of H M A stationary officer. The plans and particulars are believed to be correct but their accuracy cannot be guaranteed and no claims for omissions be admitted.
Property details
- Tenure
- Freehold
- Council Tax Band
- Ask Agent
- Date Posted
- 2026-04-15
Utilities & Restrictions
Utilities
- Electricity
- Ask Agent
- Water
- Ask Agent
- Heating
- Ask Agent
- Broadband
- Ask Agent
- Sewerage
- Ask Agent
Rights & Restrictions
- Public Rights of Way
- Ask Agent
- Private Rights of Way
- Ask Agent
- Listed Property
- Ask Agent
- Restrictions
- Ask Agent
Property Features
- Accessibility
- Ask Agent
- Parking
- Ask Agent
- Garden
- Ask Agent
Map Location
Important notice: Information, maps and tags on this page are supplied by the advertising agent or generated automatically. LandSale has not verified them. Relying on these details is at your own risk, always carry out independent checks before committing to a purchase.
LandSale full disclaimer
Marketing information only - not formal particulars. The details on this website are provided for general guidance and do not constitute an offer or contract. Neither LandSale nor the advertising estate/land agent accepts responsibility for any inaccuracy.
1. Source of information
- Agent-supplied content: Core description, asking price, tenure, measurements, photographs and planning history are uploaded by the appointed agent, who remains solely responsible for their accuracy.
- Automated tags & categorisation: Property type, land-use class, acreage bands and similar labels may be applied by machine-learning models. They are intended as a helpful guide only and may not reflect the property's legal status or permitted use.
- Third-party & enriched data layers: Maps, boundary outlines, planning designations, soil reports, broadband coverage and other environmental or location-based insights are licensed from external suppliers. Such data are supplied “as is", may be incomplete or out of date and are subject to change without notice.
2. Verification required
Prospective purchasers must verify critical matters, including but not limited to planning permission, title boundaries, public rights of way, environmental constraints, acreage, services, access and VAT status, through their own inspections, specialist surveys, legal advisers and the selling agent before relying on the information or entering into any contract.
3. No warranty or liability
LandSale gives no warranty, express or implied, as to the accuracy, completeness or fitness for any particular purpose of the information displayed. LandSale shall not be liable for any loss, damage, cost or expense arising directly or indirectly from any use of or reliance on such information, save where liability may not be excluded by law.
4. Updates & feedback
If you believe any detail on this listing is inaccurate, please let us know. We will investigate and, where appropriate, update the listing or notify the agent.
© LandSale | Version 1.2 - January 2026
Listing agent
Frank Hill & Son, Patrington
18 Market Place, Patrington, HU12 0RB