Park Close, Abergavenny, NP7
- Bedrooms
- 2
- Bathrooms
- 1
Key Features
- Individual Self-Build Building Plot
- Detached Two Bedroom Bungalow
- Full Planning Permission Granted
- Planning Application Number - DM/2022/01525
- Central Town Location
- Off Road Parking
- Close to Local Amenities
- Freehold
Description
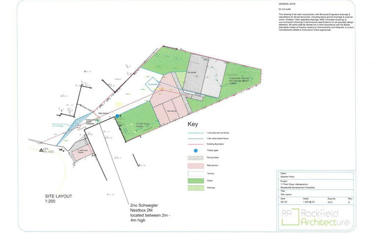
Located in a popular residential area, close to the town centre and Bailey Park, this building plot has full planning permission to build a detached bungalow, making it a perfect self-build for people looking to downsize or move into town. Monmouthshire County Council approved the development on 22nd September 2025. Application Number - DM/2022/01525
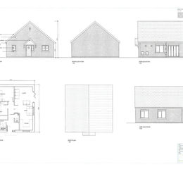
The bungalow, measuring 8.7m x 8.7m has been thoughtfully laid out and comprises of an entrance hall with WC and storage cupboard, with doors leading to the bathroom, two bedrooms and the open-plan kitchen/dining/living room, that has bifold doors opening out to the garden. The bungalow has gardens to three sides; with the main gardens being East and West facing, making it a sunny plot. There is also parking for two vehicles. The plot is level with fence borders and is accessed to the side of number 11. The access is shared with 11 as the existing property will also have one parking space at the rear.
Agent’s notes: We have been made aware the development has to pay Monmouthshire County council a contribution towards affordable housing.
Park Close is a popular residential street, a stone’s throw from Bailey Park and is located close to the town centre.
The historic market town of Abergavenny is affectionately known as The Gateway to Wales, with the beautiful Brecon Beacons National Park on your doorstep. The town has a range of local amenities such as independent shops, supermarkets, cafés, restaurants, hotels, a theatre, cinema, general hospital, primary and secondary schools and a mainline train station. A celebrated annual food festival entices national and international visitors every September, together with cycling, walking, music and art events throughout the year. The town has good road links towards Hereford, Brecon, Swansea, Bristol, Newport and Cardiff via A465, A40 and A4042 trunk roads.
Services: Mains electricity, gas, water and drainage to be connected/ installed by the purchaser.
Council Tax: We have been informed that this property has yet to be placed under a council tax band.
Telephone & Broadband: Telephone- subject to BT transfer regulations. According to Ofcom the following networks are available: Openreach and Ogi. The speeds available are standard, superfast and ultrafast. For more information visit:
Please note you should always confirm this by speaking to the specific provider you would like to use. This is for guidance only.
Property details
- Tenure
- Freehold
- Council Tax Band
- Ask Agent
- Date Posted
- 2026-04-09
Utilities & Restrictions
Utilities
- Electricity
- Ask Agent
- Water
- Ask Agent
- Heating
- Ask Agent
- Broadband
- Ask Agent
- Sewerage
- Ask Agent
Rights & Restrictions
- Public Rights of Way
- Ask Agent
- Private Rights of Way
- Ask Agent
- Listed Property
- Ask Agent
- Restrictions
- Ask Agent
Property Features
- Accessibility
- Ask Agent
- Parking
- Parking Available
- Garden
- Garden
Map Location
Important notice: Information, maps and tags on this page are supplied by the advertising agent or generated automatically. LandSale has not verified them. Relying on these details is at your own risk, always carry out independent checks before committing to a purchase.
LandSale full disclaimer
Marketing information only - not formal particulars. The details on this website are provided for general guidance and do not constitute an offer or contract. Neither LandSale nor the advertising estate/land agent accepts responsibility for any inaccuracy.
1. Source of information
- Agent-supplied content: Core description, asking price, tenure, measurements, photographs and planning history are uploaded by the appointed agent, who remains solely responsible for their accuracy.
- Automated tags & categorisation: Property type, land-use class, acreage bands and similar labels may be applied by machine-learning models. They are intended as a helpful guide only and may not reflect the property's legal status or permitted use.
- Third-party & enriched data layers: Maps, boundary outlines, planning designations, soil reports, broadband coverage and other environmental or location-based insights are licensed from external suppliers. Such data are supplied “as is", may be incomplete or out of date and are subject to change without notice.
2. Verification required
Prospective purchasers must verify critical matters, including but not limited to planning permission, title boundaries, public rights of way, environmental constraints, acreage, services, access and VAT status, through their own inspections, specialist surveys, legal advisers and the selling agent before relying on the information or entering into any contract.
3. No warranty or liability
LandSale gives no warranty, express or implied, as to the accuracy, completeness or fitness for any particular purpose of the information displayed. LandSale shall not be liable for any loss, damage, cost or expense arising directly or indirectly from any use of or reliance on such information, save where liability may not be excluded by law.
4. Updates & feedback
If you believe any detail on this listing is inaccurate, please let us know. We will investigate and, where appropriate, update the listing or notify the agent.
© LandSale | Version 1.2 - January 2026
Listing agent
James Dean, Abergavenny
59 Frogmore Street, Abergavenny, NP7 5AR