Development Opportunity at Parkgate Lane, Abbots Bromley, WS15
- Bedrooms
- 5
- Bathrooms
- 2
Key Features
- Fantastic Development Opportunity
- Full Planning Permission Granted
- Offered with No Upward Chain
- Tranquil Countryside Setting with Views
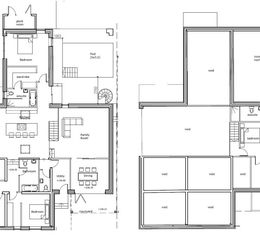
- Plans for Five Bedroom Barn with & Swimming Pool
- Ample Parking
- Wrap Around Garden Plot
- Well Placed for Local Village Amenities & Commuter Routes
- Private Drainage, Private Water, Mains Electric
- Planning Reference: P/2022/00608 East Staffordshire Borough Council
Description
Set within an exclusive rural courtyard on the picturesque borders of Abbots Bromley and Newborough is this outstanding self-build/development opportunity, with full permission granted for a fabulous five bedroom family home with open plan living and a swimming pool. Being offering with no upward chain, the barn is freehold and has services to be connected, power and a private drainage system (shared with one additional property).
Full planning permission details for the barn to be levelled and a new property of the same footprint build in its place, benefitting from a wrap around garden and private parking. Planning has been granted for an exceptional single storey family home, with an L shaped open plan living area including a kitchen, dining area and two lounge areas, plus four double bedrooms, a family bathroom ad utility room. The plans also include a stunning master suite with dressing room and en suite, as well as for a swimming pool to the rear aspect. The garden leads down to a small brook with pleasant views over open farmland beyond
The barn is positioned amidst rolling countryside between the villages of Abbots Bromley and Newborough, in an exclusive courtyard of conversions, each benefitting from independent outside space and parking. The historic village of Abbots Bromley lies a few minutes drive away, offering a superb array of everyday amenities centered around the handsome High Street. Famed for its annual Horn Dance, Abbots Bromley is home to a selection of shops, a primary school, doctors, traditional pubs, a village hall and a historic church, with the village formerly having been titled as one of the Top 12 Places to Live in the Midlands by the Sunday Times.
The barn is set within the catchment area for the Richard Clarke First School which feeds on to Oldfields Middle and Thomas Alleynes High in Uttoxeter. The location benefits from good links to the A515, A50 and A38 giving access to major commercial centres of the Midlands, regular rail links to Birmingham and London can be found in nearby Lichfield and Rugeley, and the International Airports of Birmingham and East Midlands are both within an easy drive.
Please Note: - The property benefits from a private water supply via the neighbouring farm, which currently operates on an informal basis. A borehole and underground pump chamber have also been installed on neighbouring land to serve the properties but are not currently in use. In order to utilise the borehole supply, a suitable water treatment system would need to be installed and connected. Further details of the water supply arrangements are available on request.
Land & Area Intelligence
Flood risk, planning history, ground stability and more
Map Location
Property details
- Tenure
- Freehold
- Council Tax Band
- Ask Agent
- Date Posted
- 2026-03-20
Utilities & Restrictions
Utilities
- Electricity
- Mains
- Water
- Ask Agent
- Heating
- Ground Source Heat Pump
- Broadband
- Ask Agent
- Sewerage
- Septic Tank / Private
Rights & Restrictions
- Public Rights of Way
- Ask Agent
- Private Rights of Way
- Ask Agent
- Listed Property
- Ask Agent
- Restrictions
- Ask Agent
Property Features
- Accessibility
- Ask Agent
- Parking
- Driveway
- Garden
- Garden
Important notice: Information, maps and tags on this page are supplied by the advertising agent or generated automatically. LandSale has not verified them. Relying on these details is at your own risk, always carry out independent checks before committing to a purchase.
LandSale full disclaimer
Marketing information only - not formal particulars. The details on this website are provided for general guidance and do not constitute an offer or contract. Neither LandSale nor the advertising estate/land agent accepts responsibility for any inaccuracy.
1. Source of information
- Agent-supplied content: Core description, asking price, tenure, measurements, photographs and planning history are uploaded by the appointed agent, who remains solely responsible for their accuracy.
- Automated tags & categorisation: Property type, land-use class, acreage bands and similar labels may be applied by machine-learning models. They are intended as a helpful guide only and may not reflect the property's legal status or permitted use.
- Third-party & enriched data layers: Maps, boundary outlines, planning designations, soil reports, broadband coverage and other environmental or location-based insights are licensed from external suppliers. Such data are supplied “as is", may be incomplete or out of date and are subject to change without notice.
2. Verification required
Prospective purchasers must verify critical matters, including but not limited to planning permission, title boundaries, public rights of way, environmental constraints, acreage, services, access and VAT status, through their own inspections, specialist surveys, legal advisers and the selling agent before relying on the information or entering into any contract.
3. No warranty or liability
LandSale gives no warranty, express or implied, as to the accuracy, completeness or fitness for any particular purpose of the information displayed. LandSale shall not be liable for any loss, damage, cost or expense arising directly or indirectly from any use of or reliance on such information, save where liability may not be excluded by law.
4. Updates & feedback
If you believe any detail on this listing is inaccurate, please let us know. We will investigate and, where appropriate, update the listing or notify the agent.
© LandSale | Version 1.2 - January 2026
Listing agent
Parker Hall, Barton-under-Needwood
Barton Marina Barton Under Needwood, Burton upon Trent DE13 8DZ
Contact Parker Hall, Barton-under-Needwood
Barton Marina Barton Under Needwood, Burton upon Trent DE13 8DZ
View agent profile