North Street, Pewsey, Wiltshire
- Bathrooms
- 1
Key Features
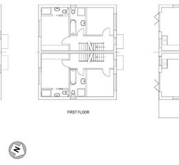
- A building plot for a pair of semi-detached town houses Each house 3 Bedroom, 2 bathroom
- Proposed houses to be approximately 1000 sq ft (130 sq m)
- Foundations in place
- Excellent location in busy village Centre, close to car park and walking distance from Station. Po
Description
Pewsey is a large village lying on the edge of Salisbury Plain and serves the popular and attractive Vale of Pewsey, which is designated as An Area of Outstanding Natural Beauty. The village offers excellent local shopping facilities that include a supermarket and has many amenities including a doctor`s surgery, a dental practice, a sports centre with swimming pool, public houses and various churches. Marlborough lies about 7 miles to the north and Hungerford and Devizes are close by whilst the larger regional centres of Salisbury, Andover, Newbury and Swindon are within easy traveling distance and provides a wider range of services. The railway station in the village has regular services to London Paddington with journey times of about 1 hour. The M4 motorway lies to the northeast at junction 15 and 14 and the A303 (M3) lies to the south.
The site comprises of a plot, formerly a post office yard, bordered by brick walling. The foundations are in the process of being laid, and further brick walls will be erected to further delineate between house plots, and the parking area. Planning consent was granted on 26th November 2025. PL/2025/06591 reference for the erection of two semi-detached dwellings of about 1000 sq. ft each.
Plans can be inspected by following this link:- Link to plans
Tenure
Freehold
Local Authority
Wiltshire Council, County Hall, Trowbridge, Wiltshire BA14 8JN, Tel:
Directions What three words
what3words /// harsh.ferrying.pillow
Notice
Please note we have not tested any apparatus, fixtures, fittings, or services. Interested parties must undertake their own investigation into the working order of these items. All measurements are approximate and photographs provided for guidance only.
Map Location
Property details
- Tenure
- Freehold
- Council Tax Band
- Ask Agent
- Date Posted
- 2026-03-14
Utilities & Restrictions
Utilities
- Electricity
- Ask Agent
- Water
- Ask Agent
- Heating
- Ask Agent
- Broadband
- Ask Agent
- Sewerage
- Ask Agent
Rights & Restrictions
- Public Rights of Way
- Ask Agent
- Private Rights of Way
- Ask Agent
- Listed Property
- Ask Agent
- Restrictions
- Ask Agent
Property Features
- Accessibility
- Ask Agent
- Parking
- Parking Available
- Garden
- Garden
Important notice: Information, maps and tags on this page are supplied by the advertising agent or generated automatically. LandSale has not verified them. Relying on these details is at your own risk, always carry out independent checks before committing to a purchase.
LandSale full disclaimer
Marketing information only - not formal particulars. The details on this website are provided for general guidance and do not constitute an offer or contract. Neither LandSale nor the advertising estate/land agent accepts responsibility for any inaccuracy.
1. Source of information
- Agent-supplied content: Core description, asking price, tenure, measurements, photographs and planning history are uploaded by the appointed agent, who remains solely responsible for their accuracy.
- Automated tags & categorisation: Property type, land-use class, acreage bands and similar labels may be applied by machine-learning models. They are intended as a helpful guide only and may not reflect the property's legal status or permitted use.
- Third-party & enriched data layers: Maps, boundary outlines, planning designations, soil reports, broadband coverage and other environmental or location-based insights are licensed from external suppliers. Such data are supplied “as is", may be incomplete or out of date and are subject to change without notice.
2. Verification required
Prospective purchasers must verify critical matters, including but not limited to planning permission, title boundaries, public rights of way, environmental constraints, acreage, services, access and VAT status, through their own inspections, specialist surveys, legal advisers and the selling agent before relying on the information or entering into any contract.
3. No warranty or liability
LandSale gives no warranty, express or implied, as to the accuracy, completeness or fitness for any particular purpose of the information displayed. LandSale shall not be liable for any loss, damage, cost or expense arising directly or indirectly from any use of or reliance on such information, save where liability may not be excluded by law.
4. Updates & feedback
If you believe any detail on this listing is inaccurate, please let us know. We will investigate and, where appropriate, update the listing or notify the agent.
© LandSale | Version 1.2 - January 2026
Listing agent
Birkmyre Property Consultants, Marlborough
23 The Parade, Marlborough, Wiltshire, SN8 1NE
Contact Birkmyre Property Consultants, Marlborough
23 The Parade, Marlborough, Wiltshire, SN8 1NE
View agent profile