Plot with planning behind 235, Peniel Green Road, Llansamlet, Swansea, SA7 9AP
- Bedrooms
- 3
- Bathrooms
- 1
Description
For sale by Online Auction - 25th of March 2026.
Plot with planning behind 235, Peniel Green Road, Llansamlet, Swansea, SA7 9AP
Guide Price £59,000
Auction 25.02.2026
Description
An excellent opportunity to acquire a residential development plot situated behind Peniel Green Road (on Gwernllwychwyth Road) in the popular and well-established area of Llansamlet, Swansea.
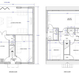
The site benefits from full planning permission for the construction of a 3-bedroom dormer detached dwelling, designed to provide spacious and modern family accommodation. The proposed accommodation comprises an open-plan kitchen/dining area, separate lounge, ground floor bathroom, and three well-proportioned bedrooms with additional dormer space to the first floor, creating an attractive and practical layout suited to modern living.
Located within easy reach of local amenities, schools and transport links, the plot offers convenient access to Swansea city centre, the M4 motorway (J44 & J45), retail parks and surrounding commercial hubs, making it an appealing prospect for developers, builders or self-build purchasers.
The area is predominantly residential with a mix of established housing, supporting strong resale or rental demand upon completion.
Planning - Ref 2024/1319/FUL
Previoulsy refused, now approved
Key Features:
Residential development plot
Full planning permission granted
Proposed 3-bedroom dormer detached dwelling
Sought-after and convenient location
Excellent investment or self-build opportunity
Good transport links to Swansea and the M4
Planning documentation, approved drawings and supporting reports are available within the legal pack.
Legal Pack
A legal pack is a collaboration of important documents of the property or land that is going to be sold at auction. To review the legal pack, click the Legal Documents button at the bottom of this advert or visit tcpa.co.uk.
Auction Information.
To view the auction information, click the Online Bidding button at the bottom of this advert or visit tcpa.co.uk.
UNCONDITIONAL - Contracts are exchanged on the fall of the hammer and a 10% deposit will be taken from the highest bidder. This deposit will contribute towards the purchase price.
Pre Auction Offers Are Considered
The seller of this property may consider a pre-auction offer prior to the auction date. All auction conditions will remain the same for pre-auction offers which include but are not limited to, the special auction conditions which can be viewed within the legal pack, the Buyer's Premium, and the deposit. To make a pre-auction offer we will require two forms of ID, proof of your ability to purchase the property and complete our auction registration processes online. To find out more information or to make a pre-auction offer please contact us.
Special Conditions
Any additional costs will be listed in the Special Conditions within the legal pack and these costs will be payable on completion. The legal pack is available to download free of charge under the LEGAL DOCUMENTS'. Any stamp duty and/or government taxes are not included within the Special Conditions within the legal pack and all potential buyers must make their own investigations.
Property details
- Tenure
- Freehold
- Council Tax Band
- Ask Agent
- Date Posted
- 2026-03-05
Utilities & Restrictions
Utilities
- Electricity
- Ask Agent
- Water
- Ask Agent
- Heating
- Ask Agent
- Broadband
- Ask Agent
- Sewerage
- Ask Agent
Rights & Restrictions
- Public Rights of Way
- Ask Agent
- Private Rights of Way
- Ask Agent
- Listed Property
- Ask Agent
- Restrictions
- Ask Agent
Property Features
- Accessibility
- Ask Agent
- Parking
- Ask Agent
- Garden
- Ask Agent
Important notice: Information, maps and tags on this page are supplied by the advertising agent or generated automatically. LandSale has not verified them. Relying on these details is at your own risk, always carry out independent checks before committing to a purchase.
LandSale full disclaimer
Marketing information only - not formal particulars. The details on this website are provided for general guidance and do not constitute an offer or contract. Neither LandSale nor the advertising estate/land agent accepts responsibility for any inaccuracy.
1. Source of information
- Agent-supplied content: Core description, asking price, tenure, measurements, photographs and planning history are uploaded by the appointed agent, who remains solely responsible for their accuracy.
- Automated tags & categorisation: Property type, land-use class, acreage bands and similar labels may be applied by machine-learning models. They are intended as a helpful guide only and may not reflect the property's legal status or permitted use.
- Third-party & enriched data layers: Maps, boundary outlines, planning designations, soil reports, broadband coverage and other environmental or location-based insights are licensed from external suppliers. Such data are supplied “as is", may be incomplete or out of date and are subject to change without notice.
2. Verification required
Prospective purchasers must verify critical matters, including but not limited to planning permission, title boundaries, public rights of way, environmental constraints, acreage, services, access and VAT status, through their own inspections, specialist surveys, legal advisers and the selling agent before relying on the information or entering into any contract.
3. No warranty or liability
LandSale gives no warranty, express or implied, as to the accuracy, completeness or fitness for any particular purpose of the information displayed. LandSale shall not be liable for any loss, damage, cost or expense arising directly or indirectly from any use of or reliance on such information, save where liability may not be excluded by law.
4. Updates & feedback
If you believe any detail on this listing is inaccurate, please let us know. We will investigate and, where appropriate, update the listing or notify the agent.
© LandSale | Version 1.2 - January 2026
Listing agent
Town & Country Property Auctions, Oswestry
4 Willow Street, Oswestry, SY11 1AA
Enquire about this property
Contact Town & Country Property Auctions, Oswestry
4 Willow Street, Oswestry, SY11 1AA
View agent profile


