Station Lane, Scraptoft, LE7
Key Features
- Plot of development land for sale - perfect opportunity to build a self build home
- Available subject to granted planning permission
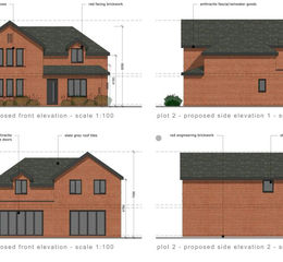
- Proposed four bedroom detached property at circa 2200 square feet
- Located just off Station Lane in Scraptoft, off a private shared access road
- Planning reference no: 25/00394/FUL - Harborough Council
- Offers scope to adapted further subject to further planning permission
Description
Positioned on one of Scraptoft’s most desirable roads, this prime parcel of land comes with full planning permission for a substantial four-bedroom detached family home measuring approximately 2,200 sqft.
Tucked away down a private access road just off the ever-popular Station Lane, the setting offers both privacy and prestige, a hidden gem in a location where opportunities like this are few and far between.
The proposed home has been designed to offer generous living accommodation across two floors, with a layout that prioritises family life and modern convenience. The current scheme presents a spacious and well-thought-out design, while also offering excellent scope for further enhancement (subject to additional planning consent), making it ideal for those wishing to future-proof or personalise their forever home.
Whether you're looking to build out a dream residence or invest in a sought-after spot with strong resale potential, this plot is a rare find.
Disclaimer
In accordance with current legal requirements, all prospective purchasers are required to undergo an Anti-Money Laundering (AML) check. An administration fee of £40 per property will apply. This fee is payable after an offer has been accepted and must be settled before a memorandum of sale can be issued.
Property details
- Tenure
- Freehold
- Council Tax Band
- G
- Date Posted
- 2026-03-05
Utilities & Restrictions
Utilities
- Electricity
- Ask Agent
- Water
- Ask Agent
- Heating
- Ask Agent
- Broadband
- Ask Agent
- Sewerage
- Ask Agent
Rights & Restrictions
- Public Rights of Way
- Ask Agent
- Private Rights of Way
- Ask Agent
- Listed Property
- Ask Agent
- Restrictions
- Ask Agent
Property Features
- Accessibility
- Ask Agent
- Parking
- Ask Agent
- Garden
- Ask Agent
Important notice: Information, maps and tags on this page are supplied by the advertising agent or generated automatically. LandSale has not verified them. Relying on these details is at your own risk, always carry out independent checks before committing to a purchase.
LandSale full disclaimer
Marketing information only - not formal particulars. The details on this website are provided for general guidance and do not constitute an offer or contract. Neither LandSale nor the advertising estate/land agent accepts responsibility for any inaccuracy.
1. Source of information
- Agent-supplied content: Core description, asking price, tenure, measurements, photographs and planning history are uploaded by the appointed agent, who remains solely responsible for their accuracy.
- Automated tags & categorisation: Property type, land-use class, acreage bands and similar labels may be applied by machine-learning models. They are intended as a helpful guide only and may not reflect the property's legal status or permitted use.
- Third-party & enriched data layers: Maps, boundary outlines, planning designations, soil reports, broadband coverage and other environmental or location-based insights are licensed from external suppliers. Such data are supplied “as is", may be incomplete or out of date and are subject to change without notice.
2. Verification required
Prospective purchasers must verify critical matters, including but not limited to planning permission, title boundaries, public rights of way, environmental constraints, acreage, services, access and VAT status, through their own inspections, specialist surveys, legal advisers and the selling agent before relying on the information or entering into any contract.
3. No warranty or liability
LandSale gives no warranty, express or implied, as to the accuracy, completeness or fitness for any particular purpose of the information displayed. LandSale shall not be liable for any loss, damage, cost or expense arising directly or indirectly from any use of or reliance on such information, save where liability may not be excluded by law.
4. Updates & feedback
If you believe any detail on this listing is inaccurate, please let us know. We will investigate and, where appropriate, update the listing or notify the agent.
© LandSale | Version 1.2 - January 2026
Listing agent
Hortons, National
11 Brook Park Offices, Gaddesby Lane, Rearsby, LE7 4ZB
Enquire about this property
Contact Hortons, National
11 Brook Park Offices, Gaddesby Lane, Rearsby, LE7 4ZB
View agent profile