Crab Tree Lane, Old Ellerby, Hull, HU11
Key Features
- Reservation Fee Applicable – T&C’s Apply
- Prime Development Plot in Old Ellerby
- Full Planning Permission Granted
- Architect-Designed Contemporary Four Bedroom Home
- Single-Storey High-Specification Scheme
- Single-Storey High-Specification Scheme
- Open-Plan Living with Garden Aspect
- Double Car Port & Landscaped Design
- Excellent Access to Hull & Beverley
- Book Your Viewing Today!
Description
Guide Price £120,000 - £140,000 plus Reservation Fee
An outstanding and increasingly rare opportunity to acquire a prime residential development plot within the highly desirable village of Old Ellerby. Situated within the grounds of The Blue Bell Inn on Crabtree Lane, the site benefits from full planning permission for a striking, architect-designed four-bedroom detached contemporary home, offering an exceptional chance for self-builders or developers alike.
The level plot enjoys direct access from Crabtree Lane and is set within a peaceful rural environment, while remaining conveniently positioned for access to Hull and the historic market town of Beverley. Old Ellerby is a charming East Yorkshire village, combining countryside tranquillity with accessibility, making it an attractive setting for a bespoke family residence.
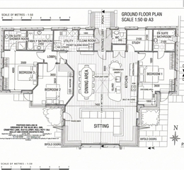
Full planning consent has been granted for a high-specification, single-storey contemporary dwelling designed by the acclaimed Ingleby and Hobson Architects (RIBA). The approved design showcases a bold yet sympathetic architectural approach, with a strong emphasis on light, space and modern living.
The proposed accommodation centres around an impressive open-plan sitting, dining and kitchen space, complete with a central island and expansive bifold doors opening directly onto the garden, seamlessly blending indoor and outdoor living. The principal suite is designed with a private dressing area and generous en-suite bathroom, complemented by two further well-proportioned bedrooms (one with en-suite facilities) and a flexible fourth bedroom or guest room. Practical additions include a dedicated study, utility room, cloakroom and a family bathroom. Externally, the scheme incorporates a double car port, storage shed and considered landscaping with sleeper borders and privacy fencing.
While planning is currently approved for the contemporary four-bedroom design, the generous proportions and adaptable nature of the plot may lend themselves to alternative schemes or bespoke architectural concepts, subject to the necessary planning consents.
This represents a rare chance to create a truly individual home in a prime village location — whether proceeding with the approved architect-led vision or tailoring the design to your own specification.
Key Features:
Prime Development Plot in Old Ellerby
Full Planning Permission Granted
Architect-Designed Contemporary Four Bedroom Home
Single-Storey High-Specification Scheme
Open-Plan Living with Garden Aspect
Double Car Port & Landscaped Design
Direct Access from Crabtree Lane
Excellent Access to Hull & Beverley
Reservation Fee Applicable – T&C’s Apply
Book Your Viewing Today!
Fees, Exclusivity & Disclaimer
Reservation Fee:
Upon acceptance of an offer, the Buyer is required to pay a non-refundable Reservation Fee of 1.5% of the purchase price (minimum £2,500 + VAT). This fee is in addition to the purchase price. Once paid, the property will be immediately taken off the market, preventing gazumping, reducing delays, and providing peace of mind.
Refund Policy:
The Reservation Fee may be refunded only in specific circumstances, such as:
The seller withdrawing from the sale
A chain collapsing beyond the Buyer’s control
Significant structural issues confirmed by a qualified structural survey
For full details of refund eligibility, please contact our office.
Exclusivity:
Upon payment of the Reservation Fee, Rezee grants the Buyer a fixed exclusivity period of 90 days from the issue of draft contracts. During this time, the property is reserved exclusively for the Buyer.
Buying Process:
Register your interest
Prepare your finances
Arrange a viewing
Make an offer
Secure the sale via our secure system
Exchange and complete
Important Information & Disclaimer:
A Ready Sale Pack containing detailed property information is available. Buyers are advised to review this pack and undertake their own due diligence before committing to purchase.
Buyers must verify their ID and provide proof of funds as part of our compliance process.
Rezee may offer related services (conveyancing, financial advice, surveying, etc.) and may receive referral fees from third-party providers.
While we take care to ensure sales particulars are accurate, they do not form part of any offer or contract and should not be relied upon as statements of fact.
Stamp Duty (SDLT):
Not all property purchases are subject to SDLT. Liability depends on factors such as purchase price and buyers position. Buyers should seek advice from a solicitor or tax adviser to confirm whether SDLT applies to their purchase and how much they would have to pay.
Rezee’s Approach:
Our innovative selling process provides a secure and transparent way to buy property, designed to protect all parties and reduce the risks of failed sales.
Property details
- Tenure
- Freehold
- Council Tax Band
- Ask Agent
- Date Posted
- 2026-03-05
Utilities & Restrictions
Utilities
- Electricity
- Ask Agent
- Water
- Ask Agent
- Heating
- Ask Agent
- Broadband
- Ask Agent
- Sewerage
- Ask Agent
Rights & Restrictions
- Public Rights of Way
- Ask Agent
- Private Rights of Way
- Ask Agent
- Listed Property
- Ask Agent
- Restrictions
- Ask Agent
Property Features
- Accessibility
- Ask Agent
- Parking
- Parking Available
- Garden
- Garden
Important notice: Information, maps and tags on this page are supplied by the advertising agent or generated automatically. LandSale has not verified them. Relying on these details is at your own risk, always carry out independent checks before committing to a purchase.
LandSale full disclaimer
Marketing information only - not formal particulars. The details on this website are provided for general guidance and do not constitute an offer or contract. Neither LandSale nor the advertising estate/land agent accepts responsibility for any inaccuracy.
1. Source of information
- Agent-supplied content: Core description, asking price, tenure, measurements, photographs and planning history are uploaded by the appointed agent, who remains solely responsible for their accuracy.
- Automated tags & categorisation: Property type, land-use class, acreage bands and similar labels may be applied by machine-learning models. They are intended as a helpful guide only and may not reflect the property's legal status or permitted use.
- Third-party & enriched data layers: Maps, boundary outlines, planning designations, soil reports, broadband coverage and other environmental or location-based insights are licensed from external suppliers. Such data are supplied “as is", may be incomplete or out of date and are subject to change without notice.
2. Verification required
Prospective purchasers must verify critical matters, including but not limited to planning permission, title boundaries, public rights of way, environmental constraints, acreage, services, access and VAT status, through their own inspections, specialist surveys, legal advisers and the selling agent before relying on the information or entering into any contract.
3. No warranty or liability
LandSale gives no warranty, express or implied, as to the accuracy, completeness or fitness for any particular purpose of the information displayed. LandSale shall not be liable for any loss, damage, cost or expense arising directly or indirectly from any use of or reliance on such information, save where liability may not be excluded by law.
4. Updates & feedback
If you believe any detail on this listing is inaccurate, please let us know. We will investigate and, where appropriate, update the listing or notify the agent.
© LandSale | Version 1.2 - January 2026
Listing agent
Rezee, Hull
The Bloc (F13), Springfield Way, Anlaby, Hull, HU10 6RJ
Enquire about this property
Contact Rezee, Hull
The Bloc (F13), Springfield Way, Anlaby, Hull, HU10 6RJ
View agent profile