Plot at Corry Bridge, Braes, Ullapool, IV26 2SZ
- Land size
- 0.59 acres
Key Features
- Rare opportunity to purchase plot in popular residential location in Braes of Ullapool
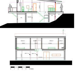
- Planning Permission Reference 23/01848/FUL granted for 2 bed single storey house
- Elevated location with views over Loch Broom
- Popular west coast village on NC500 and ferry link to Stornoway
- Plot Area 0.59 acres
Description
Presenting a rare opportunity to acquire a well-positioned plot within the sought-after Braes of Ullapool, this unique offering is ideally suited for those looking to create a bespoke home in one of the Highlands’ most picturesque settings. With full planning permission granted (Reference 23/01848/FUL) for a thoughtfully designed, two-bedroom single storey house, the plot provides the perfect canvas for a contemporary residence tailored to your preferences. The elevated position ensures captivating views over Loch Broom, enhancing the sense of tranquillity and connection to the natural surroundings. Situated in a popular residential area, this plot benefits from the established community spirit of Ullapool, a vibrant west coast village renowned for its charming atmosphere and excellent local amenities. Ullapool is a key destination on the iconic North Coast 500 route, making it a popular choice for both residents and visitors, while the ferry terminal offers convenient links to Stornoway and the Outer Hebrides, further increasing the appeal of this location. The village itself is well-served by a range of shops, cafes, restaurants, and essential services, as well as respected primary and secondary schooling. With a rich cultural scene, including regular music events and art exhibitions, Ullapool offers a lively yet relaxed lifestyle for all ages. The approved plans for the single storey home have been carefully considered to maximise natural light and take full advantage of the outstanding views, with a practical layout that will suit a variety of buyers, whether as a permanent residence, a holiday retreat, or an investment opportunity. Rarely does a plot with such potential, in such a desirable location, come to the open market at this location. For those seeking to build a home that truly reflects their aspirations, in a setting that combines natural beauty with convenience, this plot represents an exceptional proposition. Early enquiry is highly recommended to avoid disappointment and to take the first step towards realising your vision in the heart of the Highlands. Full details of the planning permission and proposed plans are available on request (Planning Reference 23/01848/FUL), and our team will be pleased to provide further information or arrange a site visit at your convenience. Plot area - 0.59 acres.
Property details
- Tenure
- Freehold
- Council Tax Band
- Ask Agent
- Date Posted
- 2026-03-03
Utilities & Restrictions
Utilities
- Electricity
- Ask Agent
- Water
- Ask Agent
- Heating
- Ask Agent
- Broadband
- Ask Agent
- Sewerage
- Ask Agent
Rights & Restrictions
- Public Rights of Way
- Ask Agent
- Private Rights of Way
- Ask Agent
- Listed Property
- Ask Agent
- Restrictions
- Ask Agent
Property Features
- Accessibility
- Ask Agent
- Parking
- Ask Agent
- Garden
- Ask Agent
Important notice: Information, maps and tags on this page are supplied by the advertising agent or generated automatically. LandSale has not verified them. Relying on these details is at your own risk, always carry out independent checks before committing to a purchase.
LandSale full disclaimer
Marketing information only - not formal particulars. The details on this website are provided for general guidance and do not constitute an offer or contract. Neither LandSale nor the advertising estate/land agent accepts responsibility for any inaccuracy.
1. Source of information
- Agent-supplied content: Core description, asking price, tenure, measurements, photographs and planning history are uploaded by the appointed agent, who remains solely responsible for their accuracy.
- Automated tags & categorisation: Property type, land-use class, acreage bands and similar labels may be applied by machine-learning models. They are intended as a helpful guide only and may not reflect the property's legal status or permitted use.
- Third-party & enriched data layers: Maps, boundary outlines, planning designations, soil reports, broadband coverage and other environmental or location-based insights are licensed from external suppliers. Such data are supplied “as is", may be incomplete or out of date and are subject to change without notice.
2. Verification required
Prospective purchasers must verify critical matters, including but not limited to planning permission, title boundaries, public rights of way, environmental constraints, acreage, services, access and VAT status, through their own inspections, specialist surveys, legal advisers and the selling agent before relying on the information or entering into any contract.
3. No warranty or liability
LandSale gives no warranty, express or implied, as to the accuracy, completeness or fitness for any particular purpose of the information displayed. LandSale shall not be liable for any loss, damage, cost or expense arising directly or indirectly from any use of or reliance on such information, save where liability may not be excluded by law.
4. Updates & feedback
If you believe any detail on this listing is inaccurate, please let us know. We will investigate and, where appropriate, update the listing or notify the agent.
© LandSale | Version 1.2 - January 2026
Listing agent
Nested, Nationwide
Fora, 9 Dallington Street, London, EC1V 0LN
Enquire about this property
Contact Nested, Nationwide
Fora, 9 Dallington Street, London, EC1V 0LN
View agent profile