Oakley Wood, Benson, OX10
- Land size
- 0.3 acres
Key Features
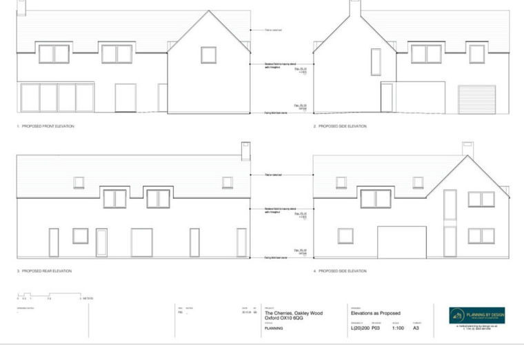
- Building plot with an exciting self-build planning permission for a six-bedroom detached country home.
- Proposed build would be approximately 3120sq ft.
- A very private circa 0.3acres plot.
- Beautiful woodland setting.
- Located towards the bottom of a private track.
- Planning reference number for the South Oxfordshire district council website - P25/S1158/FUL
- Existing property on the site is a three bedroom bungalow with two bedroom annex.
Description
PLOT WITH PLANNING PERMISSION – A beautifully located plot of circa 0.3acres in a peaceful woodland setting offering FULL SELF-BUILD PLANNING PERMISSION for a modern country home comprising six bedrooms, four bathrooms and statement kitchen-diner-living room. This 3120sq ft property would sit at the bottom of this private lane in an exceptionally secluded position. For full details, conditions, drawings and supporting documentation please contact Thomas Merrifield or visit the South Oxfordshire District Council website under the planning and development section using application number P25/S1158/FUL. A well-presented three bedroom bungalow with separate annex currently sits on the site which could be enjoyed in its current form. The current two bedroom annex works very well as a short let.
Easily accessible for Wallingford and Henley on Thames surrounded by a stunning rural landscape, The Cherries is in close reach of extensive local facilities and schooling, and additionally benefit from being but a short 4 mile drive from a mainline railway station providing direct access to London Paddington within the hour.
Some material information to note: We believe the current property on the plot is of non-standard construction. The current property is sceptic tank waste, electric storage heating, mains water and mains electric. Offcom checker indicates standard to superfast broadband is available at this address. Offcom checker indicates mobile availability with all of the major providers. The property has driveway parking. The government portal generally highlights this as a very low risk address for flooding. Properties built pre-2000 may contain asbestos in certain materials used in their construction or in subsequent building work. Examples of these materials are; Artex, vinyl tiles, sheet boards, corrugated roofing, pipework and lagging/insulation. These are generally considered safe unless disturbed but prospective buyers must take their own advice. Buyers are advised to conduct their own investigations and obtain their own independent advice to confirm the presence of any asbestos. There is a small parcel of the land being sold which is in a separate title. We are not aware of any planning permissions in close proximity which would negatively affect the property. Details of the planning conditions for the consented build, any covenants or easements are available on request from the estate agent.
Property details
- Tenure
- Freehold
- Council Tax Band
- Ask Agent
- Date Posted
- 2026-02-28
Utilities & Restrictions
Utilities
- Electricity
- Ask Agent
- Water
- Ask Agent
- Heating
- Ask Agent
- Broadband
- Ask Agent
- Sewerage
- Ask Agent
Rights & Restrictions
- Public Rights of Way
- Ask Agent
- Private Rights of Way
- Ask Agent
- Listed Property
- Ask Agent
- Restrictions
- Ask Agent
Property Features
- Accessibility
- Ask Agent
- Parking
- Parking Available
- Garden
- Ask Agent
Important notice: Information, maps and tags on this page are supplied by the advertising agent or generated automatically. LandSale has not verified them. Relying on these details is at your own risk, always carry out independent checks before committing to a purchase.
LandSale full disclaimer
Marketing information only - not formal particulars. The details on this website are provided for general guidance and do not constitute an offer or contract. Neither LandSale nor the advertising estate/land agent accepts responsibility for any inaccuracy.
1. Source of information
- Agent-supplied content: Core description, asking price, tenure, measurements, photographs and planning history are uploaded by the appointed agent, who remains solely responsible for their accuracy.
- Automated tags & categorisation: Property type, land-use class, acreage bands and similar labels may be applied by machine-learning models. They are intended as a helpful guide only and may not reflect the property's legal status or permitted use.
- Third-party & enriched data layers: Maps, boundary outlines, planning designations, soil reports, broadband coverage and other environmental or location-based insights are licensed from external suppliers. Such data are supplied “as is", may be incomplete or out of date and are subject to change without notice.
2. Verification required
Prospective purchasers must verify critical matters, including but not limited to planning permission, title boundaries, public rights of way, environmental constraints, acreage, services, access and VAT status, through their own inspections, specialist surveys, legal advisers and the selling agent before relying on the information or entering into any contract.
3. No warranty or liability
LandSale gives no warranty, express or implied, as to the accuracy, completeness or fitness for any particular purpose of the information displayed. LandSale shall not be liable for any loss, damage, cost or expense arising directly or indirectly from any use of or reliance on such information, save where liability may not be excluded by law.
4. Updates & feedback
If you believe any detail on this listing is inaccurate, please let us know. We will investigate and, where appropriate, update the listing or notify the agent.
© LandSale | Version 1.2 - January 2026
Listing agent
Thomas Merrifield, Wallingford
72 High Street, Wallingford, OX10 0BX
Enquire about this property
Contact Thomas Merrifield, Wallingford
72 High Street, Wallingford, OX10 0BX
View agent profile