Weslayen Lane, Ashley
- Bedrooms
- 5
- Bathrooms
- 3
Key Features
- RARE OPPORTUNITY TO BUILD YOUR DREAM HOME
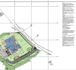
- 25/00672/FUL
- FULL PLANNING GRANTED
- HIGHLY SOUGHT AFTER LOCATION
- LARGE PLOT
- STUNNING VIEWS
Description
Situated in the highly sought-after village of Ashley in Staffordshire, this exceptional plot of land offers a rare opportunity to create your dream home. The site benefits from full planning permission to construct a truly stunning five-bedroom detached bungalow, designed with modern living and comfort in mind.
The proposed property boasts a spacious and thoughtfully laid out floor plan, featuring five generous bedrooms, three well-appointed bathrooms, and a large reception room that will provide the perfect space for both relaxing and entertaining. The design ensures a seamless flow between rooms, with an emphasis on natural light and open-plan living. The bungalow will be complemented by a beautifully landscaped garden, ideal for outdoor dining, gardening, or simply enjoying the peaceful surroundings.
Ashley itself is a charming Staffordshire village, renowned for its tranquil rural setting and strong sense of community. Residents enjoy a peaceful lifestyle while still being within easy reach of larger towns and cities. The village is surrounded by picturesque countryside, offering numerous opportunities for walking, cycling, and exploring the natural beauty of the area.
In summary, this land with full planning permission represents a fantastic opportunity to build a bespoke family home in a peaceful yet well-connected village. Whether you are looking to create a spacious residence for your family or a tranquil retreat, this site offers the perfect canvas to bring your vision to life. Early viewing is highly recommended to appreciate the potential and the wonderful location on offer.
Notice
Please note we have not tested any apparatus, fixtures, fittings, or services. Interested parties must undertake their own investigation into the working order of these items. All measurements are approximate and photographs provided for guidance only.
Property details
- Tenure
- Freehold
- Council Tax Band
- F
- Date Posted
- 2026-02-27
Utilities & Restrictions
Utilities
- Electricity
- Ask Agent
- Water
- Ask Agent
- Heating
- Oil Heating
- Broadband
- Ask Agent
- Sewerage
- Ask Agent
Rights & Restrictions
- Public Rights of Way
- Ask Agent
- Private Rights of Way
- Ask Agent
- Listed Property
- Ask Agent
- Restrictions
- Ask Agent
Property Features
- Accessibility
- Ask Agent
- Parking
- Garage, Off-Street Parking
- Garden
- Private Garden
Map Location
Thinking of selling?
Sell your property the smart way with free valuations, auction sales, and expert agent matching.
Important notice: Information, maps and tags on this page are supplied by the advertising agent or generated automatically. LandSale has not verified them. Relying on these details is at your own risk, always carry out independent checks before committing to a purchase.
LandSale full disclaimer
Marketing information only - not formal particulars. The details on this website are provided for general guidance and do not constitute an offer or contract. Neither LandSale nor the advertising estate/land agent accepts responsibility for any inaccuracy.
1. Source of information
- Agent-supplied content: Core description, asking price, tenure, measurements, photographs and planning history are uploaded by the appointed agent, who remains solely responsible for their accuracy.
- Automated tags & categorisation: Property type, land-use class, acreage bands and similar labels may be applied by machine-learning models. They are intended as a helpful guide only and may not reflect the property's legal status or permitted use.
- Third-party & enriched data layers: Maps, boundary outlines, planning designations, soil reports, broadband coverage and other environmental or location-based insights are licensed from external suppliers. Such data are supplied “as is", may be incomplete or out of date and are subject to change without notice.
2. Verification required
Prospective purchasers must verify critical matters, including but not limited to planning permission, title boundaries, public rights of way, environmental constraints, acreage, services, access and VAT status, through their own inspections, specialist surveys, legal advisers and the selling agent before relying on the information or entering into any contract.
3. No warranty or liability
LandSale gives no warranty, express or implied, as to the accuracy, completeness or fitness for any particular purpose of the information displayed. LandSale shall not be liable for any loss, damage, cost or expense arising directly or indirectly from any use of or reliance on such information, save where liability may not be excluded by law.
4. Updates & feedback
If you believe any detail on this listing is inaccurate, please let us know. We will investigate and, where appropriate, update the listing or notify the agent.
© LandSale | Version 1.2 - January 2026
Listing agent
Critchlow Estate Agents, Newcastle-under-Lyme
Suite 8, Federation House Station Road Stoke-On-Trent ST4 2SA
Contact Critchlow Estate Agents, Newcastle-under-Lyme
Suite 8, Federation House Station Road Stoke-On-Trent ST4 2SA
View agent profile



