Boxley Road & Land Adjacent, Chatham
- Bedrooms
- 5
- Bathrooms
- 3
Key Features
- Prime development opportunity in sought-after Boxley Road, Walderslade
- Full planning permission in place for land and existing properties
- Existing La Torre maisonettes generating approx. £3,300 PCM
- Immediate income with future development potential
- Suitable for developers, investors, or buy-to-let landlords
- Excellent location close to local amenities, schools, and transport links
Description
An exceptional opportunity to acquire a prime residential development site in a highly sought-after location on Boxley Road, Walderslade. This versatile property offers full planning permission, strong existing rental income, and significant investment and development potential.
The site currently comprises the La Torre maisonettes, which are fully tenanted and generating an impressive £3,300 per calendar month, providing an immediate and established income stream for buy-to-let investors or developers seeking a yield while planning future works.
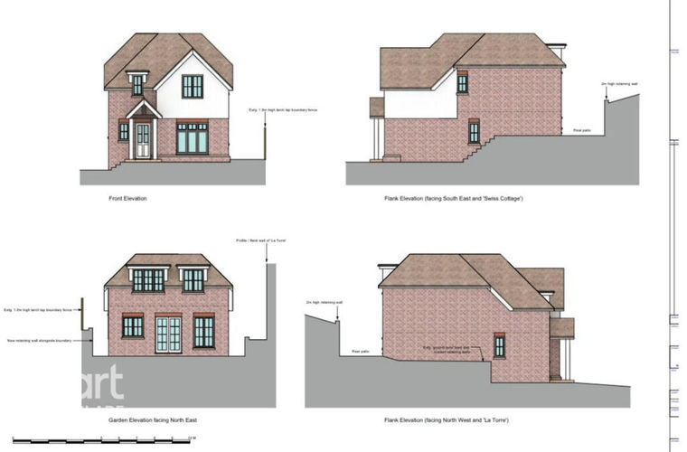
The land and existing properties benefit from approved planning permission, allowing a purchaser to proceed with the development without the uncertainty or delays of the planning process. Approved plans and further details are available within the marketing photographs.
This opportunity is ideal for a range of buyers, including developers, investors, and property companies, with flexible options to:
Implement the approved residential development
Retain the property as a high-yield buy-to-let investment
Reconfigure or convert the maisonettes back into a single dwelling (subject to any further required consents)
Opportunities offering planning permission, immediate rental yield, development potential, and a prime Walderslade location rarely become available.
Located within easy reach of local amenities, transport links, schools, and major road networks, the property is well positioned for both investment and future resale value.
Early viewing is strongly recommended to fully appreciate the scale, flexibility, and potential of this unique development opportunity. Please contact the agent for further information or to arrange a viewing.
Disclaimer
haart Estate Agents also offer a professional, ARLA accredited Lettings and Management Service. If you are considering renting your property in order to purchase, are looking at buy to let or would like a free review of your current portfolio then please call the Lettings Branch Manager on the number shown above.
haart Estate Agents is the seller's agent for this property. Your conveyancer is legally responsible for ensuring any purchase agreement fully protects your position. We make detailed enquiries of the seller to ensure the information provided is as accurate as possible. Please inform us if you become aware of any information being inaccurate.
Property details
- Tenure
- Freehold
- Council Tax Band
- Ask Agent
- Date Posted
- 2026-02-19
Energy Performance Certificate
Energy Efficiency Rating
Based on UK Energy Performance Certificate standards (EU Directive 2002/91/EC)
Utilities & Restrictions
Utilities
- Electricity
- Ask Agent
- Water
- Ask Agent
- Heating
- Ask Agent
- Broadband
- Ask Agent
- Sewerage
- Ask Agent
Rights & Restrictions
- Public Rights of Way
- Ask Agent
- Private Rights of Way
- Ask Agent
- Listed Property
- Ask Agent
- Restrictions
- Ask Agent
Property Features
- Accessibility
- Ask Agent
- Parking
- Ask Agent
- Garden
- Ask Agent
Map Location
Thinking of selling?
Sell your property the smart way with free valuations, auction sales, and expert agent matching.
Important notice: Information, maps and tags on this page are supplied by the advertising agent or generated automatically. LandSale has not verified them. Relying on these details is at your own risk, always carry out independent checks before committing to a purchase.
LandSale full disclaimer
Marketing information only - not formal particulars. The details on this website are provided for general guidance and do not constitute an offer or contract. Neither LandSale nor the advertising estate/land agent accepts responsibility for any inaccuracy.
1. Source of information
- Agent-supplied content: Core description, asking price, tenure, measurements, photographs and planning history are uploaded by the appointed agent, who remains solely responsible for their accuracy.
- Automated tags & categorisation: Property type, land-use class, acreage bands and similar labels may be applied by machine-learning models. They are intended as a helpful guide only and may not reflect the property's legal status or permitted use.
- Third-party & enriched data layers: Maps, boundary outlines, planning designations, soil reports, broadband coverage and other environmental or location-based insights are licensed from external suppliers. Such data are supplied “as is", may be incomplete or out of date and are subject to change without notice.
2. Verification required
Prospective purchasers must verify critical matters, including but not limited to planning permission, title boundaries, public rights of way, environmental constraints, acreage, services, access and VAT status, through their own inspections, specialist surveys, legal advisers and the selling agent before relying on the information or entering into any contract.
3. No warranty or liability
LandSale gives no warranty, express or implied, as to the accuracy, completeness or fitness for any particular purpose of the information displayed. LandSale shall not be liable for any loss, damage, cost or expense arising directly or indirectly from any use of or reliance on such information, save where liability may not be excluded by law.
4. Updates & feedback
If you believe any detail on this listing is inaccurate, please let us know. We will investigate and, where appropriate, update the listing or notify the agent.
© LandSale | Version 1.2 - January 2026
Listing agent
haart, Walderslade
375 Walderslade Road, Walderslade, Chatham, ME5 9LL