Crowhurst, TN33
Key Features
- Development Site
- Foundations commenced
- 4 three bedroom semi detached homes
- Central village location
- Rural outlook
Description
NOTE: The owners have paid the CIL payment and £95,000 will be payable in addition to the sale price.
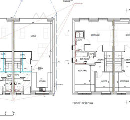
The foundations have been commenced at this development site for four three bedroom semi detached houses that occupy a tucked away location in the centre of the village granted under planning reference: RR/2020/945/P. The planning allows for a new private driveway, parking and two pairs of three bedroom semi detached houses of circa 93 sq.m. The proposed accommodation will provide a reception hall, cloakroom and large open plan kitchen, living, dining area to the ground floor with three first floor bedrooms, the master with en-suite and separate bathroom. Outside a new driveway will provide access to turning and parking and each of the properties will enjoy gardens to the rear with an attractive rural outlook. For further details or to arrange a site visit please contact us on .
Note: We are advised that all pre-commencement conditions, including the service water strategy and mains drains connections have been designed and approved.
ELEVATIONS
FLOORPLANS
SITE PLAN
Property details
- Tenure
- Freehold
- Council Tax Band
- Ask Agent
- Date Posted
- 2026-02-19
Utilities & Restrictions
Utilities
- Electricity
- Ask Agent
- Water
- Ask Agent
- Heating
- Ask Agent
- Broadband
- Ask Agent
- Sewerage
- Ask Agent
Rights & Restrictions
- Public Rights of Way
- Ask Agent
- Private Rights of Way
- Ask Agent
- Listed Property
- Ask Agent
- Restrictions
- Ask Agent
Property Features
- Accessibility
- Ask Agent
- Parking
- Parking Available
- Garden
- Garden
Important notice: Information, maps and tags on this page are supplied by the advertising agent or generated automatically. LandSale has not verified them. Relying on these details is at your own risk, always carry out independent checks before committing to a purchase.
LandSale full disclaimer
Marketing information only - not formal particulars. The details on this website are provided for general guidance and do not constitute an offer or contract. Neither LandSale nor the advertising estate/land agent accepts responsibility for any inaccuracy.
1. Source of information
- Agent-supplied content: Core description, asking price, tenure, measurements, photographs and planning history are uploaded by the appointed agent, who remains solely responsible for their accuracy.
- Automated tags & categorisation: Property type, land-use class, acreage bands and similar labels may be applied by machine-learning models. They are intended as a helpful guide only and may not reflect the property's legal status or permitted use.
- Third-party & enriched data layers: Maps, boundary outlines, planning designations, soil reports, broadband coverage and other environmental or location-based insights are licensed from external suppliers. Such data are supplied “as is", may be incomplete or out of date and are subject to change without notice.
2. Verification required
Prospective purchasers must verify critical matters, including but not limited to planning permission, title boundaries, public rights of way, environmental constraints, acreage, services, access and VAT status, through their own inspections, specialist surveys, legal advisers and the selling agent before relying on the information or entering into any contract.
3. No warranty or liability
LandSale gives no warranty, express or implied, as to the accuracy, completeness or fitness for any particular purpose of the information displayed. LandSale shall not be liable for any loss, damage, cost or expense arising directly or indirectly from any use of or reliance on such information, save where liability may not be excluded by law.
4. Updates & feedback
If you believe any detail on this listing is inaccurate, please let us know. We will investigate and, where appropriate, update the listing or notify the agent.
© LandSale | Version 1.2 - January 2026
Listing agent
Campbell's, Battle
74 High Street, Battle, TN33 0AG
Enquire about this property
Contact Campbell's, Battle
74 High Street, Battle, TN33 0AG
View agent profile