Newbold on Avon, Rugby, CV21
Key Features
- DEVELOPMENT OPPORTUNITY
- VILLAGE LOCATION
- NEWBOLD ON AVON
- BUILDING PLOT
- PLANNING PERMISSION GRANTED
- DETACHED HOUSE
- FOUR BEDROOMS
Description
Guild House estate agents are pleased to offer for sale a well positioned building plot in the popular village of Newbold upon Avon. Besides being well positioned for easy access to Rugby, it's situated within easy walking distance of good schooling and some excellent local amenities including a supermarket, hairdressers, beauty salon and popular public houses as well as access to a regular bus service into Rugby town centre. Elliotts Field and Junction One retail parks are only a five minute drive away and access to M1/M6 motorway links are also just a short drive.
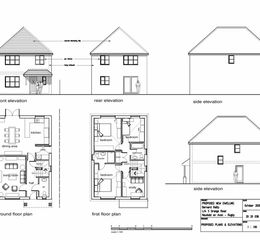
Planning permission has been granted for a four bedroom detached property giving the plot an approximate GDV of £340,000 to £350,000 depending on finished specification. Full details and planning permissions can been found on the Rugby Borough Council planning portal quoting reference R23/0279 AN INDEMNITY INSURANCE IS NECESSARY DUE TO A RESTRICTIVE COVENANT. ASK AGENT FOR MORE DETAILS.
For any further information please contact Toni-ann on
Property details
- Tenure
- Freehold
- Council Tax Band
- Ask Agent
- Date Posted
- 2026-02-15
Utilities & Restrictions
Utilities
- Electricity
- Ask Agent
- Water
- Ask Agent
- Heating
- Ask Agent
- Broadband
- Ask Agent
- Sewerage
- Ask Agent
Rights & Restrictions
- Public Rights of Way
- Ask Agent
- Private Rights of Way
- Ask Agent
- Listed Property
- Ask Agent
- Restrictions
- Ask Agent
Property Features
- Accessibility
- Ask Agent
- Parking
- Ask Agent
- Garden
- Ask Agent
Map Location
Important notice: Information, maps and tags on this page are supplied by the advertising agent or generated automatically. LandSale has not verified them. Relying on these details is at your own risk, always carry out independent checks before committing to a purchase.
LandSale full disclaimer
Marketing information only - not formal particulars. The details on this website are provided for general guidance and do not constitute an offer or contract. Neither LandSale nor the advertising estate/land agent accepts responsibility for any inaccuracy.
1. Source of information
- Agent-supplied content: Core description, asking price, tenure, measurements, photographs and planning history are uploaded by the appointed agent, who remains solely responsible for their accuracy.
- Automated tags & categorisation: Property type, land-use class, acreage bands and similar labels may be applied by machine-learning models. They are intended as a helpful guide only and may not reflect the property's legal status or permitted use.
- Third-party & enriched data layers: Maps, boundary outlines, planning designations, soil reports, broadband coverage and other environmental or location-based insights are licensed from external suppliers. Such data are supplied “as is", may be incomplete or out of date and are subject to change without notice.
2. Verification required
Prospective purchasers must verify critical matters, including but not limited to planning permission, title boundaries, public rights of way, environmental constraints, acreage, services, access and VAT status, through their own inspections, specialist surveys, legal advisers and the selling agent before relying on the information or entering into any contract.
3. No warranty or liability
LandSale gives no warranty, express or implied, as to the accuracy, completeness or fitness for any particular purpose of the information displayed. LandSale shall not be liable for any loss, damage, cost or expense arising directly or indirectly from any use of or reliance on such information, save where liability may not be excluded by law.
4. Updates & feedback
If you believe any detail on this listing is inaccurate, please let us know. We will investigate and, where appropriate, update the listing or notify the agent.
© LandSale | Version 1.2 - January 2026
Listing agent
Guild House Estate Agents, Rugby
Rugby