Bury Lane, Hatfield Peverel, Chelmsford
Key Features
- Planning application number 25/02590/FUL
- Plans passed for a three bedroom detached house with open plan living room/kitchen and formal lounge
- Ensuite, family bathroom and ground floor cloakroom
- Close to train station (0.2 miles walking distance)
- Opposite recreational park
- All offers by informal tender closing date 10am on 3rd March 2026
- Approx. 37m X 9m (120' x 30') Plot
Description
*** Guide Price £180,000 to £200,000 ***
The plot is situated opposite a recreational park only 0.2 mile walk from a mainline station with trains into London Liverpool Street
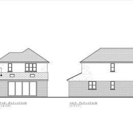
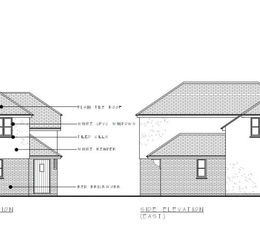
The planning permission is for a three-bedroom detached house. The accommodation comprises an open plan living room/kitchen area to the rear and formal lounge to the front. There is ensuite facilities to the master bedroom plus a family bathroom and ground floor cloakroom. Further information is available on Braintree Council website (application number is 25/02590/FUL).
The plot is for sale on an informal tender basis. All offers are to be submitted by 10am on the 3rd March 2026 using the enclosed form.
Distances - Hatfield Peverel Train Station - 0.2 miles
Hatfield Peverel School - 1.1 miles
A12 - 0.6 miles
Chelmsford City - 6.5 miles
London Stansted Airport - 20.4 miles
All mileages are approx.
Condition Of Sale - The following has to be agreed by the new owners:
Demolish the garage and shed within the development plot
Move existing oil tank from the development plot to 4 Bury Lane inside retained garden
Install new boundary fence and garden gate for 4 Bury Lane.
Install new driveway for 4 Bury Lane (including altering the kerb to a dropped kerb and remove some of existing shrubbery.
All the above needs to be completed before work commences on the new plot and these works to be carefully arranged with both the owner and tenant of 4 Bury Lane.
Viewings - Strictly by appointment only through the selling agent Paul Mason Associates .
Important Notices - We wish to inform all prospective purchasers that we have prepared these particulars including text, photographs and measurements as a general guide. Room sizes should not be relied upon for carpets and furnishings. We have not carried out a survey or tested the services, appliances and specific fittings. These particulars do not form part of a contract and must not be relied upon as statement or representation of fact.
Informal Tender Form - Those wishing to make an offer for the above property should complete the form set out below and send it to Paul Mason Associates, Bruce House, 17 The Street, Hatfield Peverel, Essex CM3 2DP to arrive not later than 10am on Tuesday 3rd March 2026. Please clearly write the address of the above property on the envelope so it is not opened prior to the appointed time. Please also put your name on the back of the envelope so that you can check by telephone that it has arrived. The owners do not commit themselves to accepting the highest, or any offers. All offers will be treated in the strictest confidence.
1.Name: ……………………………………………
2.Address
…………………………………………………
…………………………………………………
3.Telephone No:
(Home) ………………………………..
(Mobile) ………………………………......
4.Amount of offer (Please make this an uneven figure):
…………………………….. subject to contract.
Condition of sale stated on the property details have been agreed.
5.Can you exchange contracts within one month of date of issue of the draft contract.
……………………………………………………
6.Is your purchase dependent on the sale of another property?
……………………………………………………
7.How will you be funding your purchase of this property – ie: cash or mortgage?
…………………………………………………………………….
8.Is your offer subject to survey?
………………………………………………………………….
9.Any other information you feel relevant to the purchase of the property.
………………………………………………………………………………………………………..
………………………………………………………………………………………………………..
Sign…………………………………...................
Print Name……………………………………..
Sign…………………………………...................
Print Name……………………………………..
Date …………………………………................
Property details
- Tenure
- Freehold
- Council Tax Band
- Ask Agent
- Date Posted
- 2026-02-10
Utilities & Restrictions
Utilities
- Electricity
- Ask Agent
- Water
- Ask Agent
- Heating
- Ask Agent
- Broadband
- Ask Agent
- Sewerage
- Ask Agent
Rights & Restrictions
- Public Rights of Way
- Ask Agent
- Private Rights of Way
- Ask Agent
- Listed Property
- Ask Agent
- Restrictions
- Ask Agent
Property Features
- Accessibility
- Ask Agent
- Parking
- Parking Available
- Garden
- Garden
Important notice: Information, maps and tags on this page are supplied by the advertising agent or generated automatically. LandSale has not verified them. Relying on these details is at your own risk, always carry out independent checks before committing to a purchase.
LandSale full disclaimer
Marketing information only - not formal particulars. The details on this website are provided for general guidance and do not constitute an offer or contract. Neither LandSale nor the advertising estate/land agent accepts responsibility for any inaccuracy.
1. Source of information
- Agent-supplied content: Core description, asking price, tenure, measurements, photographs and planning history are uploaded by the appointed agent, who remains solely responsible for their accuracy.
- Automated tags & categorisation: Property type, land-use class, acreage bands and similar labels may be applied by machine-learning models. They are intended as a helpful guide only and may not reflect the property's legal status or permitted use.
- Third-party & enriched data layers: Maps, boundary outlines, planning designations, soil reports, broadband coverage and other environmental or location-based insights are licensed from external suppliers. Such data are supplied “as is", may be incomplete or out of date and are subject to change without notice.
2. Verification required
Prospective purchasers must verify critical matters, including but not limited to planning permission, title boundaries, public rights of way, environmental constraints, acreage, services, access and VAT status, through their own inspections, specialist surveys, legal advisers and the selling agent before relying on the information or entering into any contract.
3. No warranty or liability
LandSale gives no warranty, express or implied, as to the accuracy, completeness or fitness for any particular purpose of the information displayed. LandSale shall not be liable for any loss, damage, cost or expense arising directly or indirectly from any use of or reliance on such information, save where liability may not be excluded by law.
4. Updates & feedback
If you believe any detail on this listing is inaccurate, please let us know. We will investigate and, where appropriate, update the listing or notify the agent.
© LandSale | Version 1.2 - January 2026
Listing agent
Paul Mason Associates, Essex
Bruce House, 17 The Street, Hatfield Peverel, CM3 2DP
Enquire about this property
Contact Paul Mason Associates, Essex
Bruce House, 17 The Street, Hatfield Peverel, CM3 2DP
View agent profile