Uppingham Drive, Broughton Astley
Key Features
- 25/01255/REM Planning Reference
- Huge Development Potential
- Highly Desirable Location
- Three Bedroom Detached Dwelling
- Ideal Investment opportunity
- Offered with No Upward Chain
Description
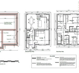
An excellent opportunity to acquire a residential building plot in the popular and well-served village of Broughton Astley, with planning permission granted for the construction of a single three-bedroom detached dwelling.
The approved design provides well-balanced, modern accommodation comprising a lounge, open-plan kitchen/diner, and downstairs WC. To the first floor, the master bedroom benefits from an en-suite shower room, complemented by two further bedrooms and a family bathroom.
Externally, the proposed property includes a double driveway to the rear, offering convenient off-road parking.
Broughton Astley is a sought-after Leicestershire village with a wide range of local amenities, reputable schools, and excellent transport links to Leicester and the surrounding area, making this an ideal opportunity for developers or private self-builders alike.
Further planning information available upon request.
Planning details available on request.
Tenure: Freehold
Property details
- Tenure
- Freehold
- Council Tax Band
- Ask Agent
- Date Posted
- 2026-02-06
Utilities & Restrictions
Utilities
- Electricity
- Ask Agent
- Water
- Ask Agent
- Heating
- Ask Agent
- Broadband
- Ask Agent
- Sewerage
- Ask Agent
Rights & Restrictions
- Public Rights of Way
- Ask Agent
- Private Rights of Way
- Ask Agent
- Listed Property
- Ask Agent
- Restrictions
- Ask Agent
Property Features
- Accessibility
- Ask Agent
- Parking
- Parking Available
- Garden
- Ask Agent
Important notice: Information, maps and tags on this page are supplied by the advertising agent or generated automatically. LandSale has not verified them. Relying on these details is at your own risk, always carry out independent checks before committing to a purchase.
LandSale full disclaimer
Marketing information only - not formal particulars. The details on this website are provided for general guidance and do not constitute an offer or contract. Neither LandSale nor the advertising estate/land agent accepts responsibility for any inaccuracy.
1. Source of information
- Agent-supplied content: Core description, asking price, tenure, measurements, photographs and planning history are uploaded by the appointed agent, who remains solely responsible for their accuracy.
- Automated tags & categorisation: Property type, land-use class, acreage bands and similar labels may be applied by machine-learning models. They are intended as a helpful guide only and may not reflect the property's legal status or permitted use.
- Third-party & enriched data layers: Maps, boundary outlines, planning designations, soil reports, broadband coverage and other environmental or location-based insights are licensed from external suppliers. Such data are supplied “as is", may be incomplete or out of date and are subject to change without notice.
2. Verification required
Prospective purchasers must verify critical matters, including but not limited to planning permission, title boundaries, public rights of way, environmental constraints, acreage, services, access and VAT status, through their own inspections, specialist surveys, legal advisers and the selling agent before relying on the information or entering into any contract.
3. No warranty or liability
LandSale gives no warranty, express or implied, as to the accuracy, completeness or fitness for any particular purpose of the information displayed. LandSale shall not be liable for any loss, damage, cost or expense arising directly or indirectly from any use of or reliance on such information, save where liability may not be excluded by law.
4. Updates & feedback
If you believe any detail on this listing is inaccurate, please let us know. We will investigate and, where appropriate, update the listing or notify the agent.
© LandSale | Version 1.2 - January 2026
Listing agent
FRASER STRETTON LTD, Leicester
15 Allandale Road, Leicester, LE2 2DA
Enquire about this property
Contact FRASER STRETTON LTD, Leicester
15 Allandale Road, Leicester, LE2 2DA
View agent profile