Substantial Barn Conversion with Self-Contained Annexe in Ovington
- Land size
- 3 acres
- Bedrooms
- 5
- Bathrooms
- 3
Key Features
- Substantial Detached Barn Conversion Set Within Approximately 3 Acres
- Flexible Main Dwelling with Three Double Bedrooms
- Self-Contained Two Bedroom Annexe Ideal for Multi-Generational Living
- Stylish Open Plan Kitchen, Dining and Living Space
- Modern Shaker Style Kitchen with Built In Appliances and Central Island
- Mezzanine Reception Room or Study Area Overlooking Main Living Space
- Enclosed Paddock Offering Scope for Equestrian or Recreational Use
- Additional Outbuildings Providing Useful Storage and Versatility
- Edge Of Village Position with a Strong Sense of Space and Privacy
Description
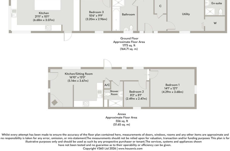
Water End Farm is a substantial detached barn conversion set within approximately 3 acres, occupying a discreet edge of-village position in the well-regarded rural community of Ovington. Offering an impressive blend of character, space and modern design, the property provides a highly flexible layout suited to family life, multi-generational living or those seeking to combine home, work and leisure in a countryside setting while remaining well connected to nearby market towns.
The main dwelling is arranged around a striking open-plan kitchen, dining and living space that forms the natural heart of the home. Designed with both everyday living and entertaining in mind, this generous area benefits from strong proportions and an easy flow between zones. The modern shaker-style kitchen is fitted with a range of built-in appliances and complemented by a central island that creates a focal point for casual dining and social gatherings. The sense of volume and light reflects the barn’s origins, while the layout remains practical and welcoming.
Further enhancing the flexibility of the accommodation is a mezzanine reception room or study area. Overlooking the main living space, this elevated room is ideal for home working, a reading room or an additional sitting area, making excellent use of the barn’s height and character without compromising functionality.
The main house offers three well-proportioned double bedrooms, all supported by well appointed bathroom facilities. The accommodation is arranged to provide comfortable and versatile living, suitable for families or those wishing to accommodate visiting guests with ease.
A key feature of Water End Farm is the fully self contained two-bedroom annexe. With its own kitchen, living space and shower room, the annexe offers excellent independent accommodation while remaining closely connected to the main house.
This space is ideal for extended family, dependent relatives, guest accommodation or ancillary use, subject to any necessary consents, providing valuable flexibility for changing lifestyle needs.
Outside, the property sits within approximately 3 acres of grounds, creating a strong sense of space and privacy. An enclosed paddock area offers scope for small-scale equestrian use, hobby farming or recreational purposes, while the remaining land and gardens provide ample room for outdoor enjoyment. Additional outbuildings and storage further enhance the practicality of the setting, supporting a wide range of uses.
Despite its rural surroundings, Water End Farm is conveniently positioned for access to the nearby towns of Watton, Swaffham and Dereham. Each offers a comprehensive range of amenities, schooling and services, ensuring that day-to-day needs are easily met. This balance of countryside living with strong connectivity adds significantly to the appeal.
Overall, Water End Farm is an impressive and adaptable barn conversion that combines characterful architecture, contemporary living spaces and extensive outdoor grounds, offering a lifestyle opportunity that can evolve to suit a wide range of requirements.
WATTON
Watton, a beloved market town nestled in Breckland, Norfolk, offers a tranquil retreat with abundant country homes and equestrian properties. Each year, the Wayland Show, among England’s oldest agricultural shows, brings the community together.
The town boasts essential amenities, including primary, junior, and secondary schools, a GP clinic, dental surgery, chemist, supermarket, Post Office, and sports centre. Loch Neaton, reputedly England’s sole loch, originated in 1875 when Scottish railway workers excavated land, creating a lake filled by the River Wissey. Though the Victorian-era attractions have vanished, Loch Neaton remains a scenic spot for leisurely walks and fishing.
Nearby Wayland Wood, rumoured to be the setting for the children’s tale “Babes in the Wood,” invites exploration with its natural beauty. Outdoor enthusiasts can explore Thetford Forest’s cycling trails or tee off at Richmond Park Golf Course, an expansive 18-hole course set in picturesque parkland.
After a day of activities, Watton offers several welcoming pubs like The Willow House and The Waggon & Horses in Griston, or The Old Bell in Saham Toney, ideal for enjoying local ales and hearty meals.
With its rich history, breathtaking landscapes, and diverse property offerings, Watton shines as a gem in Norfolk’s rural landscape.
SERVICES CONNECTED
Mains water and electricity. Drainage via treatment plant. Air source and underfloor heating to the barn. Cottage/annexe heated via a wood burner stove and electric radiators.
COUNCIL TAX
Main Barn: Band E.
Cottage/Annexe: Band A.
ENERGY EFFICIENCY RATING
D. Ref:- 8801-0103-7822-4327-3703
To retrieve the Energy Performance Certificate for this property please visit https://findenergy certificate.digital.communities.gov.uk/find-a-certificate/search-by-reference-number and enter in the reference number above. Alternatively, the full certificate can be obtained through Sowerbys.
TENURE
Freehold.
LOCATION
What3words: ///ferried.economies.openly
WEBSITE TAGS
perfect-views
room-to-roam
family-life
work-and-grow
fresh-visions
EPC Rating: D
Parking - Driveway
Disclaimer
These particulars are provided as a guide only and do not form part of any offer or contract. Sowerbys and its representatives have no authority to make or give representations or warranties. All descriptions, measurements, photographs and plans are for guidance only and should not be relied upon as statements of fact. Buyers should satisfy themselves as to the accuracy of the information through inspection or professional advice. Services, appliances and equipment have not been tested and no warranty can be given as to their condition. Planning permissions, building regulations and other consents should be verified by the buyer’s legal adviser. In accordance with Anti-Money Laundering regulations, proceeding buyers must complete a digital ID check through our compliance partner. A charge of £48 including VAT per sale or purchase applies. Leasehold buyers should confirm ground rent, service charges and lease details with their legal adviser.
Property details
- Tenure
- Freehold
- Council Tax Band
- E
- Date Posted
- 2026-01-31
Energy Performance Certificate
Energy Efficiency Rating
Based on UK Energy Performance Certificate standards (EU Directive 2002/91/EC)
Utilities & Restrictions
Utilities
- Electricity
- Mains
- Water
- Mains
- Heating
- Electric Heating, Air Source Heat Pump, Wood Burner
- Broadband
- Ask Agent
- Sewerage
- Septic Tank / Private
Rights & Restrictions
- Public Rights of Way
- Ask Agent
- Private Rights of Way
- Ask Agent
- Listed Property
- Ask Agent
- Restrictions
- Ask Agent
Property Features
- Accessibility
- Ask Agent
- Parking
- Driveway
- Garden
- Private Garden
Map Location
Market Value Analysis
Based on properties with houses in East Anglia (1+ acres).
Important notice: Information, maps and tags on this page are supplied by the advertising agent or generated automatically. LandSale has not verified them. Relying on these details is at your own risk, always carry out independent checks before committing to a purchase.
LandSale full disclaimer
Marketing information only - not formal particulars. The details on this website are provided for general guidance and do not constitute an offer or contract. Neither LandSale nor the advertising estate/land agent accepts responsibility for any inaccuracy.
1. Source of information
- Agent-supplied content: Core description, asking price, tenure, measurements, photographs and planning history are uploaded by the appointed agent, who remains solely responsible for their accuracy.
- Automated tags & categorisation: Property type, land-use class, acreage bands and similar labels may be applied by machine-learning models. They are intended as a helpful guide only and may not reflect the property's legal status or permitted use.
- Third-party & enriched data layers: Maps, boundary outlines, planning designations, soil reports, broadband coverage and other environmental or location-based insights are licensed from external suppliers. Such data are supplied “as is", may be incomplete or out of date and are subject to change without notice.
2. Verification required
Prospective purchasers must verify critical matters, including but not limited to planning permission, title boundaries, public rights of way, environmental constraints, acreage, services, access and VAT status, through their own inspections, specialist surveys, legal advisers and the selling agent before relying on the information or entering into any contract.
3. No warranty or liability
LandSale gives no warranty, express or implied, as to the accuracy, completeness or fitness for any particular purpose of the information displayed. LandSale shall not be liable for any loss, damage, cost or expense arising directly or indirectly from any use of or reliance on such information, save where liability may not be excluded by law.
4. Updates & feedback
If you believe any detail on this listing is inaccurate, please let us know. We will investigate and, where appropriate, update the listing or notify the agent.
© LandSale | Version 1.2 - January 2026
Listing agent
Sowerbys, Watton
54 High Street, Watton, IP25 6AE