Plot 1 & Plot 6 Tombain Farm, Aberlour AB38 9LE
Key Features
- Attractive Speyside location with stunning countryside views
- Opportunity to design and build your dream home
- Close to Aberlour village centre, shops, and leisure facilities
- Excellent transport links to Elgin, Inverness, and Aberdeen
Description
Aberlour is renowned for its scenic beauty, whisky heritage, and vibrant community, with easy access to local amenities, schools, and transport links.
Property Details
- Number of Plots: 2
- Plot 1 Size: 1,315 m²
- Plot 6 Size: 1,176 m²
- Planning Permission: Full planning permission granted
- Reference: Ref 24/00421/APP
- Services: The Plots will have services installed including Mains water, electricity, and drainage
Planning Permission
Planning permission has been approved for residential development, ensuring a smooth process for prospective buyers. Full details can be accessed via Moray Council’s planning portal using reference Ref 24/00421/APP.
Planning Permission & Services
24/00421/APP and all the conditions have been signed off by the council, planning was approved in May 2025.|Asking price of £75,000 per plot serviced to the plot boundary with mains water, mains sewerage, electricity and BT duct.|The whole development will be entirely private with 5 plots owning the lane and common areas such as verges and planting which will be managed by the developer and then handed over to the owners as set out in the deed of conditions.
Plot 1 & Plot 6
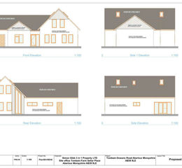
Plot 1 extends to 1,315m² and Plot 6, is adjacent extending to 1,176m² both, subject to measured survey.|The 2 plots have detailed Planning Permission granted for detached 4 bedroom house with accommodation as follows :- ground floor with open plan lounge/dining/family room arrangement, 3 double bedrooms (1 with an en suite), family bathroom, utility room and integral garage. The upper floor will have a feature galleried landing and house the master bedroom suite with walk-in wardrobe and shower room.
Combined Purchase
For buyers interested in purchasing both plots together, a discounted combined price will be available. |This exclusive offer provides an excellent opportunity for those seeking a larger development area or investment potential.
Property details
- Tenure
- Freehold
- Council Tax Band
- Ask Agent
- Date Posted
- 2026-01-30
Utilities & Restrictions
Utilities
- Electricity
- Ask Agent
- Water
- Ask Agent
- Heating
- Ask Agent
- Broadband
- Ask Agent
- Sewerage
- Ask Agent
Rights & Restrictions
- Public Rights of Way
- Ask Agent
- Private Rights of Way
- Ask Agent
- Listed Property
- Ask Agent
- Restrictions
- Ask Agent
Property Features
- Accessibility
- Ask Agent
- Parking
- Parking Available
- Garden
- Ask Agent
Important notice: Information, maps and tags on this page are supplied by the advertising agent or generated automatically. LandSale has not verified them. Relying on these details is at your own risk, always carry out independent checks before committing to a purchase.
LandSale full disclaimer
Marketing information only - not formal particulars. The details on this website are provided for general guidance and do not constitute an offer or contract. Neither LandSale nor the advertising estate/land agent accepts responsibility for any inaccuracy.
1. Source of information
- Agent-supplied content: Core description, asking price, tenure, measurements, photographs and planning history are uploaded by the appointed agent, who remains solely responsible for their accuracy.
- Automated tags & categorisation: Property type, land-use class, acreage bands and similar labels may be applied by machine-learning models. They are intended as a helpful guide only and may not reflect the property's legal status or permitted use.
- Third-party & enriched data layers: Maps, boundary outlines, planning designations, soil reports, broadband coverage and other environmental or location-based insights are licensed from external suppliers. Such data are supplied “as is", may be incomplete or out of date and are subject to change without notice.
2. Verification required
Prospective purchasers must verify critical matters, including but not limited to planning permission, title boundaries, public rights of way, environmental constraints, acreage, services, access and VAT status, through their own inspections, specialist surveys, legal advisers and the selling agent before relying on the information or entering into any contract.
3. No warranty or liability
LandSale gives no warranty, express or implied, as to the accuracy, completeness or fitness for any particular purpose of the information displayed. LandSale shall not be liable for any loss, damage, cost or expense arising directly or indirectly from any use of or reliance on such information, save where liability may not be excluded by law.
4. Updates & feedback
If you believe any detail on this listing is inaccurate, please let us know. We will investigate and, where appropriate, update the listing or notify the agent.
© LandSale | Version 1.2 - January 2026
Listing agent
AB & S Estate Agents, Elgin
151 High Street Elgin IV30 1DX
Enquire about this property
Contact AB & S Estate Agents, Elgin
151 High Street Elgin IV30 1DX
View agent profile