Holmes Chapel Road, Middlewich, CW10
- Land size
- 0.17 acres
Key Features
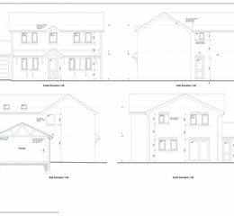
- 0.17 acre parcel of land for sale, full planning granted for two detached homes which have had the footings and drainage already completed
- Excellent position close to Middlewich town centre
- Houses are a generous size with a thoughtful family friendlt layout which includes an open plan kitchen, dining room and two further reception rooms
- The first floor boasts four generous bedrooms and two bathrooms to create a fabolous pair of detached homes
- One plot also includes a garage, but both have off road parking and a rear garden as well
- Sat behind a lovely sandstone wall the properties are already started and would suit a local developer or self build in looking for a new project
- Plot is freehold and available for a speedy completion if desired call our office now to discuss
Description
Nestled in an excellent location near the heart of Middlewich town centre, a rare opportunity awaits with this 0.17 acre parcel of land. Boasting full planning permission for the construction of two detached homes, this plot is the perfect canvas for a local developer or self-builder seeking their next venture, the footings have drainage have already been completed meaning a large proportion of the works have already been completed.
The proposed houses, designed with a thoughtful and family-friendly layout, offer a generous living space that is both functional and inviting.
Upon entering there is a hall way where residents will be greeted it has an open-plan kitchen and dining area, seamlessly connected to two additional reception rooms, creating ample space for family gatherings or entertaining guests, also with a handy utility room and WC completing the ground floor. The first floor of each home features four spacious bedrooms and two bathrooms, promising comfort and convenience for the future occupants.
The properties exude quality and style, with one of the homes equipped with a garage while both include off-road parking and a charming rear garden. Enclosed by an attractive sandstone wall, the houses are primed for those looking to create a lasting impression with their new home.
The plots are offered as freehold, providing flexibility and freedom for the incoming owner. If you are eager to embark on a new project within a thriving community, these homes-in-the-making present a golden opportunity. With a seamless and speedy completion process available, seize the chance today to explore the potential of this remarkable property.
For further information or to discuss the possibilities this land presents, do not hesitate to contact our office. Your dream of building and investing in the future starts here – make it a reality by taking the first step towards securing this promising plot of land.
Property details
- Tenure
- Freehold
- Council Tax Band
- E
- Date Posted
- 2026-01-29
Utilities & Restrictions
Utilities
- Electricity
- Ask Agent
- Water
- Ask Agent
- Heating
- Ask Agent
- Broadband
- Ask Agent
- Sewerage
- Ask Agent
Rights & Restrictions
- Public Rights of Way
- Ask Agent
- Private Rights of Way
- Ask Agent
- Listed Property
- Ask Agent
- Restrictions
- Ask Agent
Property Features
- Accessibility
- Ask Agent
- Parking
- Parking Available
- Garden
- Garden
Important notice: Information, maps and tags on this page are supplied by the advertising agent or generated automatically. LandSale has not verified them. Relying on these details is at your own risk, always carry out independent checks before committing to a purchase.
LandSale full disclaimer
Marketing information only - not formal particulars. The details on this website are provided for general guidance and do not constitute an offer or contract. Neither LandSale nor the advertising estate/land agent accepts responsibility for any inaccuracy.
1. Source of information
- Agent-supplied content: Core description, asking price, tenure, measurements, photographs and planning history are uploaded by the appointed agent, who remains solely responsible for their accuracy.
- Automated tags & categorisation: Property type, land-use class, acreage bands and similar labels may be applied by machine-learning models. They are intended as a helpful guide only and may not reflect the property's legal status or permitted use.
- Third-party & enriched data layers: Maps, boundary outlines, planning designations, soil reports, broadband coverage and other environmental or location-based insights are licensed from external suppliers. Such data are supplied “as is", may be incomplete or out of date and are subject to change without notice.
2. Verification required
Prospective purchasers must verify critical matters, including but not limited to planning permission, title boundaries, public rights of way, environmental constraints, acreage, services, access and VAT status, through their own inspections, specialist surveys, legal advisers and the selling agent before relying on the information or entering into any contract.
3. No warranty or liability
LandSale gives no warranty, express or implied, as to the accuracy, completeness or fitness for any particular purpose of the information displayed. LandSale shall not be liable for any loss, damage, cost or expense arising directly or indirectly from any use of or reliance on such information, save where liability may not be excluded by law.
4. Updates & feedback
If you believe any detail on this listing is inaccurate, please let us know. We will investigate and, where appropriate, update the listing or notify the agent.
© LandSale | Version 1.2 - January 2026
Listing agent
Land & New Homes, Great Sankey
1 Station Road, Great Sankey, Warrington, WA5 1RH
Enquire about this property
Contact Land & New Homes, Great Sankey
1 Station Road, Great Sankey, Warrington, WA5 1RH
View agent profile